查看完整案例

收藏

下载
英文名称:Mexico ESPANA 8477 Residential building
在寻找一个小规模的垂直住宅楼原型的时候,Espana 8477这个项目就产生了,项目的要求是在这个小规模的垂直住宅楼中,所有的使用者们都可以体验到不同的空间质量,而且价格也是他们可以承受的。在城市中,包含了多户家庭的住宅楼的楼层不管有多少,这些楼层都是对一个典型
设计方案
的复制。这些住宅楼的户外空间仅限于入口走廊或者是楼梯,室内的视野也被建筑体量的高度决定了。
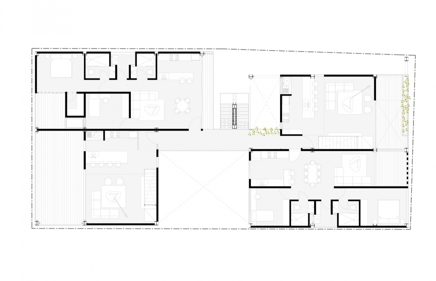
这栋住宅楼由十个住房单元,室内的分布很灵活,面积为80到90平方米不等,因为结构设计构成的原因,里面也包含了一个楼层或两个楼层设计的住房单元。项目包含了两个主要的建筑体量。这两个建筑体量是通过它们自身的流通空间连接起来的,这些流通空间使用的是外露的金属结构。
上的变化产生了面积非常大的户外空间。当打开滑动门之后,每个住房单元的社会区域的面积都可以变成双倍的。
译者:蝈蝈
The project Espana 8477 is generated when searching for a typology for a small-scale vertical housing building, where all users can enjoy a different spatial quality and at an affordable price. The multifamily building that is common in the city is a repetition of a typical plan for 'n' number of levels. Where outdoor spaces are limited to the access corridors or stairs and inside the views are determined by the height of the building.
This building has 10 housing units, with a flexible distribution inside, 80 to 90 m2, with 1 and 2-level units due to the composition of the structural design.Two main volumes linked by their circulations are mounted on the exposed metal structure. The variation of the plans generates very large outdoor spaces. Each unit can double the size of the social area when opening sliding doors.
墨西哥ESPANA 8477住宅楼外部实景图
墨西哥ESPANA 8477住宅楼外部实景
墨西哥ESPANA 8477住宅楼局部实景图
墨西哥ESPANA 8477住宅楼内部实景图
墨西哥ESPANA 8477住宅楼平面图
墨西哥ESPANA 8477住宅楼剖面图
客服
消息
收藏
下载
最近





















