查看完整案例


收藏

下载
Argentina Torcuato Residential Landscape House
设计方:Besonias Almeida Arquitectos
位置:阿根廷
分类:居住建筑
内容:实景照片
图片:22张
摄影师:Federico Kulekdjian
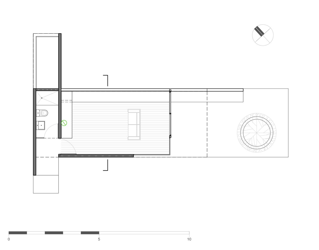
这是由Besonias Almeida Arquitectos设计的Torcuato住宅景观阁,位于阿根廷的首都布宜诺斯艾利斯。该景观阁独立于主宅,布置在场地一侧,提升功能的发展空间,同时增强住宅与景观的关系,呈现一个更为放松享受自然景色的空间。该景观阁布置在场地一侧,与主宅保持一段较远的距离,周围树木环绕,其实际功能可根据不同的场景及需求而变更,在冬季及夏季里最为舒适。该景观阁采用连续折叠的混凝土外壳,该设计师设法使这座小建筑拥有足够的视觉的效果,同时在环境中保有相对的隐私性,从而满足空间要求,实现安静及自省的活动。
译者:筑龙网艾比
The commission arises from the principals need to have an enclosure where they can be isolated from the activity of the house, and then facilitate the development of functions more relaxed and much more connected with the landscape. It was to be an indeterminate space, since its use would also be indeterminate, but it should be comfortable in both winter and summer. This brief program was rounded off with the request of an outdoor bath and a small warehouse.The place chosen for location by the principals is the farthest from the house, next to the existing evergreen trees sector on the lot.
Starting from successive folds of the concrete enclosure, we managed to give this small building sufficient visual and audio privacy in relation to its surroundings, and thus to fulfill the request for a space to facilitate the realization of quiet activities and introspection. This feature also allowed defining an expansion that is extended to join the landscape, highlighting the access to both the bathroom and the multipurpose space, and leaving the warehouse hidden.
阿根廷Torcuato住宅景观阁外部实景图
阿根廷Torcuato住宅景观阁外部夜景实景图
阿根廷Torcuato住宅景观阁局部实景图
阿根廷Torcuato住宅景观阁内部实景图
阿根廷Torcuato住宅景观阁平面图
阿根廷Torcuato住宅景观阁剖面图
客服
消息
收藏
下载
最近
























