查看完整案例


收藏

下载
Japan Kai City Apartments
设计方:MAMM DESIGN
位置:日本
分类:居住建筑
内容:实景照片
图片:16张
摄影师:Daici Ano
客户唯一的、强烈的要求是所有的房间都要朝向南方。位于日本中部甲府市区域的甲斐在冬天非常寒冷。我们认识到生活在这个区域中的人们与我们生活在东京的人相比拥有更多的渴望。根据场址的规定,简单的将所有的房间垂直的堆叠在一起并建造一栋三层楼高的住宅是可行的。但是我们认为这并不是一个号的
设计方案
,因为尽管这个家庭中有两个小孩子,这还是会弱化居住在每个楼层中的家人的关系。而且与周围两层楼的住宅相比,三层楼的设计就显得带有强制性了。
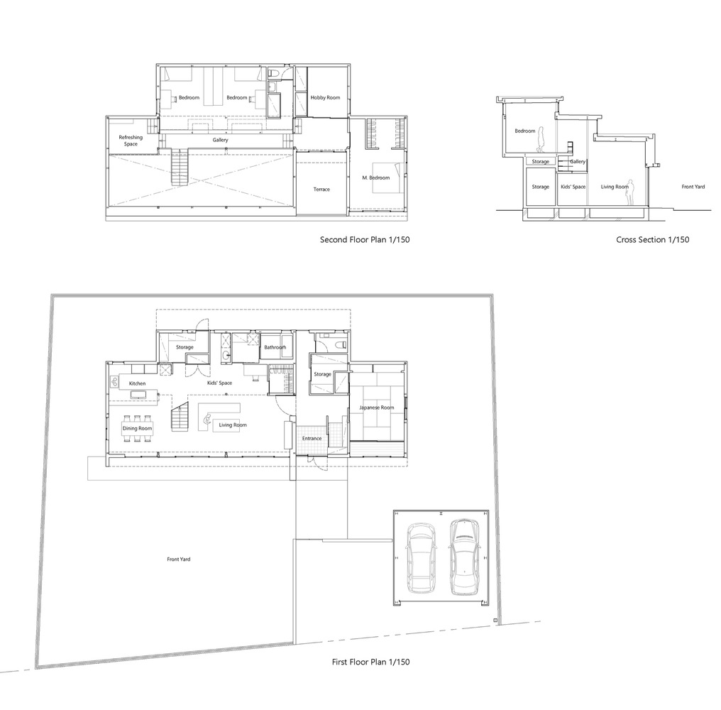
因此,我们将住宅设计成了一个阶地的形式,虽然所有的楼层仍然保持着水平的连接状态,但是住宅中所有的房间都面对着南部。在较低层面的建筑体量中有连接着前院的一个起居室、一个画廊/提神空间和卧室。较高的建筑体量中则是更加私人的 空间。阶地建筑体量下的空间被当成了住宅的北面,包含了盥洗室、卫生间和储藏室。我们的目的并不仅仅将住宅划分成起居室和卧室,还是为了创造一个媒介空间,在这里每个家庭成员都能做自己的事,同时也能感觉到其他家人的氛围。
译者:蝈蝈
The only strong request from client was that all rooms should be oriented to the south. Kai-city, where they have harsh winter, is in Kofu basin, which is located in central part of Japan.We realized that people who lives in the area has incomparably more longing than we have in Tokyo. According to site regulations, it is possible to stack all rooms simply vertically and build a 3-story house. But we think it is not a good solution, since it will weaken relations among family who occupies each floor, though the family has two small children. And it must be a coercive volume compared with surrounding two-story houses.
Thus, we designed the volume as a terraced shape in which all rooms face south though the floors still keep horizontally connections. The volume consists of, from lower level, a living room connecting with front yard, a gallery / refreshing space, and bedrooms. The higher is the more private space. Spaces under the terraced volume are used for back-of-house such as bathroom, toilet and storages.Our attempt here is not to separate the house into only living room and bedrooms but also to create intermediate spaces where each member of the family enjoy his/her own time and, at the same time, also feel other members’ atmosphere.
日本甲斐市住宅外部实景图
日本甲斐市住宅外部夜景实景图
日本甲斐市住宅内部实景图
日本甲斐市
住宅平面图
日本甲斐市住宅平面图
客服
消息
收藏
下载
最近


















