查看完整案例


收藏

下载
Canadian Lockeport Beach Residence
设计方:Nova Tayona Architects
位置:加拿大
分类:居住建筑
内容:实景照片
图片:26张
摄影师:Janet Kimber
这是由Nova Tayona Architects设计的Lockeport海滩住宅。该项目位于加拿大新斯科舍省南岸的海湾保护区里,这里是海滩的尽头、河流汇入海洋之处。时间与潮汐创建了项目所在地的一公里森林沙洲。尽管该项目坐落于广袤海岸线上的优越区位,客户更青睐于场地内敛、舒适的特点。散乱的落叶松、云杉对新斯科舍省的某些地区而言极其独特,这些树木覆盖了场地,隔绝了开阔的海滩,抵御了沙洲的侵袭。该项目选址策略的出发点是保护沙洲,并让客户听见海声而不直接看海。客户不希望自己的新住宅能直接从海滩上被望见。
译者:筑龙网艾比
From the architect. Within a protected cove along the South Shore of Nova Scotia, at the end of a stretch of sand, a river empties out into the sea. Time and tides have created a one kilometre forested sandbar on which this beach house sits.
Approaching the site is a parallel journey between a low-lying salt marsh to the north-west and the forested sandbar to the south-east. Along that journey, the beach is never in view, and so, the project is ironic as beach houses go. Despite the dramatic location on an expanse of shoreline, the clients were drawn to the internal, cozy character of the site. Scraggly, curmudgeonly tamarack and spruce trees covered in Old Man’s Beard are very particular to some areas of Nova Scotia and thrive in the 10 cm of shallow soil here. The trees shelter the site from the openness of the beach and defend against erosion of the sandbank. A mandate of protecting the sandbank, and the clients’ appreciation of hearing the ocean, but not seeing it were starting points for siting strategy. They did not want their new house to be on display from the beach.The most one sees of the water are moments of shimmering light filtered through the treeline at the site’s southern edge. The sound of waves pull one along a worn footpath through the tree line, towards a break in the vegetation that finally reveals the coast and ocean horizon. From these initial impressions, the house tucks itself against the forest, is hidden from the shore, and beach walkers plus the resident endangered piping plovers are none the wiser.
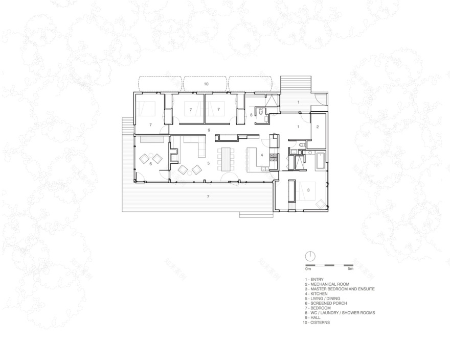
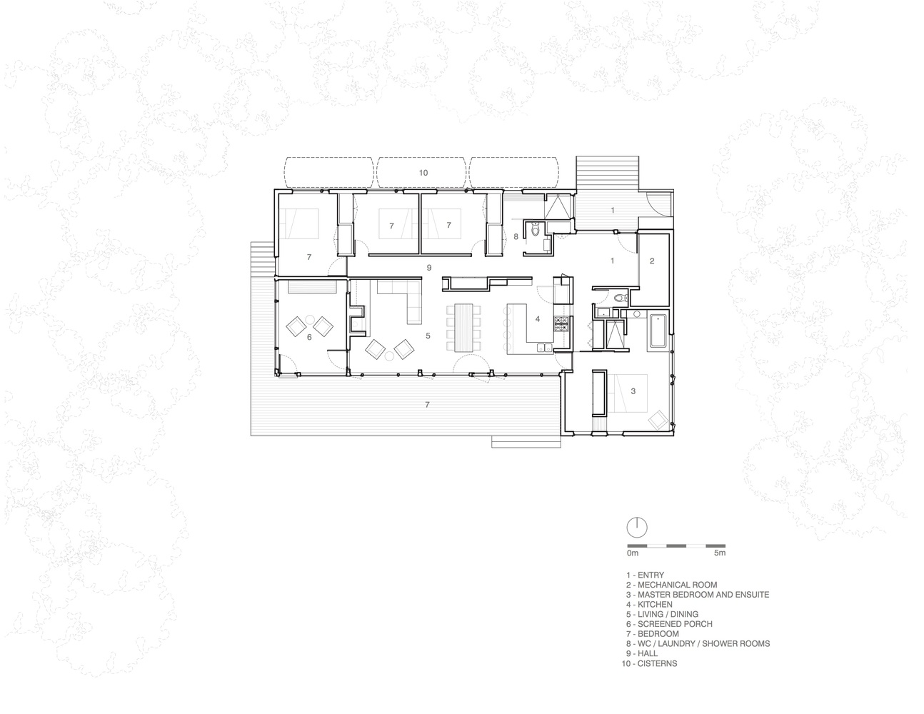
Skinned in black-stained eastern white cedar, the house recedes against the forest backdrop, and contradicts its bright interior. The design takes advantage of passive solar orientation, and catching light. At 10’ (3m) deep, the 48’ (15m) wide cantilevered roof overhang provides the perfect amount of shade in the summer, and allows the low winter sun to warm the concrete floors in the cold season. Not only does the asymmetrical gabled roof provide shelter and shade, it also leverages coastal storms, harvesting rainwater that is funnelled into three 1750 gallon (6600 litre) cisterns. The storage tanks are the sole source of potable water for the house.
To protect against storm surges, the house is elevated by a grid of helical piles bearing 6 meters down into the sand. Above the piles, the lightweight wood-frame structure houses a straight-forward, one-level plan. Bedrooms and private areas have low-ceilings and an intimate closeness with the trees and north-west light. The tall, main living area has a wide view to the south, towards a small clearing of beach grass and the tree-line separating the house and the shore.
加拿大Lockeport海滩住宅外部实景图
加拿大Lockeport海滩住宅外部夜景实景图
加拿大Lockeport海滩住宅内部实景图
加拿大Lockeport海滩住宅-9
加拿大Lockeport海滩
住宅平面图
加拿大Lockeport海滩住宅剖面图
加拿大Lockeport海滩住宅立面图
加拿大Lockeport海滩住宅平面图
客服
消息
收藏
下载
最近




























