查看完整案例


收藏

下载
Canada BulanLi cabin
设计方:ACDF Architecture
位置:加拿大
分类:居住建筑
内容:实景照片
图片:18张
摄影师:Adrien Williams
“布兰奇”小屋让人想起了这个区域中本地住宅的精神,小屋坐落在拉马尔白的"Terrasses Cap a l’Aigle"区域中。小屋简单而且纯粹的建筑风格用一个现代的时尚温柔的补充着夏洛瓦的风景。小屋较低的基部使用的未加工混凝土是对旧时木谷仓的石质基部的一种致敬,那时的木谷仓在这个区域中很常见。这个基部同样也是主要入口的基础,里面的空间包含了“布兰奇”小屋的技术职能。
小屋栖息在一堵矮墙上面,位于上部的两个楼层被覆盖上了漆成白色的木材,这样的木包层让人想起了这个区域中曾经用于旧式住宅上的石灰泥。白色的包层木材是很光滑的,或者拥有未加工的纹理,有时基于墙壁的位置会创造一个有网状小孔的侧边,从而将光线和欢乐带进小屋中。“布兰奇”小屋的四间卧室位于小屋的中间,以便于让位于顶部楼层的生活空间能够拥有最大程度的全景视野。
译者:蝈蝈
The "Blanche" Chalet, whose name evokes the spirit of the vernacular houses of the region, is situated in La Malbaie’s area of the "Terrasses Cap a l’Aigle". Its simple and pure architecture gently complements the landscape of Charlevoix in a modern fashion.The raw concrete materiality of the lower level is a nod to the stone foundations of the old wooden barns that once swept the landscape. This base also serves as the foundation for the main entrance and houses the technical functions of the cottage.
Perched on the podium, the upper two levels are clad in a white stained wood, which is reminiscent of lime plaster that was applied to the ancestral homes of the area. The wood is smooth or raw textured and, at times, creates an openwork siding, depending on the facade, bringing lightness and joy to the house.The four bedrooms of the "Blanche" Chalet are centrally located in order to maximize the panoramic views of the living spaces that are at the top level.
加拿大布兰奇小屋外部实景图
加拿大布兰奇小屋内部实景图
加拿大布兰奇小屋草图
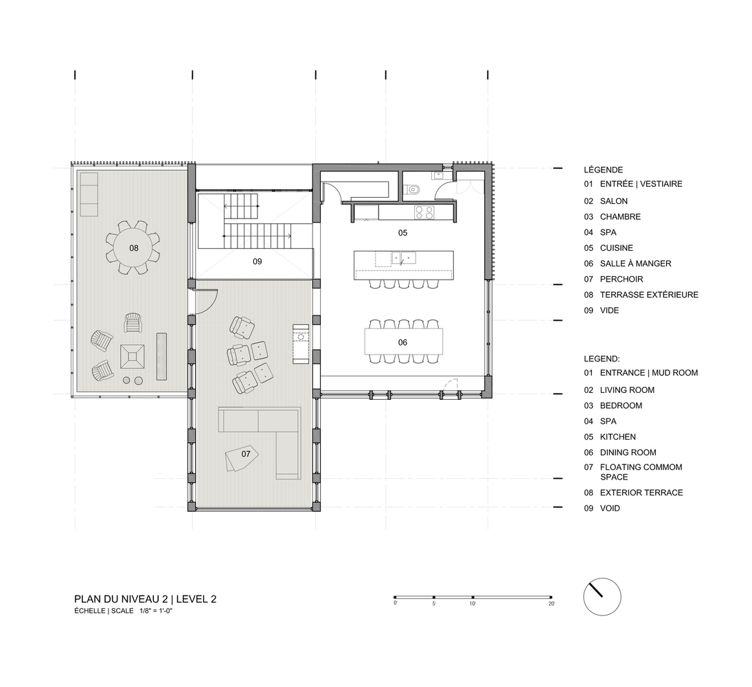
加拿大布兰奇小屋平面图
加拿大布兰奇小屋剖面图
加拿大布兰奇小屋立面图
客服
消息
收藏
下载
最近




















