查看完整案例

收藏

下载
St. Peter's renovation residential
设计方:Glasshouse
位置:澳大利亚
分类:居住建筑
内容:实景照片
图片:19张
摄影师:Aaron Citti
项目坐落在阿德莱德这个保守城市的圣彼得郊区中,这是一栋现代的两层楼扩建部分,建筑体量表面有锌包层,它大胆的扩展了这个家庭住宅的边界。5米的四坡屋顶保证了住宅的正面,扩建部分骄傲的维护着自己在斜坡街区中的权利,无缝的与一个户外的木框架甲板连接在了一起,位于一个地面游泳池的上面。最后的结果是一栋位于历史性环境中的自信的现代建筑体量,它可以创造一个极好的对比,并重新定义我们对“优雅”的鉴别。
阿德莱德枝叶繁茂的圣彼得郊区以豪华的旧住宅边一条接一条的林荫大道为特色,这种旧住宅与别墅和村舍是同类型的建筑体量,这些建筑体量被一排排巨大的悬铃树所完美的补充着。原始的住宅被归类为一个历史保护区中的一种“贡献项目”,因此墙壁需要被保留下来。建筑师Don Iannicelli回忆道:“我第一次看见这个街区的时候在想我要将这些不规则街区的挑战变成有利的条件,比如斜坡和环境,我们不能让它们限制我们”。
译者:蝈蝈
A contempory double story extension clad in zinc boldly pushes the boundaries of this family home in the conservative Adelaide suburb of St Peter’s. Whilst the 5m hipped roof ensures reference to the front of the home, the extension proudly asserts itself over the sloping block, seamlessly connecting to an outdoor timber framed deck, pitched high over an infinity above ground pool. The overall result is a confident statement about modern architecture’s place in such a historic context- it can create a wonderful contrast, redefining our appreciation of ‘elegance’ itself.
Adelaide’s leafy suburb of St Peter’s features avenue after avenue of grand old homes, a homogenous convention of villas and cottages, which are perfectly complemented by rows of gigantic plane trees. The original dwelling was classified as a ‘contributory item’ in a historic conservation zone, and as such the facade needed to remain. ‘I recall seeing the block for the first time and thinking, these challenges, the irregularity of the block, the marked slope, the context, we need to turn these into assets, we can’t let them limit us, recalls Architect, Don Iannicelli.
圣彼得翻修住宅外部实景图
圣彼得翻修住宅外部夜景实景图
圣彼得翻修住宅局部实景图
圣彼得翻修住宅内部实景图
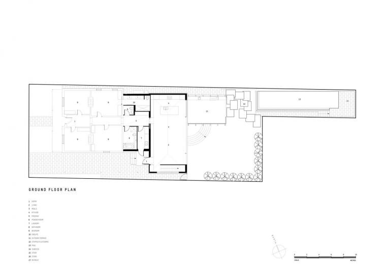
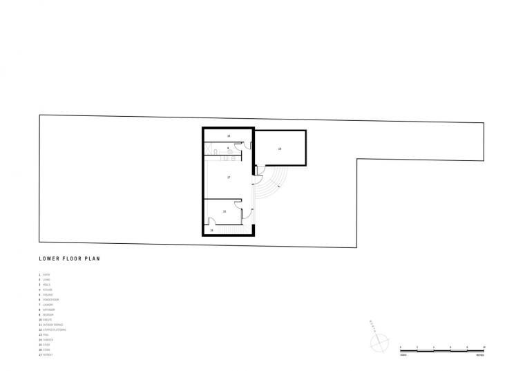
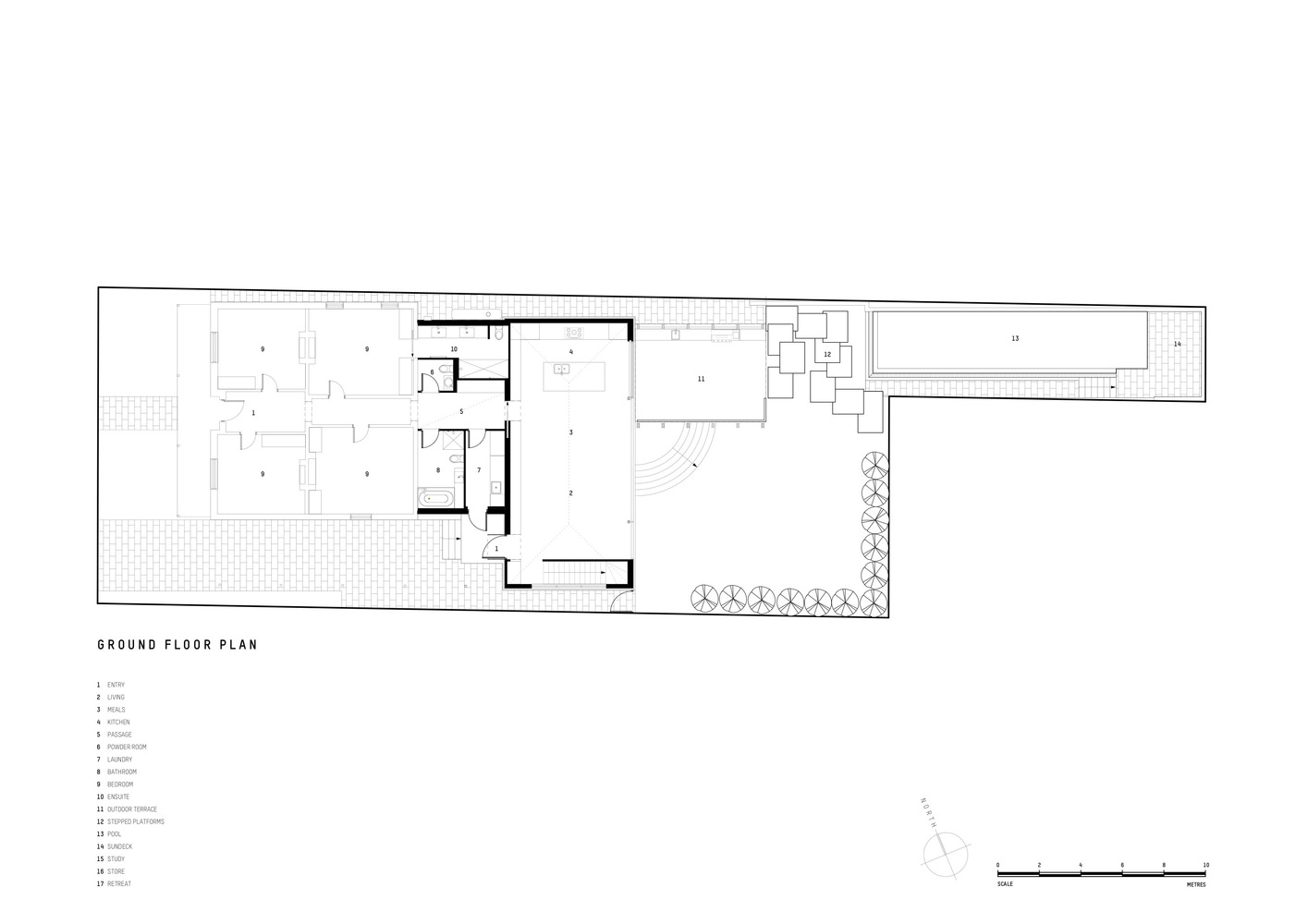
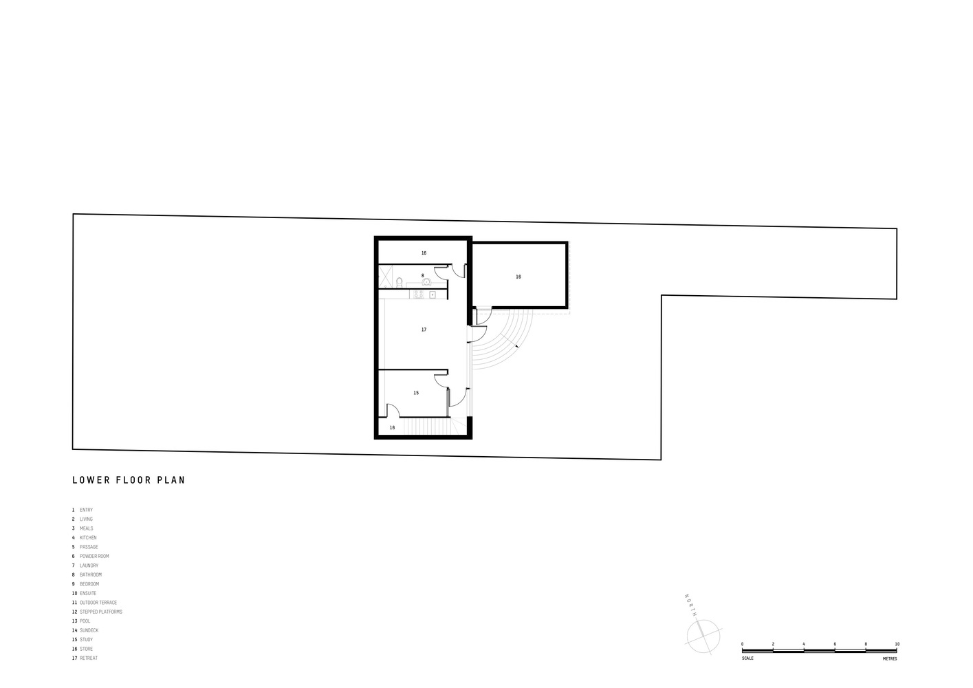
圣彼得翻修
住宅平面图
圣彼得翻修住宅平面图
圣彼得翻修住宅剖面图
客服
消息
收藏
下载
最近







































