查看完整案例

收藏

下载
Montreal Marquette Apartments
设计方:NatureHumaine
位置:加拿大 蒙特利尔
分类:居住建筑
内容:实景照片
图片:21张
摄影师:Adrien Williams
这个项目坐落在Rosemont-Petite-Patrie,面对着帕米诺街道的后院,帕米诺街道是蒙特利尔的一条繁忙的商业街。这个项目包含了6套住宅单元,每一套住宅单元都有一个私人的入口。早先,项目以它简单的建筑体量、一致的褐色砖包层为特色。每个单元不同的规模和抵消的开口为正面带来了活力。在街道一侧,3个停车空间被一个大的阳台覆盖着。为了让二楼拥有最佳的光线,阳台与墙壁和玻璃走道的栏杆是分离的。钢板网镀层覆盖着阳台的外部结构。包裹着铁的铜覆盖着下部的层面,使人们想起了为项目带来节奏的窗户。
译者:蝈蝈
The project is located in the Rosemont-Petite-Patrie facing the backyard of Papineau Street, a busy commercial street in Montreal. The project consists of 6 housing units each boasting a private access. Forward, the project is characterized by its simple volume, uniformly coated with a brown brick. For their variable dimensions and offset openings instill dynamism to the front. Street side, 3 parking spaces are covered by a large terrace.To maximize the contribution of light on the first floor, it was found detached from the facade and the glass walkways with railings. Expanded metal coating covers the exterior structure of the terrace. Copper, the steel cladding covering the lower levels reminds the tone of windows that give rhythm the project.
蒙特利尔马凯特住宅外部实景图
蒙特利尔马凯特住宅内部实景图
蒙特利尔马凯特
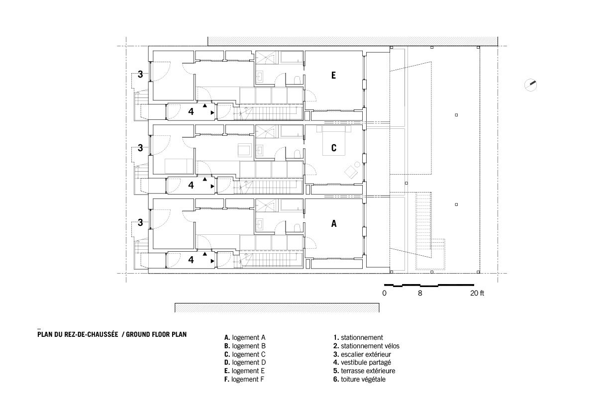
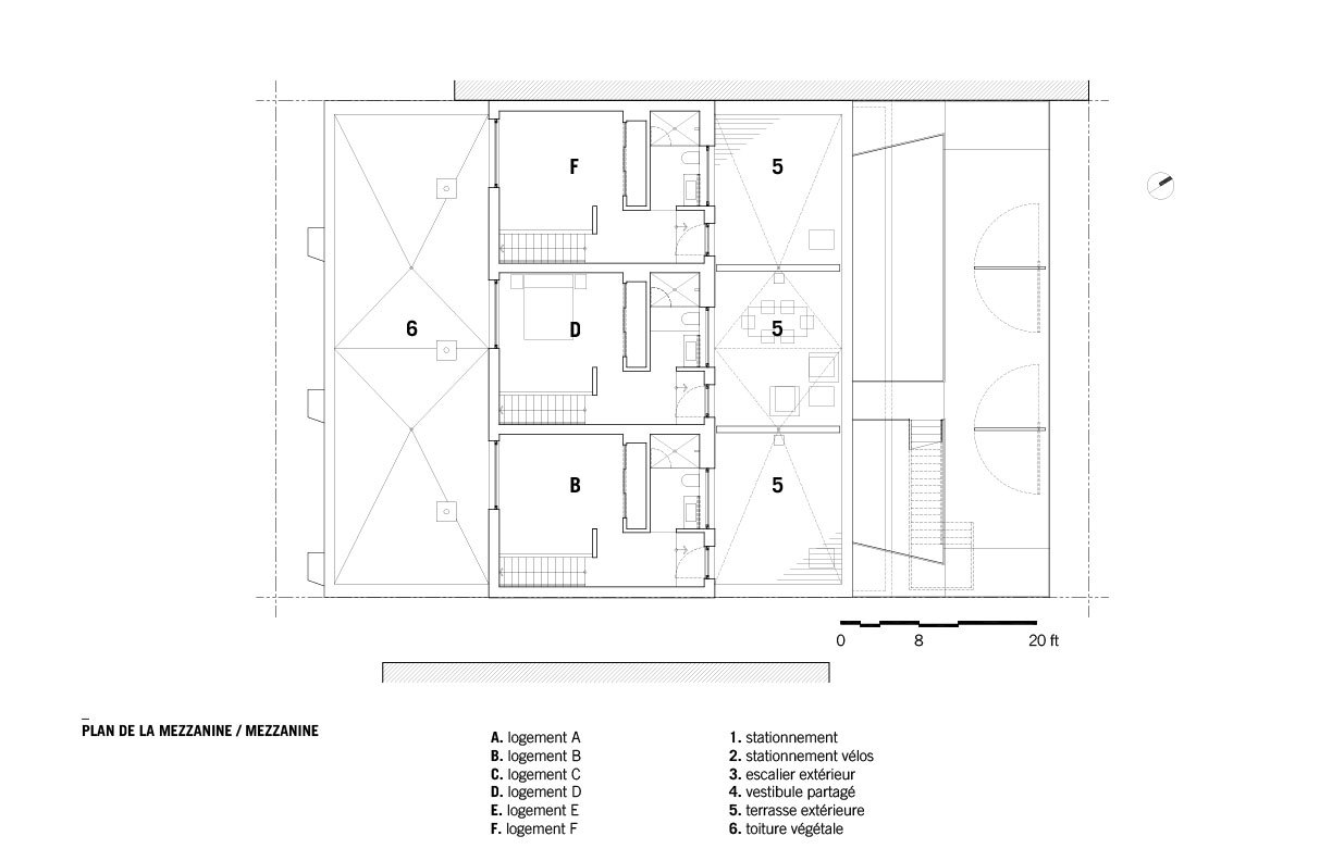
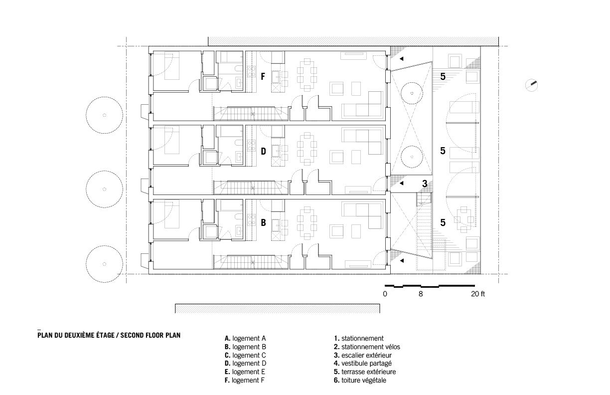
住宅平面图
蒙特利尔马凯特住宅平面图
客服
消息
收藏
下载
最近























