查看完整案例


收藏

下载
Czech Republic Ladvi Detached Family Home
设计方:Prodesi
位置:捷克
分类:居住建筑
内容:实景照片
图片:15张
这栋住宅最初被设计成了一栋单层楼的建筑体量,项目的客户是一对成熟的夫妻,他们想要脱离出市中心繁忙的生活。最后我们将住宅设计成了反映当地规范的形式,这个建筑规范对当地住宅屋顶的形状和颜色都做了要求。住宅的第二个楼层一直扩展到了有顶的走廊上,这个走廊就像是主要的生活空间一样,有两个楼层。住宅设计的最终方案与最初的设计理念及草图并没有特别大的区别。
住宅设计的基本理念是“一栋住宅中的住宅”。住宅只有大约三分之二的面积是受热的生活空间。这栋木制的建筑体量被一个外部的结构封闭住了(平常的砖红色),这栋建筑体量的特色便是空隙以及有顶的走廊。突出的屋顶部分将阳光隔了开来,这一点在南部的玻璃墙壁上体现的特别明显,因此不需要窗帘。建筑体量内部的布局很传统,各个方面都很有逻辑性。在南部,自然的阳光温暖了住宅的生活区域。
译者:蝈蝈
This home was originally designed as a single-level house for a mature couple wishing to move out of the bustling city center. We ended up designing the home as a reaction to local regulations that dictated the shape and color of the roof. The second story continues all the way to the covered veranda, which, like the main living space, has two floors.The final project differs very little from the initial idea and sketches.
The basic concept is that of "a house within a house." Only about two-thirds of the total area of the house is heated living space. This wooden building is enclosed by an outer structure (regulation brick red) featuring interspaces and covered verandas. The overhang of the roof keeps the sun out, especially on the southern glass facade so that window coverings are not needed.The internal layout of the building is traditional yet logical in its aspect. On the southern side natural sunlight warms the living areas.
捷克Ladvi独栋家庭住宅外部实景图
捷克Ladvi独栋家庭住宅外部局部实景图
捷克Ladvi独栋家庭住宅内部实景图
捷克Ladvi独栋家庭
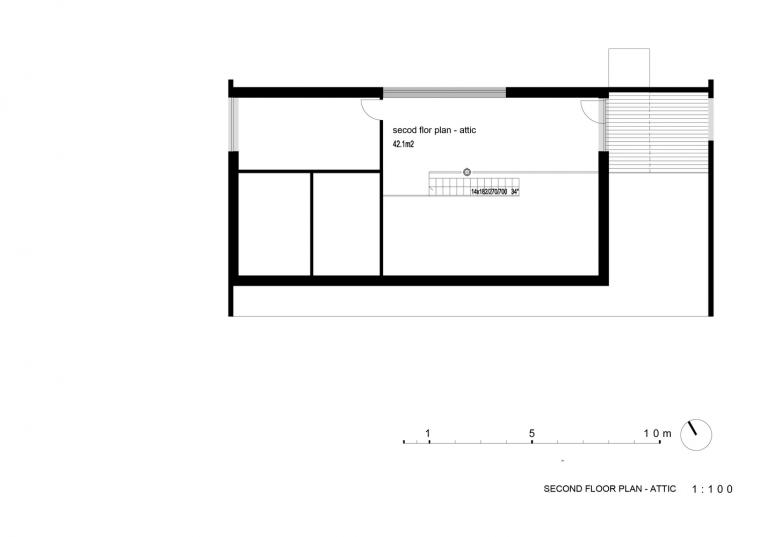
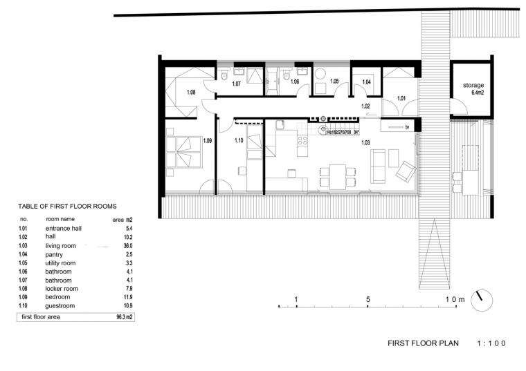
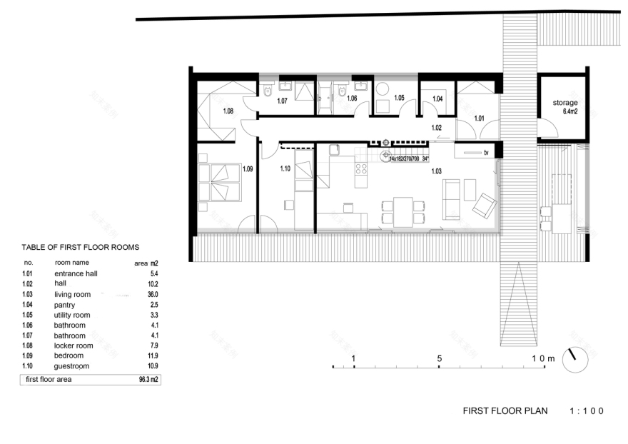
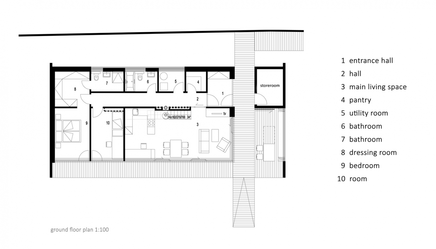
住宅平面图
捷克Ladvi独栋家庭住宅平面图
客服
消息
收藏
下载
最近































