查看完整案例

收藏

下载
The medieval town of new house
分类:居住建筑
内容:实景照片
图片:28张
坐落于 Jura山脉的东侧山脚的中世纪小镇 Regensberg历悠久史,地理位置优越, 坐拥从阿尔卑斯起伏群山到苏黎世地区的无敌景观视野。 小镇城市格局清晰,其古城中心仅有两条主要道路,一为毗邻古堡的Oberburg,另一条则是与其相连的道路Unterburg,也是本项目建筑的所在地。这座两层高的砖木结构建筑位于 Unterberg南侧的坡地上,是Regensberg弥足珍贵的历史建筑之一。但可惜由于多年来结构上的损毁和错误的修补方式,一次大规模的改造已无法避免。建筑师在经过与政府和城镇景观保护委员会的讨论后,决定部分拆除建筑再在维持体量不变的情况下原址重建,其中登记在保护名单上的砖木结构立面和拱顶地窖则需要维持现状。最终,一个极具雕塑感的现代建筑默默地隐藏在了传统瑞士建筑立面的后侧。
在凹凸有致的立面之下,是三间分属于不同人家的公寓。面向城镇,维持原样的北向立面保持了小镇整体历史风貌的完整,而更为舒展的南侧立面则俯瞰着瑞士震慑人心的壮美景色。在两个截然不同的相对立面之间,建筑师创造出了一系列大小、明暗、材质各不相同,极富张力的内部空间。小小的木质房间安全舒适,与这个城市的历史氛围十分契合。而在其外的纯白空间中,巨大的窗户将阿尔卑斯的湖光山色引入室内。穿行在错落有致的楼层之间,随着人的移动,空间、景色和光线也不断发生变化,带来丰富的层次。
中世纪小镇新宅外部实景图
中世纪小镇新宅外部夜景实景图
中世纪小镇新宅内部实景图
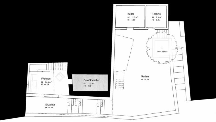
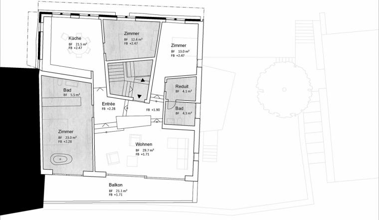
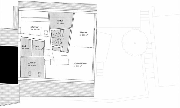
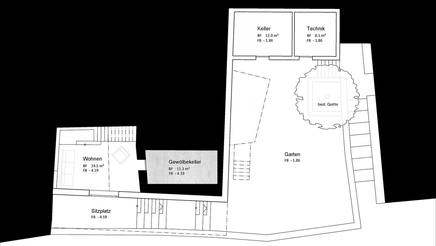
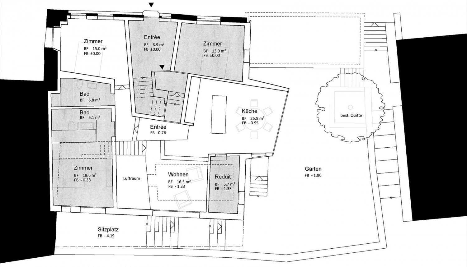
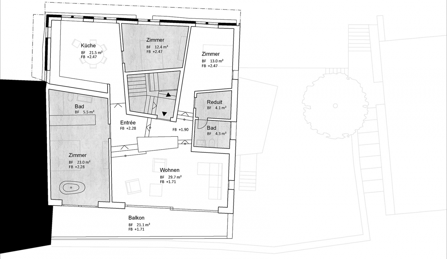
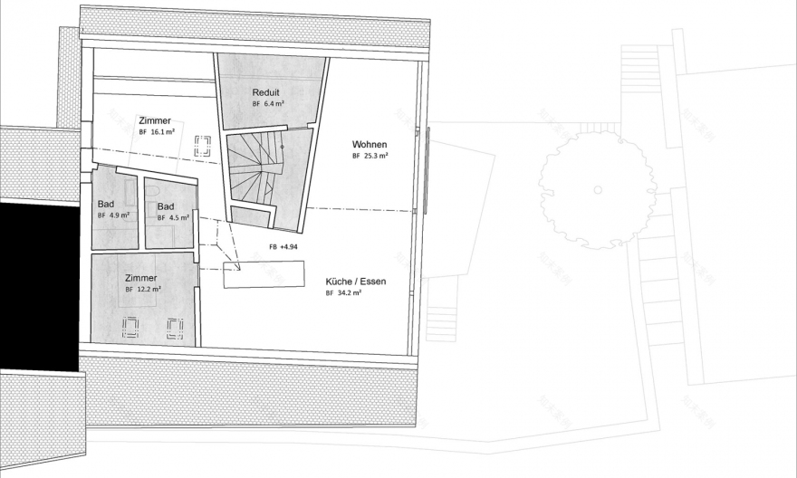
中世纪小镇新宅平面图
中世纪小镇新宅剖面图
客服
消息
收藏
下载
最近

























































