查看完整案例

收藏

下载
【工程地址】:合肥。市委大院【户型面积】:111m2【设计机构】:合肥 1890 设计【主案设计】:夏承龙【施工单位】:合肥筑梦施工【摄影机构】:泽沐摄影【案例主题】:初。现
所有的鲜活生机,都是从干枯腐朽中萌芽而出,由内而外才真正的蜕变。
说在前面......
一样的,跟往常一样长长寒冬里短短的白昼
穿过拥挤的寿春路和商业步行街
跟着王老师来到市委大院这个立在市中心二十年之久的老小区
斑驳的墙面,敦实的行道树,院子里静沐暖阳的老人……
不管外界如何喧闹,这个小区它始终是安静如始的。
这是第一次拜访王老师的老房子,进入房子,我确实有点被拉到旧时光的感觉,东西杂乱的堆放,破旧的建筑门窗,其实很多人疑问包括我没跟王老师沟通之前也会有这样的疑问,为什么不置换更好的新建小区。因为这是市中心的学区房,从跟王老师谈话的字里行间都能感觉到给两个孩子最好的童年。
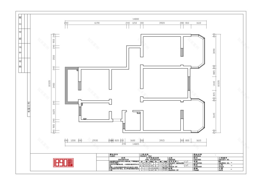
原始结构图
因为在原始的墙体上不能拆除,那只有在每个空间的布局,软装的陈设上面要别具用心,根据王老师一家人的生活的习惯,我们放弃了客厅看电视的功能,打造了一间起居室,入户的内嵌墙体的鞋柜也是在其基础上做更多的功能使用,做到空间最大限度的利用。老房子需要更加侧重保温,防水,防潮等方面,在这些基础性要求解决后,在过道,阳台,餐厅,客厅,卧室等做了不同形式的收纳柜,充分增加居家的实用效果。
厨房Before
厨房 After
由于厨房的朝向在北面,而且本户楼层在二楼,外面植被也比较高,所以平时的采光不太足,那么在后面的设计上就采用了仿爵士白大理石的瓷砖,抛光的表面,会增加空间的亮度,本身白色的石材材质又能显得厨房干净明亮,原木色的橱柜柜面让厨房变得更加清爽。
▼卫生间
Before
▼卫生间
After
卫生间同样面临采光差,通风差等疑难杂症,所以我们保持了与厨房一样的瓷砖,同时保持墙面与地面统一,顶面特意安装新风系统做到新鲜空气循环换气。
原始空间面积较小,同时布局不太合理,所以我们在后期设计一整面的镜柜和台面,不仅在视觉上给人以扩大卫生间的感受,利用率也是极高,收纳做到最大化,同时地面淋浴区拉槽,增加防滑效果,开门的方式,我们利用了谷仓门的推拉效果,不仅节省内部的空间感受,又能为空间增加一些两点的展现。
▼客餐厅
Before
▼客餐厅
After
▼客餐厅
Before
▼客餐厅 After
客厅是家庭的核心区域,更是对于家里有两个可爱的宝宝家庭来说,客厅更是一个有爱的亲子乐园,陈旧的硬装拆除更新是毋庸置疑的,色彩上面以文艺白为基调,搭配地面原木色的木纹砖,蓝色布艺沙发,整排的书架预留出了钢琴的位置,白色在整个空间内一点也不无聊,硬软装的结合,流露出简约的美感。姐姐在弹钢琴,弟弟在做游戏,对于爸爸妈妈来说,这里就是最美好的诗和远方。
▼客餐厅
Before
▼客餐厅 After
餐厅拆除了原建筑的门连窗,与起居室做了一个相呼应的就餐环境,相当于一个小吧台恰如其好的衔接客餐厅的空间,与客厅风格相同,原木色的餐桌椅搭配一组白色的餐边柜,萤火虫的吊灯在空间中相映成趣。
▼主卧Before
▼主卧After
由于主卧的面向朝南,同时老房子外面绿树成荫,植被茂盛,同时又外扩一个南向阳台,我们希望主卧在硬装和软装上尽量简单舒适为主,把更多的视线可以留给窗外。
▼阳台Before
▼阳台After
主卧阳台主要改造成王老师的工作区,一张简易的写字桌搭配一把金色的贝尔托亚单人椅,整个空间通透明朗,无论春夏秋冬,无论办公休憩,这个空间都是最好的去处,用我最喜欢的一句话,阳光为房间开了灯,更为适合不过了吧。
▼儿童房
Before
▼儿童房
After
▼儿童房
Before
▼儿童房
After
每个小女孩心里都住着一个爱莎公主,给小女孩搭配一张白色铁艺床,营造别样的艺术空间感。特意选择小女孩最喜欢的粉色作为床品的颜色。孩子可以在此享受简单快乐的时光。
▼北阳台
Before
▼北阳台
After
北阳台作为生活阳台,为了留住大面积的窗户的采光,简单布置了洗衣机和成品的洗手台,能够收纳平常洗衣物所用的洗护用品。满足日常使用功能。
客服
消息
收藏
下载
最近


































