查看完整案例


收藏

下载
The Japanese flower apartment building
设计方:Hiroyuki Ito Architects
位置:日本 东京
分类:居住建筑
内容:实景照片
图片来源:Makoto Yoshida
项目规模:524平方米
图片:25张
摄影师:Makoto Yoshida
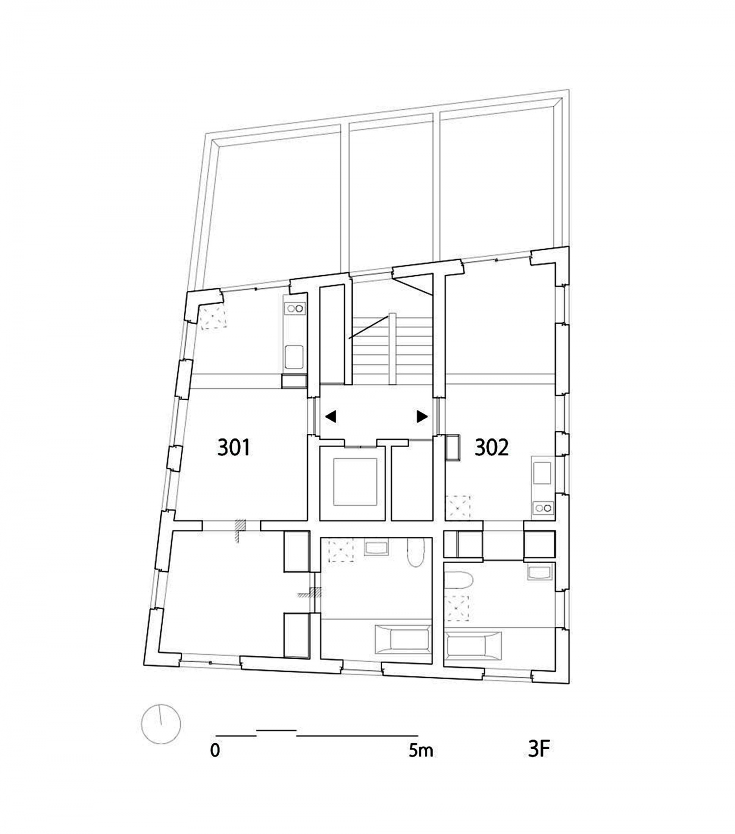
这栋建筑物是一栋公寓大楼,里面包括10个单元,这些单元里面还有复式公寓。场址周围有各种各样的住户,公寓大楼内部有不同类型的房间。阳台延伸出了楼梯一样的建筑体量外部。公寓楼内每个单元都有一个阳台,阳台周围有很高的围墙,围墙上有开口,这些开口有利于内外部之间的连续性设计。
每个公寓单元都由变形网格形成的小屋组成,每个小屋都与另一个小屋连接在一起。浴室和卫生间都在一个小屋内,浴室和卫生间之间没有任何分割,以便于这个小屋与其他小屋处于平等的地位。大楼建筑时使用的是未修整混凝土板材,以便大楼修建完成后建筑材料不被辨认出。这栋公寓大楼没有清晰的形状,因为大楼的建筑结构上有变形和缝隙,但是它具有很多生动、美丽大城市所拥有的模糊外形。
译者:蝈蝈
This is an apartment building which contains ten units including duplex apartments. As a variety of households are living around the site, the building provides different types of rooms in it. Balconies are sticking out from the stair-formed volume. Each unit has a balcony which has rather high walls with openings so that exterior spaces are experienced in a continuation of the interior space.
One apartment unit is composed of some cells of a deformed grid, and each cell is connected to another. A bath and a toilet are contained in one cell without any division, so that it would be experienced equally to other cells in the dueling unit.Rough concrete panel was chosen so that one cannot tell when the building was built. This building with distortion and gaps might not seem to have a clear shape, but its rather vague form obtains a kind of generosity which lively and beautiful cities have.
日本花开公寓大楼外部实景图
日本花开公寓大楼外部局部实景图
日本花开公寓大楼外部夜景实景图
日本花开公寓大楼内部实景图
日本花开公寓大楼内部浴室实景图
日本花开公寓大楼内部过道实景图
日本花开公寓大楼内部局部实景图
日本花开公寓大楼平面图
日本花开公寓大楼剖面图
客服
消息
收藏
下载
最近



























