查看完整案例

收藏

下载
业主及需求
1.关于工作
从事建筑设计相关行业的业主小姐姐是我们的二次装修客户,她明确表示需要能摆得下两台电脑的书桌,也要有能放得下一大柜子专业书籍的书柜。
2.关于美丽
除了工作外,美丽也不能落下,小姐姐想要一个大的衣帽间,摆放包包、鞋子、帽子,除此之外还有必不可少的独立梳妆台。
3. 关于生活习惯
卫生间要做到马桶淋浴间分区;虽然是一个人住,但是杂物也较多,要有满足储物的杂物区。
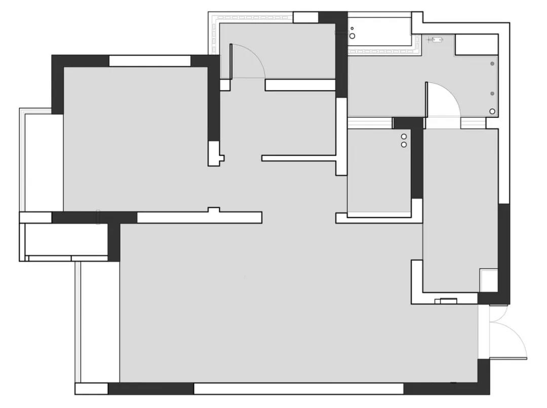
初测现场感受:
1.卫生间尺寸局促,很难实现摆放马桶的情况下淋浴区独立;
2.生活阳台区域和厨房面积大小相似;
3.主卧尺寸局促,床摆下去后,开门都成问题;
4.房子位于较高楼层,空间整体采光很好。
设计调整:
1.重新梳理卫生间、厨房和生活阳台的关系,调整规划后实现卫生间干湿分区,使用上更加便利。另外,设计师根据承重结构与落水管区域规划出了超大的壁龛空间。
2.厨房改为开放式,扩大客餐厅视觉空间的同时,生活阳台的比例也更加协调,同时也划分出一个杂物存放区。
3.利用主卧进门处隔墙外推区域,设置梳妆台与衣帽柜,满足小姐姐的日常使用,也解决了主卧的开门问题。
空间墙面与顶面用墨绿色漆勾勒线条与大面漆呼应,在硬装材质上局部加入长虹玻璃、玻璃柜门和黑色柜体,软装点缀黄铜和红色,整体空间呈现出复古怀旧夹带轻奢俏皮之感。
客厅红色+黑色的柜体与绿色的电视背景墙形成鲜明对比。在很多人的认知中,红色与绿色的搭配总有一种俗不可耐的味道,然而红配绿又是自然界最普遍的组合,一个鲜艳且热烈,一个流淌着生命力~
绿色背景搭配浅色与红色点缀的内饰家居,清新而鲜明的色彩如同绽放的鲜花,绿色的花萼衬托着娇嫩的花蕊,浪漫之感扑面而来。
哑光浅灰地砖通铺了厨房客餐厅,干净利落的空间摆上一块小巧的地毯,与圆形小茶几相呼应,布置上灰色布面沙发,HOLD住客厅大面积的绿色。沙发背景墙以挂画和落地灯结合的方式,呈现出一种高级的精致感。
餐厅与客厅连通的格局,让空间显得敞亮。金属点缀的餐桌搭配墨绿色的餐椅,布置上精致的花瓶,让用餐氛围显得颇有情趣。
一个人的厨房也要足够精致,嵌入式冰箱隐藏在黑色橱柜中,厨房的颜值得以进一步提升,烹饪成为一种享受。
为了满足小姐姐的工作需求和“美丽需求”,衣帽间保留衣柜并设置书桌,兼具了书房的功能。
卧室延续客厅的绿色调,搭配白色大床和柜体,整个睡眠空间清新舒适,彰显着如春天般的生机与活力。
进门位置布置了一张梳妆台,营造出一个端庄精致的梳妆打扮小角落。梳妆台区域采用了长镜,镜子高度挂得稍矮,小姐姐在坐下来后也能很方便的使用。
卫生间原本的空间较小,在设计师的调整下做了干湿分离,浅色瓷砖配上智能马桶,干净而实用。
客服
消息
收藏
下载
最近






















