知末
知末
创作上传
VIP
收藏下载
登录 | 注册有礼
知末案例   /   家装空间   /   平层   /   现代平层

《沐晨》雅致空间丨中国上海丨吴犇,蔡一萍

2021/09/11 04:24:52
查看完整案例
微信扫一扫
收藏
下载
项目信息
小区:上海 新福康里
主创设计师:吴犇
软装设计师:蔡一萍
摄影师:吴伟杰
户型:两室(改三室)
使用面积:82 ㎡
总造价:64万
工作室地址:上海市 徐汇区 莲花路2080弄50号D栋307室
原始图
《沐晨》雅致空间丨中国上海丨吴犇,蔡一萍-10
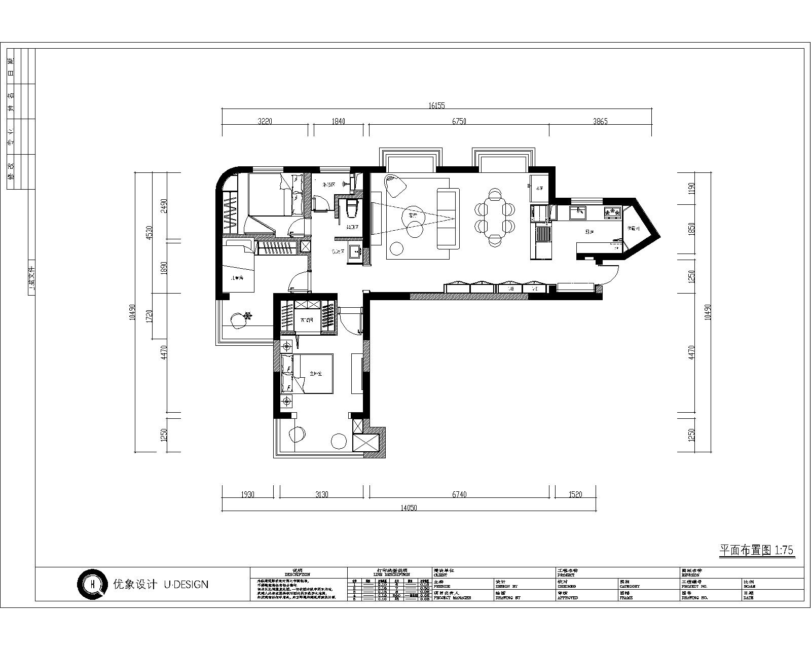
平面图
《沐晨》雅致空间丨中国上海丨吴犇,蔡一萍-12
入户玄关
《沐晨》雅致空间丨中国上海丨吴犇,蔡一萍-14
客餐厅厨房一体化设计
《沐晨》雅致空间丨中国上海丨吴犇,蔡一萍-16
《沐晨》雅致空间丨中国上海丨吴犇,蔡一萍-17
《沐晨》雅致空间丨中国上海丨吴犇,蔡一萍-18
《沐晨》雅致空间丨中国上海丨吴犇,蔡一萍-19
《沐晨》雅致空间丨中国上海丨吴犇,蔡一萍-20
《沐晨》雅致空间丨中国上海丨吴犇,蔡一萍-21
《沐晨》雅致空间丨中国上海丨吴犇,蔡一萍-22
《沐晨》雅致空间丨中国上海丨吴犇,蔡一萍-23
卫生间“三分离”设计
《沐晨》雅致空间丨中国上海丨吴犇,蔡一萍-25
《沐晨》雅致空间丨中国上海丨吴犇,蔡一萍-26
《沐晨》雅致空间丨中国上海丨吴犇,蔡一萍-27
《沐晨》雅致空间丨中国上海丨吴犇,蔡一萍-28
《沐晨》雅致空间丨中国上海丨吴犇,蔡一萍-29
《沐晨》雅致空间丨中国上海丨吴犇,蔡一萍-30
《沐晨》雅致空间丨中国上海丨吴犇,蔡一萍-31
《沐晨》雅致空间丨中国上海丨吴犇,蔡一萍-32
《沐晨》雅致空间丨中国上海丨吴犇,蔡一萍-33
南京喵熊网络科技有限公司 苏ICP备18050492号-4知末 © 2018—2020 . All photos and trademark graphics are copyrighted by their owners.增值电信业务经营许可证(ICP)苏B2-20201444苏公网安备 32011302321234号
客服
消息
收藏
下载
最近