查看完整案例


收藏

下载
Chile Jardines del Sur Residential
设计方:DX Arquitectos
位置:智利
分类:居住建筑
内容:实景照片
合作者:Justyna Skrobanska
图片:12张
摄影师:Pablo Blanco
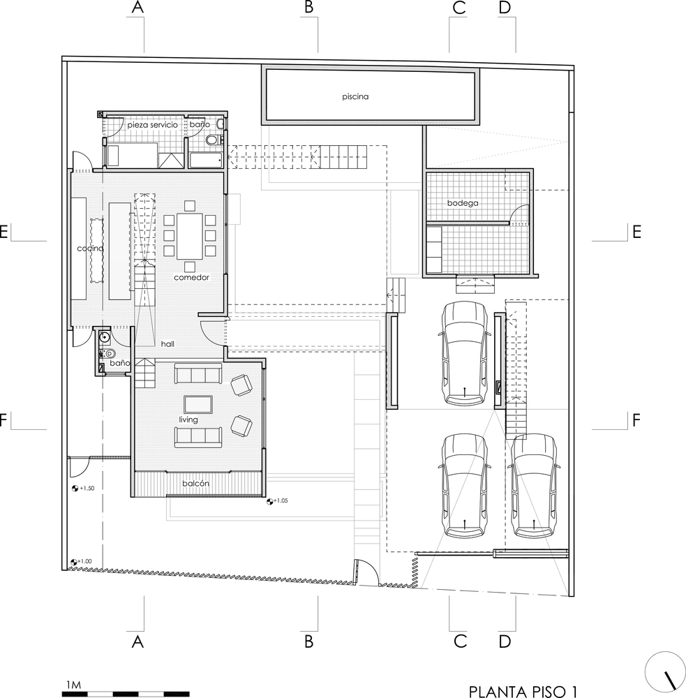
该住宅位于安托法加斯塔 2区,建筑分为上下两部分,公共空间和私人空间,这两部分通过一个大玻璃天桥连接。该场地是一个明显的斜坡地形,现有的边界墙具有不同的高度。这也确定了住宅将根据不同的平面进行设计。建筑的上层是一个悬臂结构,主要是包括卧室在内的私人空间。下面安排了两个楼层,其中第一个是朝北的客厅,厨房和餐厅通过楼梯铰接在了一起。
智利Jardines del Sur 住宅外部实景图
智利Jardines del Sur 住宅外部夜景实景图
智利Jardines del Sur 住宅内部实景图
智利Jardines del Sur
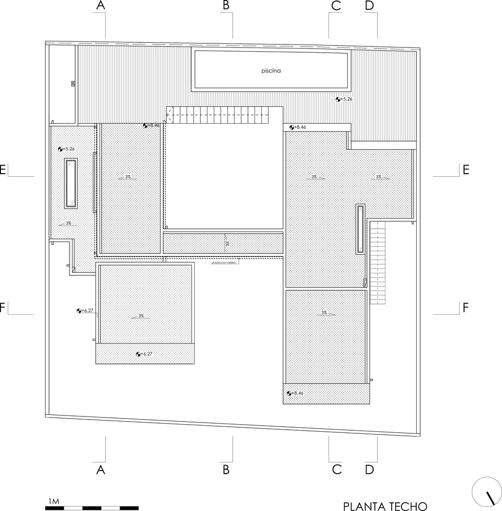
住宅平面图
智利Jardines del Sur 住宅平面图
智利Jardines del Sur 住宅剖面图
智利Jardines del Sur 住宅立面图
客服
消息
收藏
下载
最近

























