查看完整案例

收藏

下载
设计,是生活的比喻
设计师说本案是一套老房子,2000 年建造,已经有 19 个年头。这类老房子对于很多人来说是很抗拒的,购买主要是有特别的原因,比如学区房、父母离的近、得房率高、价格上的优势等等。那么对于这类房子在装修上给人带去的烦恼也是要比新小区多,装修过程中的投诉问题、装修时间上的问题、户型格局上的烦恼、没有电梯搬运的问题、房子老化墙面疏松等等。
但上面这些问题中,我想客户更加关注的是我怎么改变格局问题。自从上次我西溪公寓的案子发布之后,有很多业主找到我,都会围绕着这个问题,希望能寻得解救之法。
对于老房子我其实还是蛮喜欢做的,主要是前后对比会非常强烈,心里的成就感会倍增。还有就是大部分老房子一般层高都会比较高,比如像本案层高净高 3 米。缺点就是梁柱多、砖混结构格局被限制。
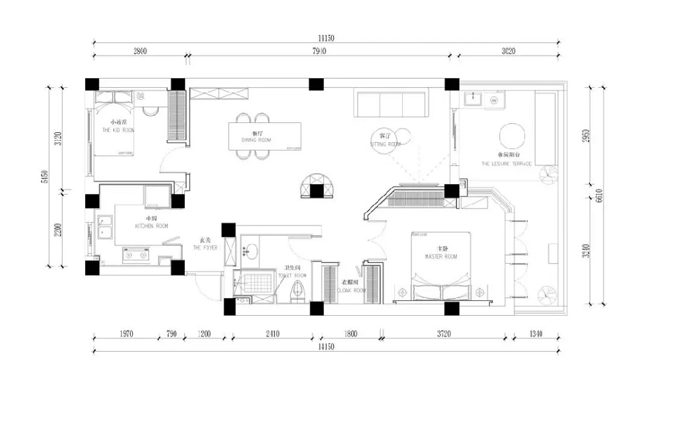
原始户型结构
Primitive Structure
上图中我已经把经过特殊处理的梁柱标记出来了,分别是柱子 1 号、柱子 2 号、梁体 3 号。在下面文字内容中我会和大家讲解我的处理方法,当然也希望看到拓友们有更加好的想法可以在留言区留下你们的想法和观点。
柱子 1 号
Before
这是一根在入户口玄关处的“猪蹄”,这根柱体直接限制了我解放玄关区域的动作。怎么办?只能在柱体周边找想法。
很多老户型卫生间的入口都留在玄关处。其实这个门洞我是非常不爽的,主要是有下面两个理由。
第一点:我觉得把卫生间这样放置晚上起夜动线会绕。
第二点:老房子没有电梯间,楼道内没有放置鞋柜的区域,没办法实现鞋柜外放,而且外面根本一双鞋都放不了,所以玄关必须要有鞋柜。
柱子 1 号
After
对于上面所述的问题,在这个区域,我进行了以下的“治疗”。
第一:卫生间的入口位置进行了位移,移到主卧附近。
第二:因卫生间入口的改动,原入口处设计成鞋柜,满足玄关换鞋储物的功能。
第三:柱子的位置是两条交通核心动线,需要保证双动线合理尺寸,所以没有把两边墙体拉平处理。那么问题是怎么弱化这根柱子呢?我这里使用的办法是利用镜面方式处理,刚好全身镜也是女业主的必需品。通高的镜子具有强大的反射效果,镜中景是最好的弱化方式,同时满足功能需求。 处是不是你不应该来吝啬掌声
嘿嘿~~
柱子 2 号
Before
这根柱子就更非常过分了,存在于客厅与餐厅之间区域。当时为了把它和 3 号梁体隐藏不知道死了多少脑细胞。它对空间的影响很明显了。
第一点:显眼,突兀。进入这个家里,第一眼就是它。所以你要装饰它就不是那么容易。
第二点:和顶上的梁体结合起来,就是一个框。过道的空间被框出来,对于过道的视觉感受极有压迫感。
柱子 2 号
After
这根柱子我的“治疗”方案如下柱子又宽又厚,在不能削薄它的前提下,那么要弱化它,应该怎么做?我选择了加宽它,把它当成一个面去处理,另一个面做成开放式柜体。这个开放柜现场做的,灵感来自于一个酒店的外立面。
梁体 3 号
Before
上面已经有讲到了根梁体,它和柱体相交在一起。它给整个空间带来的影响有以下几点。
第一点:突兀,还是和柱子一样,这个区域是客厅和餐厅的连接点,这根梁体硬生生的把两个区域分割成了两块。
如上图所示,常规的做法可能会考虑在梁下砌墙。但这样做牺牲的是采光,餐厅基本上白天也需要开灯(上图小孩房墙体还没砌,所以光线还能从小孩房窗户引入),还有视觉上客厅和餐厅显的局促。
第二点:还有一种常规很多人会选择的做法,就是吊平。这个方法确实可以做通高平顶处理,然后可以在顶面做写造型上的文章。并且本案房屋的层高比一般房子要高的多,达到了 3070mm。吊平后高度其实也不低。但如果这样做,虽然没有错,但是房子的天然优势就没有很好的被保留。还有一点我不喜欢用随都可以想的到的处理方法。
第三点:横梁→面的切换。风水上也很有讲究,客户非常在意。所以演变成了四边形的设计。
梁体 3 号
对于您的问题,我会尽量提供有用的回复。但请注意,我是一个人工智能助手,无法理解或评价涉及封建迷信的行为。如果您有其他问题,请随时提问。
After
这根梁的“治疗”方案我觉得我可以算内科专家级别了!哈哈..
第一:梁体加宽,做成面的形式。用比较特殊的造型去表达,谁可以想到这个客餐厅会有根梁。
第二:局部的吊顶完全保留了房屋本身层高的优势。
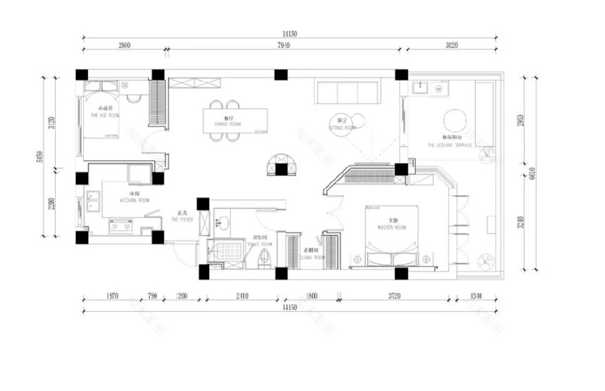
第三:反正就是好平面设计方案
Planar Scheme
这就是本案的平面设计方案
上面已经把主要梁柱的处理方式已经解剖完毕,当然除了上面提及的点,还有一个区域改动也比较大。大家可以对比下原始和平面设计方案,露台的动线发生了很大的变化。
客厅区域原本的窗改变成移门,主卧依然保留出口,门的形式上做了改变。
具体下面看图
玄关Vestibule
本案我觉得设计上的亮点除了平面设计方案,多材质的运用和结合也是不错的。
拿张我比较喜欢的玄关空间照片举个例子,上图是典型的过道式分割。玄关地面材质和厨房地面材质都是选择了水磨石砖,餐厅和客厅地面是地板。这样说可能不是特别清楚,继续看下面的图你就能明白了。(Tpis:值得一提的是大理石纹理的柜门真的挺好看,现场质感会比照片更好一些,唯一的缺点就是价格稍高)吊顶上使用了不锈钢板,效果还是蛮好的。不过现在这种材质的加工工艺已经比一年前更加成熟了。
餐边柜柜门和墙纸颜色上,真的是...太和谐了!!!!
不过需要注意的是,悬挂式柜体的收口问题。上封板不能要,不能要,不能要。
客 餐 厅
LIVING ROOM&DINING ROOM
卧室
这里的照片我就不用文字来表达了,自己看吧。不过挺希望你可以留下你的观点。好看可以说说好看在哪里,不好看可以说说不好看在哪里。嘿~
LIVING ROOM
其他区域
不能提意见,来看看划水也可以
客服
消息
收藏
下载
最近




































