查看完整案例

收藏

下载
Brussels single-family detached homes
位置:比利时 布鲁塞尔
分类:居住建筑
内容:实景照片
图片:27张
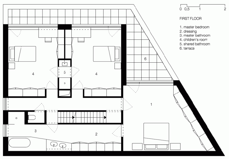
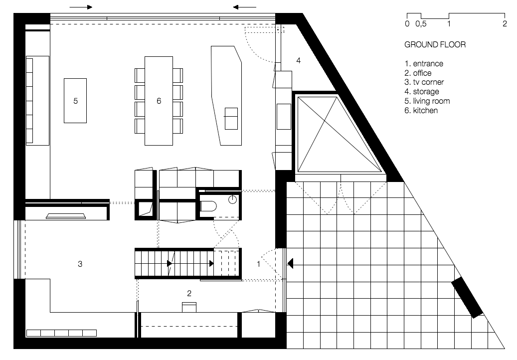
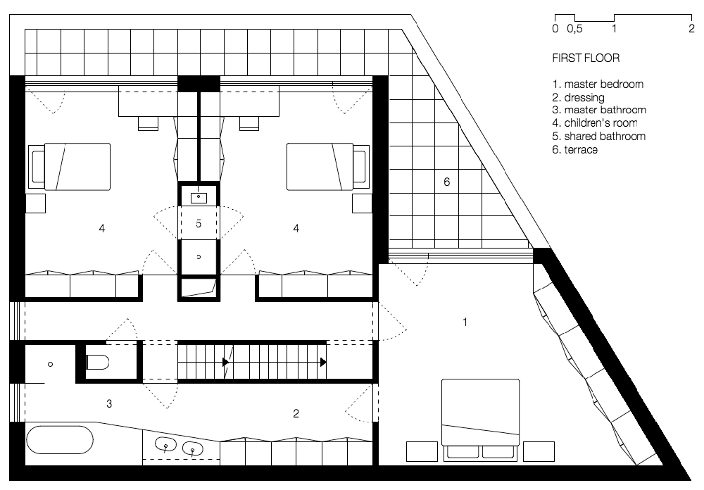
这座位于布鲁塞尔北部的独栋住宅坐落在一块不规则形的地块上。建筑师设计了一座形体相对规整的建筑来抵消地形的特殊性。室内外的墙体都是混凝土现场浇筑而成,这使得建筑看上去全然是一个整体。室内也尝试遵照这样一种整体性来布局。立面开窗的设计考虑到日照朝向和隐私。沿街立面完全是封闭的,沿着这一面,建筑师将交通空间和浴室布置这里。只有最上层的开窗除外,屋顶上的折形窗面向街道开启是为了充分利用周围的景观。所有的居住空间都布置在房屋的背面,面向花园开放。
布鲁塞尔独栋住宅外部实景图
布鲁塞尔独栋住宅之停车库实景图
布鲁塞尔独栋住宅内部实景图
布鲁塞尔独栋
住宅平面图
布鲁塞尔独栋住宅平面图
布鲁塞尔独栋住宅立面图
客服
消息
收藏
下载
最近























































