查看完整案例


收藏

下载
Singapore terrace housing
设计方:Formwerkz Architects
位置:新加坡
分类:居住建筑
内容:实景照片
图片来源:Albert Lim
设计团队:Alan Tay, Iskanda Idris, Cai Xun
图片:15张
摄影师:Albert Lim
重建的新加坡半独立式住宅,是为了多代人同住在一个屋檐下设计的,这样的历史在后去的四十年内,一直出现在同一条街上。当一家人决定重新建造他们的房子的时候,他们希望新建筑能够满足不断扩大的家庭的需求,同时也能保护他们的隐私,因为在这些半独立式的住宅隔壁,就是高耸的建筑。他们希望
设计方案
能够满足未来发展的各种需求。
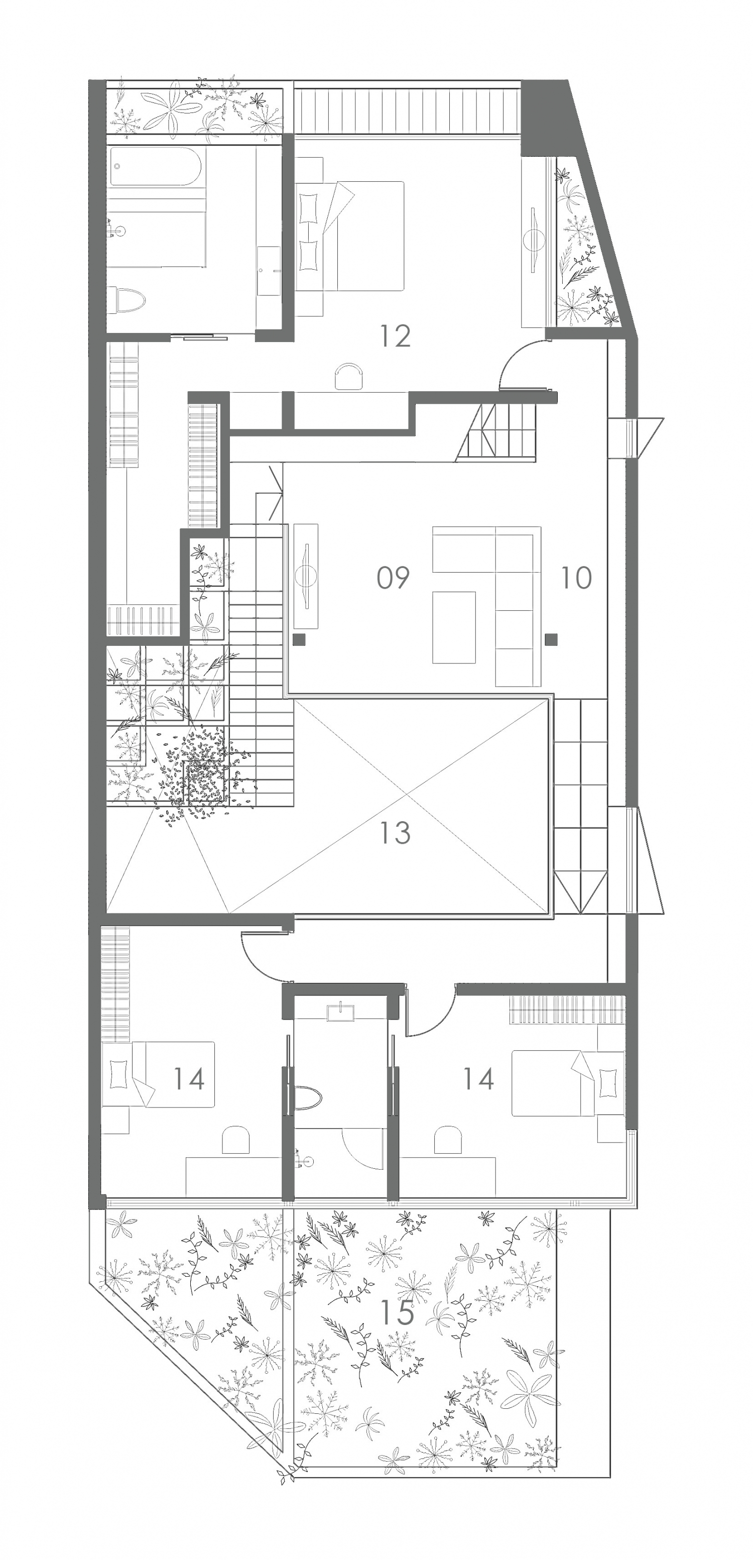
从街道的方向上看起来,改建后建筑就像是野生景观中的坚实结构,建筑体量几乎全部隐藏起来。在内部,房子是围绕一个中心景观庭院建设的,在这里所有楼层的公共空间都是连接在一起的,这也就鼓励了更广阔范围内大家庭的交流。一系列梯田种植体量支撑了墙上的热带植物,同时过滤了进入中心空间的阳光。
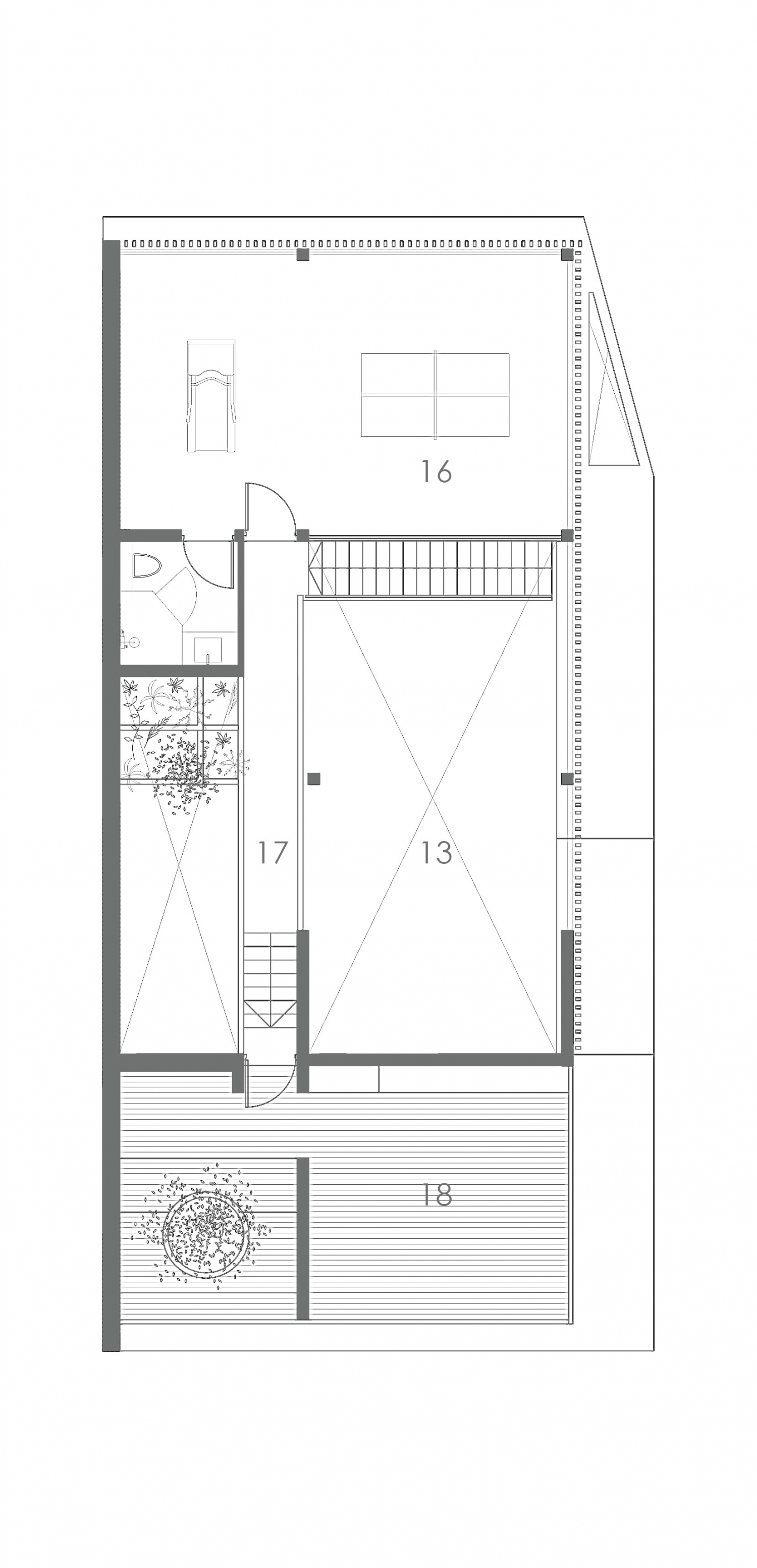
梯田屋顶是建筑中的一个高潮,这里是变换的郊区景观中的休憩之地。设计师们将平台作为一个坐下来闲谈的空间,家人们可以看着同一个方向,共享在一起的时光,就像在一个公园中一样。
译者: 蝈蝈
The semi-detached house in Singapore is re-built for a multi-generation family who has stayed in the same street the past forty years. When the family has decided to rebuild their house to meet the changing needs of the extended household, they wanted their house to be introverted to safeguard their privacy in reaction to the towering neighbor next door where most of the rooms overlook their compound. The wanted a design that can accommodate the need for growth in the future.
From the street, the structure resembles a concrete ruin overran with wild landscape, concealing a voluminous space within. Internally, the house is organized around a central landscaped atrium where the communal spaces at all floors are spatially connected to encourage greater interaction between the extended family. A series of terracing planter boxes support the tropical foliage along the party wall, filtering daylight into this central atrium space.
The terracing rooftop culminates the journey as a place of respite amidst the changing suburban landscape. We imagined the terrace to be conducive to sit and have a conversation while looking out in the same direction, sharing the same moment, like one do in a park.
新加坡梯田住宅外部实景图
新加坡梯田住宅之门口实景图
新加坡梯田住宅内部局部实景图
新加坡梯田住宅内部书房实景图
新加坡梯田住宅内部实景图
新加坡梯田住宅天台平面图
新加坡梯田住宅二层平面图
新加坡梯田住宅三层平面图
新加坡梯田住宅剖面图
客服
消息
收藏
下载
最近

















