查看完整案例


收藏

下载
Ukraine Kharkiv Residential
设计方:Sbm studio
位置:乌克兰
分类:居住建筑
内容:实景照片
图片:25张
摄影师:Andrey Avdeenko
这是由Sbm studio设计的哈尔科夫市住宅。这座波浪状屋顶的住宅为一对夫妇及两个女儿锁住。该住宅位于哈尔科夫区,周边风景如画。因此建筑师想要创建一座融合于自然中的住宅。几乎每个空间能能拥有白桦树林和湖景的优美视野。住宅立面综合使用了玄武岩、热灰和玻璃。首层设有不锈钢游泳池,水面波光凌凌,倒映了天空和树木。建筑师利用屋顶的窗户,在起居室营造了光影交错的氛围。屋顶悬挑出露台8米长,在任何气候中都十分舒适。景观相当实用,且整洁。住宅前方的梓树在炎热气候中带来树荫,而且不会遮挡湖上风光。最初,场地有着15米的高差,因此建筑师决定将其划分为两块平整的台地。其中一块台地布置了凉亭、儿童洞穴。它成为了所有家庭成员及亲友最喜爱的场所。
译者:筑龙网艾比
From the architect. This house with wavy roof was built for a family with two daughters. The house is located in a picturesque place in Kharkiv region. That’s why our task was to create a house that is merge with nature. Almost each space has a beautiful view on the birch grove and the lake.The facades are a combination of basalt stone, thermo ash and glass. On the ground floor there is a stainless steel swimming pool, where the water reflects sky and trees.
We have play of light and shade in the living room during the day because of the windows in the roof. The roof overhangs the terrace eight meters long and provides comfort in any weather.The landscape is extremely functional and neat. In front of the house catalpa trees provide shade in hot weather and do not obscure the view on the lake. Initially on the area there was fifteen meters difference in the height, so we decided to divide it in two flat terraces.In one of the terraces arranged an arbour and grotto for children. It became a favourite place of all family members and their friends.
乌克兰哈尔科夫市住宅外部实景图
乌克兰哈尔科夫市住宅外部夜景实景图
乌克兰哈尔科夫市住宅内部实景图
乌克兰哈尔科夫市
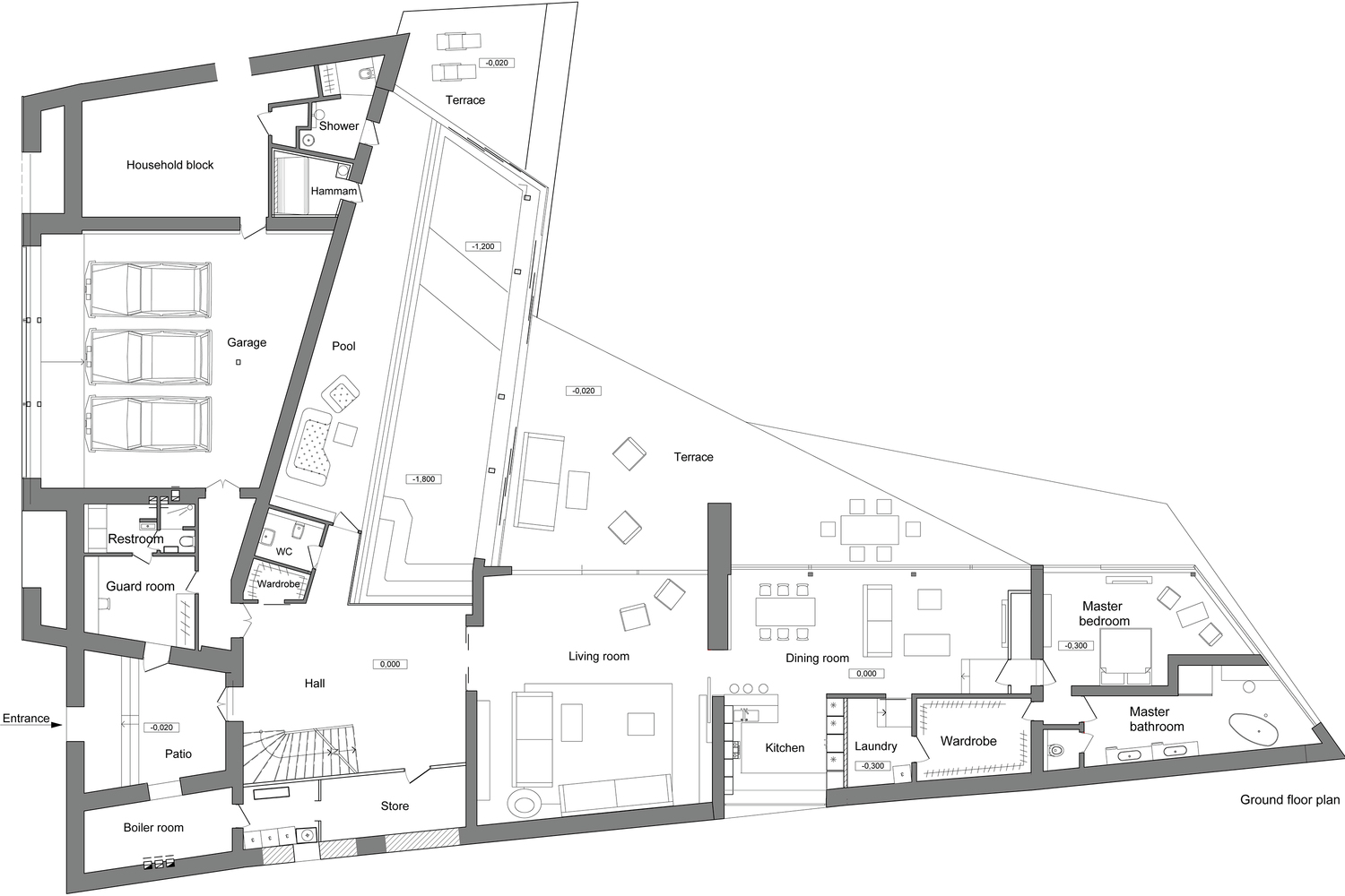
住宅平面图
乌克兰哈尔科夫市住宅平面图
客服
消息
收藏
下载
最近



























