查看完整案例


收藏

下载
Japan tsutsumino house
设计方:fuse-atelier
位置:日本
分类:居住建筑
内容:
设计方案
建筑设计负责人:shigeru fuse
结构工程师:ysutaka konishi
合作方:武藏野艺术大学
承包人:nagano koumuten
图片:37张
摄影师:shigeru fuse
这是由fuse-atelier设计的tsutsumino住宅,由混凝土建筑体快组成,位于日本千叶县野田县。建筑工两层高,能让住户饱览周边自然景观。该住宅为一对年轻夫妇所住。位于建筑转角处的混凝土体块设有朝向街道的巨大玻璃窗口,与周边邻居的正常住宅形式形成对比。在室内,居住区域分别位于不同楼层,而厨房、餐厅和生活区形成一条连续的交通流线。走道蜿蜒而上,连接到屋顶平台,这之间有着6米的高差。
译者: 艾比
esigned by shigeru fuse of fuse-atelier, this two-storey home in the japanese city of noda provides sweeping views of the surrounding natural landscape. completed for a young couple in their thirties, ‘house in tsutsumino’ is located on an residential block adjacent to a large area of parkland.
the building’s angular concrete form contrasts the more orthodox nature of neighboring structures, with a large glazed aperture presented to the passing street. internally, residential areas exist on different levels with the kitchen, dining and living accommodation connected via a continuous circulation route. the winding pathway proceeds upwards, before becoming a roof terrace elevated at a total height of six meters.
日本tsutsumino住宅外部实景图
日本tsutsumino住宅外部屋顶实景图
日本tsutsumino住宅外部夜景实景图
日本tsutsumino住宅局部实景图
日本tsutsumino住宅内部实景图
日本tsutsumino住宅内部局部实景图
日本tsutsumino住宅夜景实景图
日本tsutsumino
住宅平面图
日本tsutsumino住宅平面图
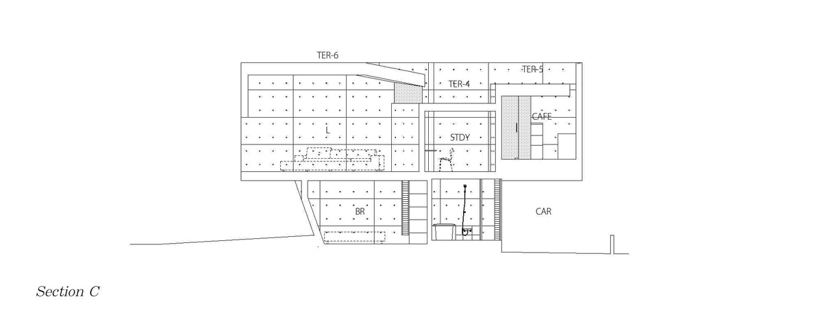
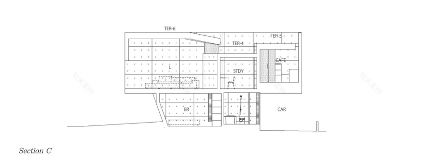
日本tsutsumino住宅剖面图
日本tsutsumino住宅立面图
客服
消息
收藏
下载
最近







































