查看完整案例

收藏

下载
Belgium Single-family homes
位置:比利时 布鲁塞尔
分类:居住建筑
内容:实景照片
图片:17张
这座布鲁塞尔北部的独立家庭住宅,坐落在一块由于其不规则的形状,导致了其很长一段时间仍未售出。这所房子因为基本形状是这样的,基本就靠着其后天的设计抓到了客户的心。外部和内部墙面采用了相同的材料,采用浇筑混凝土,创建了建筑的整体体积。房子的内部结构试图遵循类似的设计,达到内外的一致性。穿孔的外墙布阵取决于其都方位和隐私保护。街边的位置保持完全保持了封闭的结构,可通起居室、生活区域和浴室。在楼上,屋顶上可以清楚的看到街道的全貌。房子的背后包含了所有的生活领域及一个开放的花园。在内部装饰方面,设计者通过添加天然材料和微妙的颜色搭配以和灰色的混凝土墙产生鲜明对比。
比利时独立家庭住宅外部实景图
比利时独立家庭住宅内部实景图
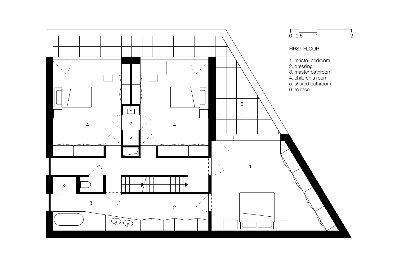
比利时独立家庭
住宅平面图
比利时独立家庭住宅平面图
比利时独立家庭住宅剖面图
客服
消息
收藏
下载
最近



















