查看完整案例


收藏

下载
项目昆明·云路中心
项目面积:180平米
项目风格:现代混搭
设计师:张新海
项目经理:陈远明
客户经理:杨宗梅
业主需求
◆喜欢北欧风格简洁自然,也喜欢现代风格中的木质感觉;喜欢灰色调,又不希望空间太冷;
◆原本厨房空间不大,想要做成开放式,但是又纠结油烟问题;
◆餐厅里需要摆放圆桌;
◆需要有设备间,有独立的生活阳台;
◆儿童房需要有足够活动空间;
功能改造
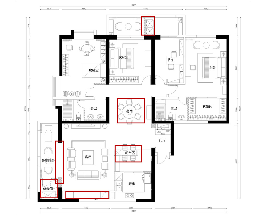
1:原有厨房进行打拆重新做改造,中西厨分开。
2:原房有三个卫生间,功能多余,打拆后把餐厅的空间扩大,满足摆放圆桌。
3:利用客厅和阳台的承重结构,隔出空间作为设备间,放空调的外挂机和空气能热水器。
4:把原本书房和次卧室外的阳台分割成两个空间,书房外的作为生活阳台,避免了晾衣在公共区域影响美观,另一边拓展了次卧室空间。
5:公共卫生间干湿分开,功能细分,让空间利用最大化。
打拆原有厨房后,客厅空间变得比较长,沙发后面通过设计柜体做成一个沙发的背景,可以起到装饰效果,也满足了业主储物功能的需要。▼
整体风格以不同程度的咖色和灰色为主要色调,深咖的电视背景软包和皮质沙发突显质感,色彩跳跃的抱枕调节了沙发的刻板印象;落地灯做为补充光源,造型简单时尚。▼
喜欢中厨也喜欢西厨,所以开放式和封闭式结合使用,封闭的中厨解决了油烟问题,开放式的西厨位置也像是个吧台,没有阻隔视线,与整体空间的融合极好,不会显得零星破碎。▼
糖果釉面的石材砖在厨房到餐厅的整个墙面的运用,空间里特别的色调和厨房的木质形成大色块的对比,餐厅顶面是线条硬朗的多边形顶面,搭配一样线条感十足的餐桌椅,空间简洁不失大方。▼
书房大面积采用沉稳的深色调,跳跃的白色来搭配时尚不刻板。▼
主、次卫生间都做了干湿分区,次卫生间把洗手台盆移出来,避免多人使用的时候不方便。▼
整体空间说明:
室内空间开阔,在做方案设计时,没有特意去做分割,也没有做太复杂的造型,整个方案意在营造一个简洁大方,色调分明但是和谐的一个空间,尽量把空间感体现出来,简约而不简单;体现了业主的独有的品味,时尚简约的生活方式。
客服
消息
收藏
下载
最近























