查看完整案例


收藏

下载
constructs concrete jyoushin house
设计方:noriyoshi morimura architects & associates
位置:日本
分类:居住建筑
内容:实景照片
图片:20张
摄影师:noriyoshi morimura architects & associates
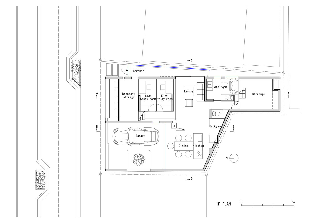
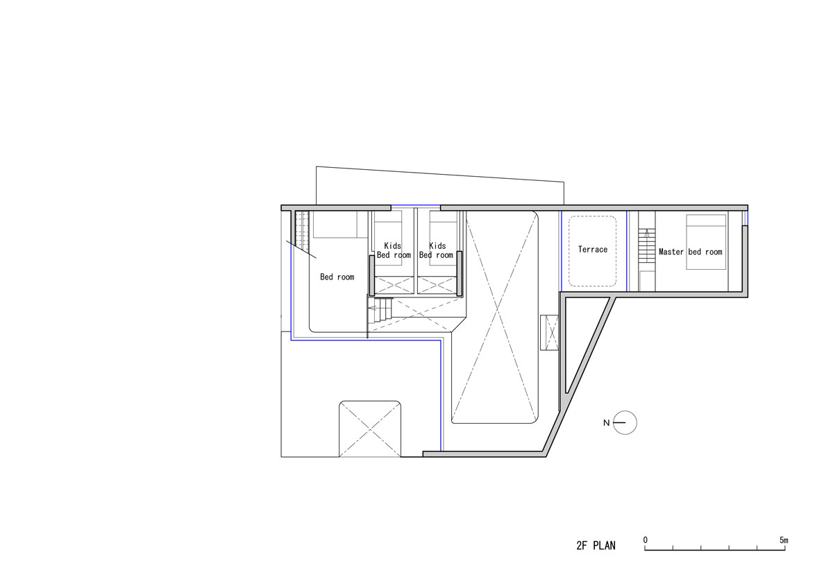
这是由日本事务所noriyoshi morimura architects and associates设计的jyoushin住宅。场地位于一个小山上,可以俯瞰整座城市。
建筑师将楼板设计成一条连续而流动的线,它在贯穿整个结构的同时将各层楼板连接起来,同时还作为结构体支撑建筑体量。这个弯曲而强有力的混凝土结构将整个住宅切断,同时又在不经意间划分出许多开放区域。带状的结构体延伸了原有玻璃窗的边界,同时形成了开放的户外平台。
住宅室内选用了中性的石材和混凝土,这些材料从一间房中轻松自由的过渡到另一间。乳白色的瓷砖包裹了每一个墙面,这种温和却醒目的材料创造了一种优雅飘渺的室内氛围。住宅中的每一层都被厚重的深色实木体量贯穿,它们作为私密空间和储藏空间使用,仅向住户开放。
译者: 艾比
noriyoshi morimura architects & associates has finalized the construction of ‘jyoushin house’ in japan. the concrete structure carefully utilizes glazing to offer a balance between the provision of natural light and the privacy required of a residential dwelling. located in a suburban area, the four bedroom property serves as a comfortable and secure family home.
a secluded entrance invites inhabitants in from the street, bringing them inside the protected environment. primary living accommodation is found at the ground floor, alongside kitchen and dining facilities, while sleeping quarters are situated at the second level of the property. large glazing at the upper storey overlooks the neighborhood and brings light into the sheltered abode. internally, the exposed concrete runs throughout the design and is complimented by the use of dark timbers and other natural materials.
日本jyoushin住宅内部局部图
日本jyoushin住宅内部细节图
日本jyoushin住宅内部楼梯图
日本jyoushin住宅
日本jyoushin住宅图解
客服
消息
收藏
下载
最近






















