查看完整案例


收藏

下载
Australia's residential
设计方:Bligh Graham Architects
位置:澳大利亚
分类:居住建筑
内容:实景照片
图片:30张
摄影师:Scott Burrows
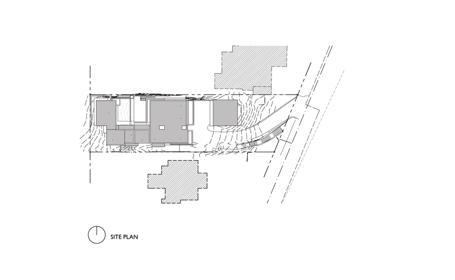
这栋住宅坐落在边缘场址上。住宅的场址很陡峭,场址的后部是灌木自然保护区和大的城市,场址的前部则是海湾风景。住宅被同时设想成了悬崖、堡垒、洞穴和树屋的形式。住宅强大的设计理念是同时提供“风景和休息寓所”,我们在住宅中部署了很多密封的空间,以平衡广阔的视野和地平线的主宰之间的关系。这些密封的空间包括了一个双高的图书室、一个艺术工作室和一个“洞穴”。艺术工作室与后部的灌木地直接连接在一起,“洞穴”俯瞰着游泳池,它还可以穿过起居室看见城市的轮廓线。
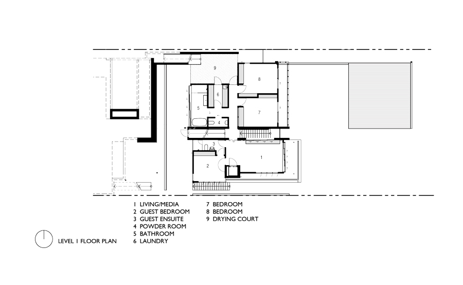
沿着贯穿住宅的中央楼梯向上走,可以看见一个中央庭院,庭院坐落在主要楼层平面的中心地区,庭院将住宅的公共房间聚集在了一起,聚集的方式就像是山顶修道院和堡垒的房间结构一样。从实用的层面上讲,庭院带来了北部的阳光,创造了一小块土地,还为宽阔设计的单独房间提供了完美的被动式通风。
译者:蝈蝈
This house is very much about being on the edge. Situated on an extremely steep site with bush reserve behind and expansive city and bay views to the front the house is envisaged as being simultaneously cliff/citadel堡垒/cave/tree house.The powerful idea of providing both ‘prospect and retreat’ is pursued with numerous hermetic spaces deployed to balance the huge views and dominance of the horizon. These include a double height book lined library, an art studio that engages directly with the bushland at the rear and a ‘grotto’ or cave that overlooks the pool and through living room beyond to the city skyline.
A central courtyard on the main level platform is discovered after the ascent of the central stair that cuts through the house. The courtyard is at the heart of the main level platform and gathers the houses’ public rooms in way that echoes hilltop monasteries or citadels. On a pragmatic level the courtyard acts to bring in northern light, make a piece of level ground and enable single room wide planning for excellent passive ventilation.
澳大利亚住宅外部实景图
澳大利亚住宅外部夜景实景图
澳大利亚住宅内部实景图
澳大利亚住宅之局部实景图
澳大利亚住宅-16
澳大利亚住宅之夜景实景图
澳大利亚
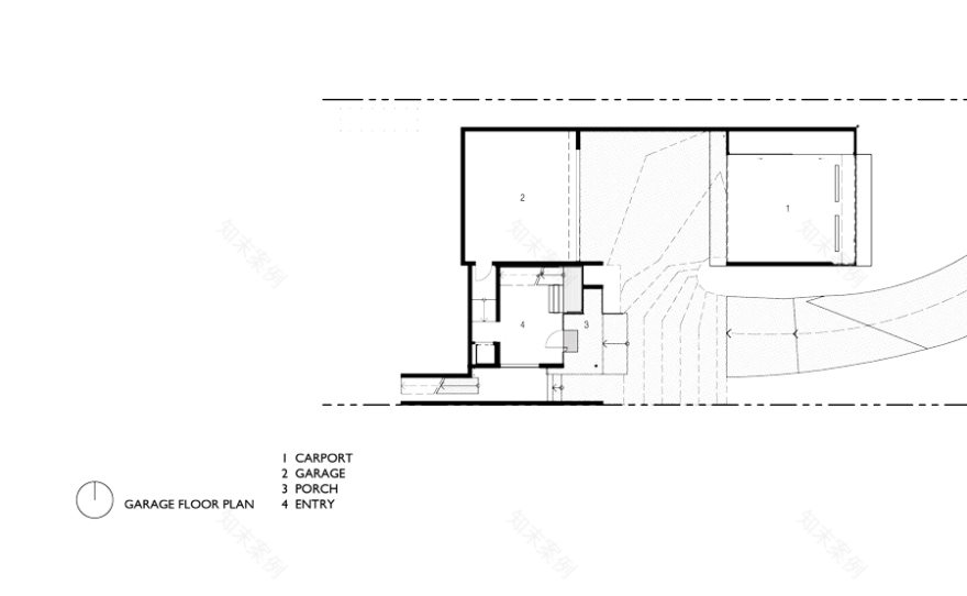
住宅平面图
澳大利亚住宅平面图
澳大利亚住宅立面图
澳大利亚住宅剖面图
客服
消息
收藏
下载
最近





























































