查看完整案例


收藏

下载
归来游子“此心安处是吾乡”,来往过客“未晓前路翘首以待”,每一段记忆都在心间生根。
设计与灵感的启示缘起于艺术家偶然播撒的种子,她将这些随机的种子生根发芽的碎片画面记录了下来,结合她在异乡生活十几年的记忆与意识碎片混合萃取出大型艺术装置 ROOTS 的概念,将“归来游子”与“来往过客”来到异乡的状态与心境用建构的方式传达。
来到异乡的记忆与故事如同大自然中植物的生长,ROOTS 以自然为灵感的播种、生根、发芽、攀爬、开花到结果的一系列过程隐喻建构,短暂却璀璨的邂逅如光一般闪烁,厚重与轻盈在不断变化的时间、光线中仿佛亘古不变。
设计中将线性、交织、竖向、管状、向上、轻盈、立体等关键词提取,将播种、生根、发芽、攀爬、开花、蔓延、纠缠等几何抽象化建构。观者在森林里放松自我,把情感带入到一种非物质状态中,体会着它带来的感受与广泛的情绪,与之带来的体验和力量,想象自我与世界、和自然的关系,静水深流。
▼装置外观,external view of the installation©木月建筑设计事务所
Returning wanderers “this place is my hometown at peace”, and passing visitors “wait for the road before dawn”, and every memory takes root in their hearts. The inspiration of ROOTS design and inspiration originated from the seeds accidentally sown by artist Mao Ying. She recorded the fragments of these random seeds rooting and germinating, and combined her memories of living in a foreign country for more than ten years and the fragments of consciousness to extract a large-scale art installation. The concept of ROOTS conveys the state and mood of “returning travelers” and “travelers” in a foreign land in a constructive way. The memories and stories of coming to a foreign land are like the growth of plants in nature. ROOTS uses nature as inspiration to construct a series of metaphors for the process of planting, rooting, sprouting, climbing, flowering and fruiting. The short but brilliant encounters flicker like light. The weight and lightness seem eternal in the ever-changing time and light. In the design, keywords such as linear, interweaving, vertical, tubular, upward, light, and three-dimensional are extracted, and the geometrical abstract construction of planting, rooting, sprouting, climbing, flowering, spreading, and entanglement is constructed. The viewer relaxes himself in the forest, brings emotions into a non-material state, experiences the feelings and a wide range of emotions it brings, the experience and power it brings, and imagines the relationship between self and the world and nature , Still water flows deep.
▼交织的管状物 interweaving tube-like objects©木月建筑设计事务所
▼细部,details©刘瑞特
ROOTS 是木月建筑设计事务所 (MOON Architects) 的一次艺术体验的尝试,试图将观者从纯粹的观察者,变成真实的体验者,见证如何化司空见惯为别出心裁,化日常之平常为神奇。木月建筑设计事务所通过对 3D 打印材料的广泛研究,为实现可循环、重量轻、强度高、高透光率、外表光泽度高、亦有耐腐蚀性,抗紫外线老化等性能,最后确定选用了 PETG 颗粒,通过 3D 打印制成 ROOTS。
ROOTS is an art experience attempt by MOON Architects, trying to transform the viewer from a pure observer to a real experiencer, witnessing how to transform commonplace into ingenuity, and transform everyday ordinary behavior. Through extensive research on 3D printing materials, MOON Architects has finally determined in order to achieve recyclability, light weight, high strength, high light transmittance, high surface gloss, corrosion resistance, and UV aging resistance. PETG pellets were selected, and ROOTS was made by 3D printing.
▼3D 打印和施工过程,3D printing and construction process©木月建筑设计事务所
ROOTS 是‘设计上海(Design Shanghai)2021’展览的受邀作品,同时也受邀在上海市崇明岛的‘一吨森林’进行展出。
ROOTS is the invited work of the ‘Design Shanghai 2021’ exhibition and was also invited to exhibit at the ‘One Ton of Forest’ on Chongming Island in Shanghai.
▼森林中的装置,installation in the forest ©陆云波
装置与树枝 installation and the branches©陆云波
ROOTS 在森林里展出时,毛颖描述着人与自然之间的无尽的纠缠与连接的状态:“我们是感性的存在,我相信艺术在能够触涉我们的感官时,它才具有超越性。当观者看到了 ROOTS 在展出这一幕之时,当被动的客体转变为作品和场景的一部分的时候,我表达了什么变得不再重要,重要的是观者感受到了什么,这个场景本身才拥有了意义”。
When ROOTS was exhibited in the forest, the artist Mao Ying described the endless entanglement and connection between man and nature: “We are emotional beings. I believe that art has transcendence only when it can touch our senses. When the participants saw the scene of ROOTS on display, when the passive object transformed into a part of the work and the scene, what I expressed became no longer important, what was important was what the viewer felt, this the scene itself has meaning.”
夜景与细部,night view and details©陆云波
‘CROSSOVER’被安置在城市中心,设计师 Florian 和赵燕妮希望它是一个在喧闹街头矗立而能隔绝日常嘈杂的空间。
The CROSSOVER installation is situated in the heart of the city. The designers, Florian Rochereau and Yanni Zhao, imagined it as a special space, isolated from the noise daily life.
▼视频,video
CROSSOVER 的外观呈现以简单的 X 线条为基础,装置主体为哑光黑色,黑色本身不发出或反射任何光线,包容而有安全感。
CROSSOVER’s design is based on simple, X-line lines, with a matte black finish on the body of the piece. Black, which doesn’t emit or reflect light, and makes the space inclusive and secure.
装置鸟瞰,aerial view of the installation ©CE&Bespoke,RAW VISION Studio
▼黑色的通道,black passage©CE&Bespoke,RAW VISION Studio
装置内部共设置 6 对感应器,由参观者的移动即时触发光影效果的变幻,底部平台内置音箱,音乐与装置光影可同频律动。
A total of 6 pairs of sensors are set up inside the installation, these can trigger a change of light and shadow effect immediately in response to the movement of the visitors. A built-in speaker underneath the platform, is coordinated such that music, light and shadow can respond at the same frequency.
变幻的灯光,changing illumination©CE&Bespoke,RAW VISION Studio
参观者在其中,可行、可立、可观,鼓励参观者把知觉带回自身,激发参观者个人的感官感受。装置灯光的层叠效果,映射了虚拟与真实世界的各种维度。行进参观带来即时的感官切换,映射了疫情时代至今的生活方式——真实与虚拟的不断切换。四重互动的层次:参观者与装置本身的互动,参观者与声光装置的互动,参观者之间交错通行的互动。装置与周围环境的互动。
Visitors can both see and be seen within the installation. They are encouraged to bring an awareness of themselves as the installation aims to inspire the visitor’s personal sensory experience. The cascading effect of the lights in the CROSSOVER reflects the various dimensions of the virtual world. The experience provides an instant sensory switch, reflecting our way of life in the current post-epidemic era-the constant switching between the real and the virtual.There are four levels of interactions in the piece: the interaction between visitors and the installation itself, the interaction between visitors and the acoustic/optic device, the interlacing interaction between visitors themselves, and finally the interaction of the installation with its surroundings.
人与装置的互动 interactions between people and the installation©CE&Bespoke,RAW VISION Studio
随着技术的革新和升级,更环保的建筑材料将成为必然趋势。CROSSOVER 使用的 UHPC 代表了混凝土材料的革新,有良好的耐久性,是一种绿色低碳的环保材料。提前预制现场拼装的制作与搭建方式,沿袭了装配式建筑的大趋势。装置本身可重复拼装,再利用,易于在任何场景下重现。
Thanks to innovation and the constant improvement of technology, more environmentally friendly building materials will become increasingly important. The Crossover UHPC represents an innovation in concrete, a greener and lower-carbon material with good durability and strength. The prefabricated production and construction method follows the general trend of assembly building. The unit itself can be repeatedly assembled and reused for easy reproduction in any location.
▼细部,details©CE&Bespoke,RAW VISION Studio
基于五个关键词的研究。国风:中国的文字始于黄河中油的“仰韶文化时期”,书法艺术也从甲骨文开始,具有 200 多年的沿袭和发展。书法是无言的诗、无形的舞、无图的画、无声的乐。 术:书法再书写的同城中通过“摆动”、“平动”、“提按”、“绞转”等多种笔法形成了书法书写的立体空间,书法的成果是二维的,但是书法的运动过程是三维的。 新:基于书法的形成逻辑,可以创造出无数的形态和样式,设计讲“上海”这两个字,通过书写的逻辑,融入到这个艺术品当中。 动:可坐、可站、可动、可躺、可玩,可多角度观察、可多方位互动 材料:通过现代材料人造亚克力,将书写表面的纹理反映到设计当中。
Chinoiserie: Chinese writing began in the Yangshao Culture Period of Zhongyou on the Yellow River, and calligraphy art also started from oracle bone inscriptions, which has been inherited and developed for more than 200 years.
Calligraphy is a silent poem, an invisible dance, a picture without a picture, and a silent music.
Art: The three-dimensional space of calligraphy writing is formed by “swinging”, “translational”, “lifting and pressing” and “twisting” in the same city of calligraphy writing. The result of calligraphy is two-dimensional, but the movement process of calligraphy is three-dimensional.
Innovation: Based on the formation logic of calligraphy, countless shapes and styles can be created. The design focuses on the word “Shanghai”, which is integrated into this artwork through the logic of writing.
Interaction: it can sit, stand, move, lie down, play, observe from multiple angles and interact in multiple directions
Material: Artificial acrylic with modern materials reflects the texture of the writing surface into the design.
装置外观,external view of the installation ©郭靖、林立峰
▼流动的体量和细部,flowing strokes and details©郭靖、林立峰
基于书法生成的研究:书法在书写过程中通过“摆动”、“平动”、“提按”、“绞转”四种笔法形成了书法的立体空间。书法的成果是二维的,但是书法的运动过程是三维的。(书法研究 1)书法“路径、线条”与毛笔运动“截面”形成了“立体书法”。
In the process of writing, calligraphy forms the three-dimensional space of calligraphy through four methods: “swing”, “flat motion”, “lifting and pressing” and “twisting and rotating. The results of calligraphy are two-dimensional, but the movement process of calligraphy is three-dimensional. “Path, line” of calligraphy and “cross section” of brush pen movement form “three-dimensional calligraphy”程,design process©LIN architecture
基于座椅的需求:城市中的公共座椅的需求有静态和动态两种,人们能够坐着、躺着、站着,也能边走边玩,还可以从多角度观察,增加了更多互动的可能性。
There are two kinds of demands for public seats in the city: static and dynamic. People can sit, lie and stand, play while walking, and observe from multiple angles, increasing the possibility of interaction.
▼模型,多种互动方式,model, various ways of interaction©LIN architecture
一件雕塑一尊艺术品一个独具中国风的艺术形态与气韵的公共媒介用“上海”两个字通过创意的视角将空间、艺术、书法做结合,把游客们和美丽的滨江联系在一起
A seat A sculpture A work of art A public medium with unique Chinese artistic form and charm. It takes calligraphy as the core of its culture, Interactive seat as the carrier. Inheriting the quintessence of Chinese culture and innovating art. With a creative perspective, space, art and calligraphy are combined together.
夜景,night view©郭靖、林立峰
▼灯带细部,details of the lighting belt©郭靖、林立峰
图纸,drawings©LIN architecture
那些片刻的牵手拥抱是否曾带来瞬间的悸动,那些血涌心脏的瞬间是否曾久久难以平复,生活孤独枯燥,他人带来的情感牵绊使人甘之如饴,正所谓“我的心思不为谁停留,而心总要为谁而跳动。在设计上海新天地设计节中,装置“瞬间”在新天地北里展出,展览共持续 16 天。
Whether those moments of holding hands and hugging bring momentary heart-throb? And whether you are immersed in those moments that take your breath away for a long time? life is lonely and boring, but the emotional bondage with others makes us happy, as the saying goes, “Je n’ai jamais pour qui reste, et le coeur qui bat toujours.” In the Design Shanghai-Xintiandi Design Festival, the device, a Moment Like This, was exhibited in Xintiandi, and the event lasted 16 days.
装置外观 external view of the installation ©上:Rac Studio,下:ELLEDECO 家居廊
”瞬间”装置意在用灯光的闪烁模拟人体心跳呼吸的节律,平静时一呼一吸平缓深远,当游人靠近时通过交互设备捕捉人群中牵手、拥抱等情感流露的瞬间,将有情人或亲人朋友间急流上涌的内心活动呈现为急促变化的灯光效果,色彩、节奏随人与人间动作的亲密程度变化。人们常说爱需要表达,希望通过这一互动装置,将内敛含蓄的情感用艺术装置呈现出多彩的效果,让人们得以拍照记录这或热情奔放或切切情深的生命一瞬,成为新天地夜间合影打卡新地标。
The device, A Moment Like This, is intended to simulate the rhythm of human heartbeat and breathing with the flickering of lights. When it is in calm, the breathe is also smooth and profound. When visitors approach, interactive devices will capture the moments of emotions such as holding hands and hugs in the crowd, and then it will present the inner activities that surge up rapidly between friends and lovers as lighting effects, colors and rhythms changing with the intimacy between people. People often say that love needs to be expressed. It is hoped that through this interactive installation, the introverted and reserved emotions of human can be presented with colorful effects in artistic installations, so that people can take pictures and record this passionate moment of life. It will become a new landmark of the New World at night for photography.
▼设计过程,design process©LOOK
▼设计分析,design analysis©LOOK
▼不同的交互手势,different gestures for interaction©LOOK
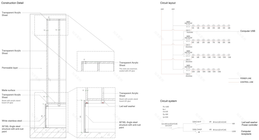
整个装置由亚克力板、LED 灯光控制系统和 Kinect 影像捕捉系统构成。每一片亚克力板下都置入了 LED 灯带。当有人在装置前做出几个系统预先设置好的动作后,LED 灯带会有相应的灯光效果变化。
The device is composed of acrylic board, LED lighting control system and Kinect image capture system. LED strips are installed under each acrylic board. When people make some pre-set gestures in front of the device, the LED light will have a corresponding lighting effect change.
▼人与装置的互动,interaction between people and the installation ©ELLEDECO 家居廊
▼细部,details©左:Rac Studio,右:ELLEDECO 家居廊
▼结构分析,structure analysis©LOOK
后疫情时代,我们力图设计一个趣味、灵动而安全的治愈性装置,以期消解疫情带来的紧张气氛。用光与影,色彩与图像激活常态空间,释放场地新价值。
In the post-epidemic era, we try to design an interesting, vivid and safe healing device in order to eliminate the tension caused by the epidemic. Using light and shadow, color and image to activate normal space so that new value of site can be released.
▼视频,video
我们选择具有极优力学性能的壳体结构作为母形,在此基础上,生长出可拆卸、易安装的视锥单元。其灵活的拆装方式确保其可重复拆装,使用于不同空间与场景。
Since a shell structure is equipped with excellent mechanical properties, we choose it as the model. Based on that, a detachable, easily installed view frustum unit is developed. Its flexible disassemble way ensures that it can be repeatedly disassembled and used in different spaces and scenes.
装置外观,external view of the installation ©肖琳
▼壳体结构,shell structure©洛嵐喵
二向色膜与不锈钢构成的连续视锥细胞,使得整个装置如同沉浸式万花筒。亭内光影变幻,使人置身于色彩的海洋,倍感愉悦与放松。在这里,通过投影与反射,街道、行人、建筑与城市在这里交融叠错。
The consecutive view frustum cells constructed by dual vector foil and stainless steel make the whole device look like an immersive kaleidoscope. The changes of light and shadow in the pavilion immerse people in the ocean of colors and let them feel delighted and relaxed. Here, the avenues, pedestrians, buildings and cities overlaps and mixes together through projection and reflection.
▼万花筒般的内部空间 inner space like a kaleidoscope©肖琳
当行人进入景亭,亭内景象则又多了一个干涉源。你既是观察者,也是干预者。此刻,身体和思绪均会被锚定在穹顶之下。人与人、人与亭、时空与光影、现实与幻觉也将在精致的环境之中相遇。
When pedestrians enter the pavilion, another source of interference occurs in the scene. You are not only an observer but also an intervenor. At this moment, your body and mind will both be anchored under the dome. People and people, people and pavilions, spacetime and light and shadow, reality and illusion will also meet in a delicate environment.
夜景,night view©洛嵐喵
▼人与环境通过装置形成互动,interaction between people and the environment through the installation©左:郑慧,右:洛嵐喵
▼平面图和立面图,plan and elevation
「数字环亭」作为是数字艺术家、Spazio Z Design Studio 创始人赵子晗的一个创新性的作品。装置伫立在上海新天地老石库门建筑之前,树枝般向上生长的结构,逐渐围合成跳脱于都市风貌的有机空间。装置的白色材料与石库门深灰的主色调形成强烈对比,吸引着过往的行人到其中一探究竟。
Digital circular pavilion is one of the creative works of Zhao Zihan, a digital artist and the founder of Spazio Z Design Studio. It is located in the front of Shanghai Shikumen with its branchlike structure which seems to grow upward and gradually form an organic space far from the metropolitan style. Its white material stands in vivid contrast against the dark grey Shikumen, which attracts the pedestrians to go for a look in it.
▼视频,video
在设计时,赵子晗带着一个问题:在城市当中,如何将拥有自主意识且毫无关联的人群联系起来?人是无序,无法预估的,作为设计者,所有的预先筹划都是假定性的,如何实现人在街区的探索、社交及自我需求的满足,作为空间装置,其结果每一次都是偶发的。由此,这样的装置更多的是作为一种媒介,承载着多种空间可能性。
▼装置外观 external view of the installation ©匠铸三维科技有限公司
「数字环亭」是个相对通透的结构,但依旧拥有隔离的作用。环形——一个天然的分隔图形,外环——开放,可供来者休憩,内环——半闭合,为相对私密的谈话提供可能。在概念初期,赵子晗通过水墨实验,绘制了粗细、深浅、疏密不一的线条,折射出人类活动的随机性和无序性,而后经由数字化技术模拟成拓扑形态。对于这件作品,赵子晗更倾向于称之为“艺术景观产品”,因其形态的艺术表现远超于功能性。
Digital circular pavilion has a relatively hollowed-out structure but still has a function of segregation. Circular is a natural shape for segregating: The outside is open for pedestrians to have a rest, and the inside is semi-closed for private talk. Initially, Zhao Zihan drew lines of different thicknesses, shades and densities according to ink and wash experiment, which reflected the randomness and freedom of human activities and had been simulated as a topology by digitalization. As for this work, Zhao Zihan prefers to call it “a product of art landscape” because it is more artistic than functional.
▼外环和内环,the outside and the inside©匠铸三维科技有限公司
Spazio Z Design Studio 的这件作品实现采用了 3D 数字技术,而这件近似小型单体独立建筑的产品,可以算是中国首座 FDM 设备模块化方式制作的整体 3D 打印建筑。草图到参数化模型,赵子晗和团队成员对单模块的物理受力、整体承重、结构曲率等因素都进行了细致深入的分析,因为 Spazio Z 拥有自己的 3D 打印工厂,可以对生产的打印效率、拼装工艺、成本控制等方面进行充分推演实验,甚至预生产了超过三平方米的墙面来进行研究。最终,Spazio Z 以低于同类型建筑的成本完成了作品。
「数字环亭」的主体为 Polymaker 的 PLA 材料,通过 100 台大型 3D 打印机联合作业,利用一个月时间将各模块分别打印,再拼装成 5 个大模块组、运至现场通过铝合金构件完成最终的组装固定。而在展览结束,也可拆卸回收。
It is a small single building designed with 3D digital technology and can be regarded as the first 3D printing architecture made by FDM device in a modular approach in China. From drafts to parametric models, Zhao Zihan and his team made a detailed and in-depth analysis on the physical force, overall load-bearing, structural curvature and other factors of a single module. Spazio Z has their own 3D printing factory, so they can make full experiments on printing effect, assembly process, cost control and so on. They even produced walls of more than three square meters for research. Finally, Spazio Z completed the work at a lower cost than the other same type of buildings.
The main part of the digital circular pavilion is made of PLA from Polymaker, with joint work of 100 large 3D printers within a month. Every single module was printed by each printer and then they were assembled into 5 larger modules, being transported to the site, assembled and fixed there. And when the exhibition ends, it can be disassembled and recycled.
▼3D 打印和安装过程,process of 3D printing and installation©匠铸三维科技有限公司
赵子晗在「数字环亭」中植入了自己的期许:创造一个未来,一个装置或建筑能被数字技术再建构的未来。“也许只是一个起点,当有一天它普通到无法成为未来、不被稀奇时,说明它已经普及甚广。”而到那时,赵子晗也将开启新一个起点的探索,而验证建筑与人类关系互相影响的实验、永不落幕。
Zhao Zihan has placed his hopes on the digital circular pavilion: To create a future, a future where installations or architectures can be reconstructed by digital technology. He said, “Maybe it is just a beginning, but one day when it is too common to be call the future and not surprising any longer, it has been popular enough.” And at that time, Zhao Zihan will also start with a new point to prove that the interaction between architecture and human will never come to an end.
▼阳光照射下的装置 installation under the sunlight©匠铸三维科技有限公司
合作方:UHPC:义诚巨新建筑科技&华新新型建筑材料灯光设计:RDI 瑞国际照明设计平台&施工:美巧幕墙
品牌:UHPC:拉法基 Ductal®灯带:华格照明密封胶:西卡(中国)
Partners: UHPC: RIGHT SINCERITY& HUAXIN LIGHTING DESIGN: RDESIGN INTERNATIONAL LIGHTING PLATFORM&CONSTRUCTION: MAC JOY
Products: UHPC: LafargeHolcim Ductal® Light strip: WAC Lighting Sealant: Sika (China)
▼项目更多图片
客服
消息
收藏
下载
最近



























































































