查看完整案例


收藏

下载
Mexico Sol 25 residential
设计方:Proyecto Cafeína
位置:墨西哥
分类:居住建筑
内容:实景照片
合作人:Leonardo Neve, Diego Vilatela, Jesús Quintana, Olivia Gil, Carolina Ojeda, Ángel Valerio, Andrés Mir
图片:20张
摄影师:Patrick López Jaimes
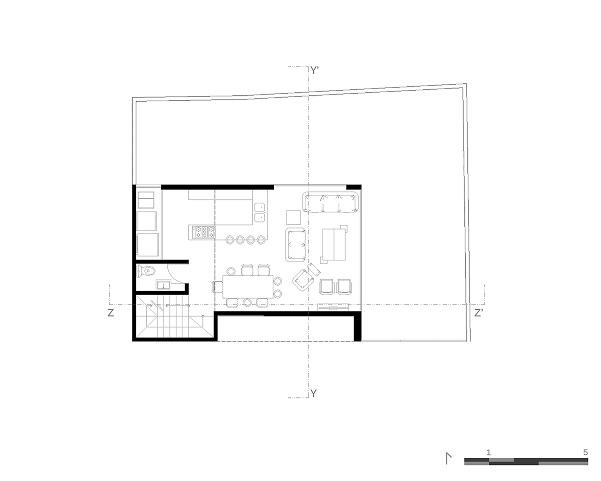
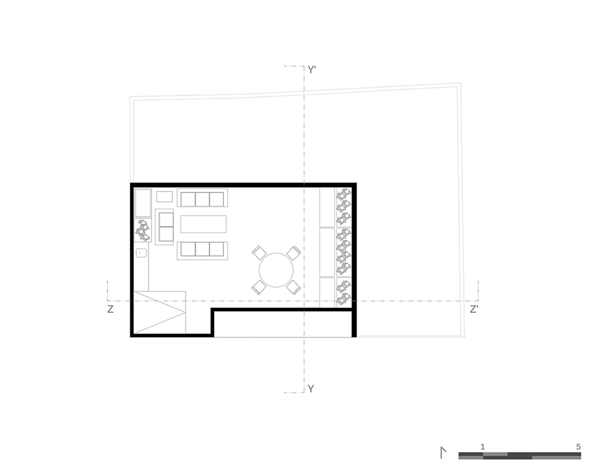
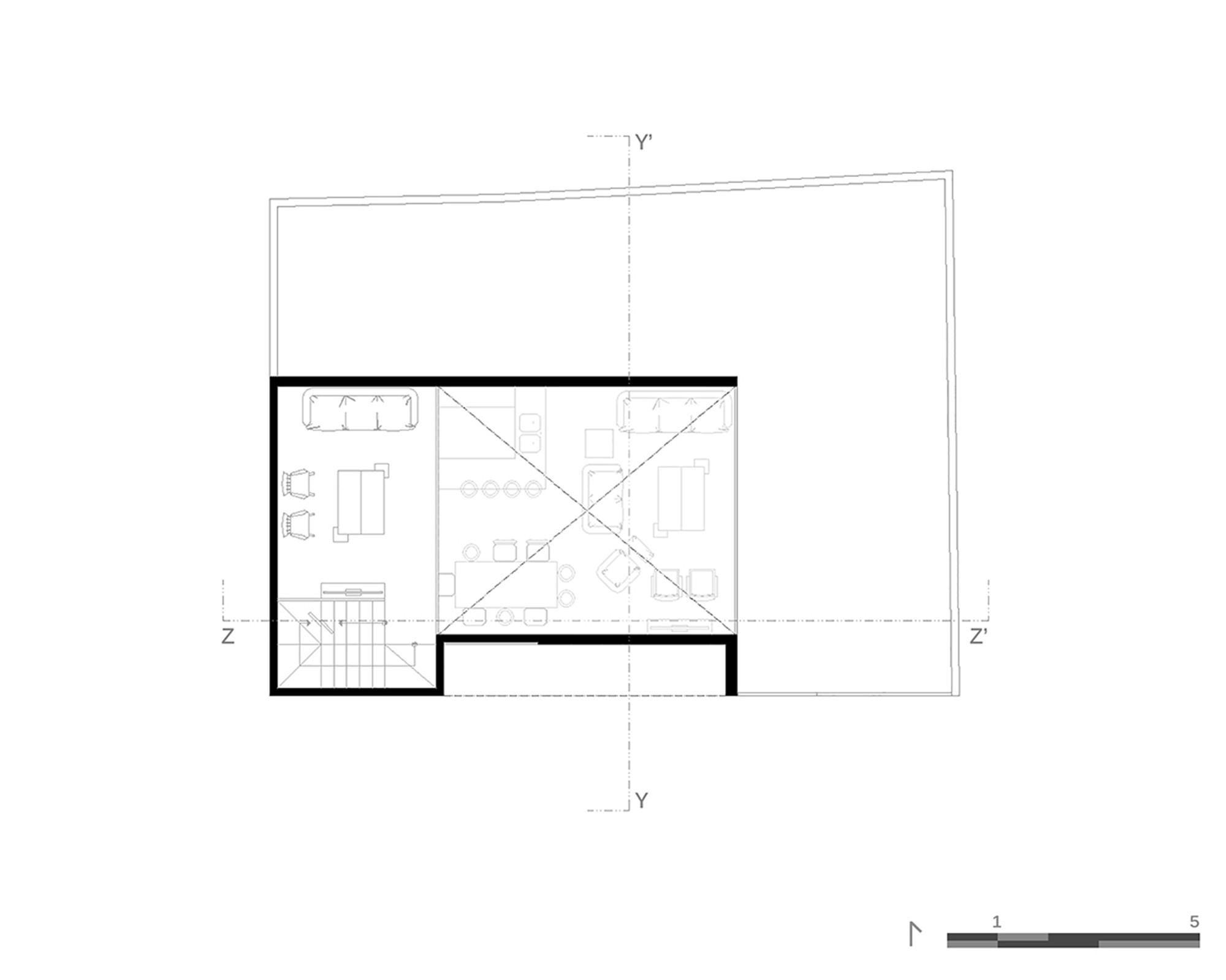
这是由Proyecto Cafeína设计的Sol 25住宅,位于墨西哥普埃布拉州的乔鲁拉。这座独户住宅位于郊区一个居住区,毗邻Cerro Zapotecas自然保护区。这座住宅充满创意,除了使住宅面积最大化,还在视觉上与自然融为一体。建筑首层设有两间卧室、一个花园和大厅,二层为主卧室和厨房,以开放式布局为主,双倍层高的设计可以尽享绿色视野。三层为复式阁楼的工作室。为了利用屋顶空间,建筑师设计了一个屋顶花园,让人享受室外环境,欣赏周边风景。
译者: 艾比
From the architect. Sol 25 is a single family house in San Pedro Cholula Puebla, Mexico. It is located in a residential subdivision on the outskirts of the city, adjacent to Cerro Zapotecas, a protected nature reserve. It emerges as a dwelling with the premise of creating spaces that are visually integrated with nature, in addition to maximizing the size of the dwelling.
A distinct architectural layout is generated, as the ground floor houses two bedrooms, a garden and lobby. The first level houses the main bedroom and kitchen, all in an open plan concept with double height, where one can enjoy the view to the green areas. On the second level there is a loft with a studio. To use the roof space, we designed a roof garden where one can enjoy an outdoor environment with interesting views all around.
25 Sol maintains an industrial aesthetic, as a hybrid between a house and a loft, achieving wide spaces with character. The materials used were mostly exposed partitions and glass, which when conjugated create cozy spaces in addition to requiring low maintenance.The interior design was another key point in the project, as it each of the woodwork, fixtures and fittings elements were specially designed. Thus achieving a personalized and unique environment.Sol 25 is a dwelling with an elegant design, where pleasant spaces are created in a unique environment.
墨西哥Sol 25住宅外部夜景实景图
墨西哥Sol 25住宅内部实景图
墨西哥Sol 25住宅内部局部实景图
墨西哥Sol 25住宅内部过道实景图
墨西哥Sol 25住宅内部浴室实景图
墨西哥Sol 25住宅内部细节实景图
墨西哥Sol 25
住宅平面图
墨西哥Sol 25住宅平面图
墨西哥Sol 25住宅立面图
墨西哥Sol 25住宅剖面图
客服
消息
收藏
下载
最近






















