查看完整案例


收藏

下载
Spain venturi and UE to eight houses
设计方:Luis Llopis
位置:西班牙
分类:居住建筑
内容:实景照片
图片:11张
摄影师:Javier Callejas
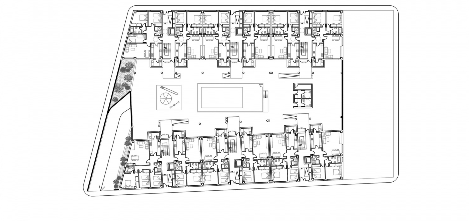
这是由Luis Llopis设计的UE-8丘里亚纳住宅。这个项目特别在于在遵守建筑法规的条件下,达到户型最优化、而又无损于欣赏场地周边风景的视线。
这个设计改善了场地单调的城市景观,将两排线性排列的住房面对面不知,从而释放它们中间的公共空间,而办公室建筑则是作为游乐区的背景。通过街区布局、视线交汇、对城市开放等方式形成城市生活的渗透性。项目采用了三种策略,分别是两层高的地下停车库、水平对称的顶楼设计以及建筑不同颜色的处理。
译者: 艾比
In an urban context in which rows of terraced houses or blocks with minimal yards predominate, the uniqueness of this project lies in how to interpret the building regulations, in order to achieve an optimal typology, without losing sight of the maximum optimization of conditions of the plot.
The final design makes obvious immediate responses that characterize the urban landscape of the area, which is undifferentiated and monotonous, preferring to concentrate the volume in two linear housing blocks facing each other, releasing a common space between them, which is channeled into the third office building that serves as backdrop to the play area. This produces urban permeability, by fragmenting the block and allowing crosed views between different blocks, and from the city towards them.
Based on the above considerations, the project is structured around three formal gestures:
The ground level of the common garage in the basement determines the ground floor slabs. The same level is kept on the first floor, organizing a two-storey basement enhancing the horizontality of the overall composition.
The other significant gesture that characterizes the project is the symmetry of volumes on the attic and garret levels. The final design is the result of pushing the building regulations in order to achieve the planned buildable area for the site, designing the attic floor with a setback of three meters into the site, to compensate for the setback to the facade.
The third compositional argument is the color treatment of the different volumes, using exposed brick, waterproofed in different colors for each floor, in housing and offices. In both cases the volumes are contained by the exposed structural grid, which plays the role of a mesh, enhanced with a significant color value.
西班牙丘里亚纳UE-8住宅近处外观图
西班牙丘里亚纳UE-8住宅外部局部图
西班牙丘里亚纳UE-8住宅外部墙体图
西班牙丘里亚纳UE-8住宅
西班牙丘里亚纳UE-8住宅立面图
西班牙丘里亚纳UE-8住宅剖面图
西班牙丘里亚纳UE-8
住宅平面图
西班牙丘里亚纳UE-8住宅平面图
客服
消息
收藏
下载
最近













