查看完整案例


收藏

下载
sheltered A2 house
设计方:masahiko sato of architect show
位置:日本
分类:居住建筑
内容:实景照片
图片:29张
摄影师:toshihisa ishii
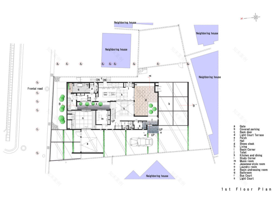
这是由masahiko sato of architect show设计的A2 住宅,该项目旨在为居民提供一个舒适、可放松的环境。项目位于福冈市,建筑与毗邻街道呈封闭关系,营造一种安全围合的感觉。该住宅外墙为白色粉刷于天然木板搭配。
建筑沿街面不设任何开口,而这个有遮盖的庭院提供了一个开放的区域,小朋友可以在此安全地玩乐。住房外设有公共平台,增强室内外空间的关系。建筑内部采用了条状木板增加细节美感,以及空间的联系感。
译者: 艾比
masahiko sato of japanese practice architect show has completed ‘A2 house (shell house)’ a property which provides a comfortable and relaxed environment for its inhabitants. located in a residential area of fukuoka city, the structure closes itself off from the passing street, fostering feelings of safety and security. externally, the dwelling is clad in a white render which juxtaposes the natural timber grain.
configured to protect and shelter its residents, the façade presented to the street does not feature any openings, while in contrast a sheltered courtyard provides an external area of recreation and congregation where children can play safely. living accommodation opens out onto this terrace, establishing a fluid relationship between internal and external volumes, while internally, bright and open expanses are lined with polished timber creating a series of richly detailed and connected spaces.
日本A2 住宅外观图
日本A2 住宅外部局部图
日本A2 住宅外部细节图
日本A2 住宅内部局部图
日本A2 住宅
日本A2 住宅图解
客服
消息
收藏
下载
最近































