查看完整案例

收藏

下载
Spain Fadura House
位置:西班牙
分类:居住建筑
内容:实景照片
图片:24张
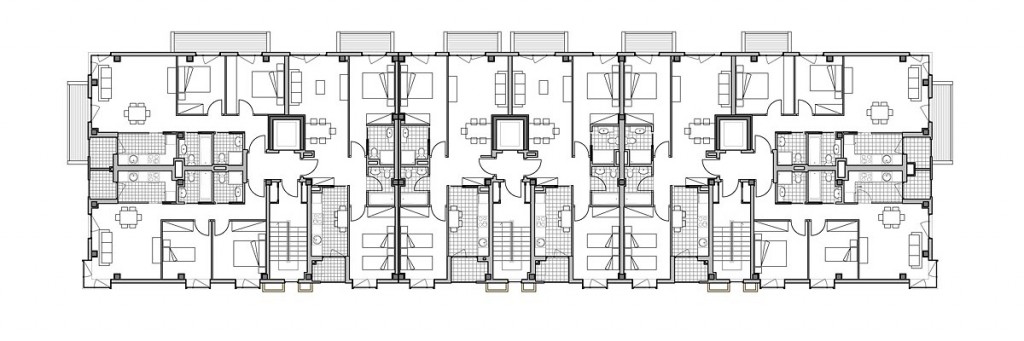
西班牙Fadura住宅是一个独立的建筑,楼高4层,地下2层为停车场,存储室和技术室。紧凑的双取向是住宅的整体配置的关键,允许有节奏的城市规模,它定义了项目与人口现有配置文件一致。 该建筑包括32套住宅,配有三部核心楼梯和电梯,每层提供两套或三套公寓,允许所有住宅双取向。屋顶无檐。最后,减少城市化。外立面的周边有花园区和一个小而硬的不规则表面作为与街道家具的路径。还有一个游泳池和一个运动区的私人花园区域。
西班牙Fadura住宅外观图
西班牙Fadura住宅外部局部图
西班牙Fadura住宅外部墙体细节图
西班牙Fadura住宅
西班牙Fadura住宅正面图
西班牙Fadura
住宅平面图
西班牙Fadura住宅平面图
客服
消息
收藏
下载
最近


























