查看完整案例


收藏

下载
Block House
设计方:Porebski Architects
位置:澳大利亚
分类:居住建筑
内容:实景照片
结构工程师:James Taylor & Associates
设计团队:Andre Heyko-Porebski, Caomhan Murphy, Alex Heyko-Porebski, Irene Sheridan-Miller
建造:Kendale Homes
图片:23张
摄影师:Connor Quinn, Brett Boardman
这是由Porebski Architects设计的方块住宅。项目位于珍珠滩沿岸,一个满是灌木的岸边,该住宅回应了周边环境,设计成一个僻静的隐居所。该住宅与周边的砂岩峭壁和巨浪有所联系,而周边环境反过来影响建筑的形式和材料。住宅的两翼围合出一个室内庭院,免受强劲的向岸风的吹袭。庭院不仅充当私人隐居所的康乐使用场地,还有助控制通风和阳光走向。
该住宅坚持可持续发展的设计原则,包括被动式制冷制热、外部木制百叶窗、子楼的通风系统、地热采暖和制冷、雨水收集、太阳能电池板和精心布置的天窗。可操作木制百叶窗和低耗能的双层玻璃提供了保护,免受外在条件影响。
译者: 艾比
Situated on the shore of Pearl Beach, an area where the bush meets the coast, the Block House is a secluded escape designed to respond to its surroundings. Pearl Beach is formed by two coastal headlands and is defined by eucalypt bush to the north and south and a rainforest to the west. Contextually the house relates to the sandstone cliffs and caves of the surrounding headlands and heavy waves on the beach, which in turn influence the form and materiality of the building.The Block House features an internal courtyard formed by two wings, providing an external enclosure protected from harsh onshore winds. The courtyard not only presents a private sanctuary for recreational use, but allows for consistent and controlled ventilation and sun access throughout all spaces in the house.
Due to the proximity of the beach and surrounding headlands, raw and heavy elements pay homage to the surrounding cliffs and caves. A simple palette of materials requiring minimal maintenance and finishes, along with precision in detailing, create the light sensibility of the structure. Operable layers of the facade generate the transparency of the house where visual and physical connections are established to the surrounding features of the site. Furthermore, sliding timber shutters and cavity sliding windows and doors allow spaces to open seamlessly, blurring the demarcation between inside and outside.
As the project is intended for weekend use, the brief required a low maintenance house with open planning. A double-height entry hall containing the staircase provides a sculptural interface between the public living spaces on the ground floor and the private upper level. Bedrooms and a study are placed on the first floor where openings are crafted to frame views and promote passive design principles. L-shaped single room planning allows movement between interior and exterior spaces to remain unobstructed. The garage provides multiple uses, doubling as a car and hobby space.
The project has seen the collaboration of the architects with a multitude of consultants. As the house is seaward of the predicted 2098 sea erosion line, specialist engineering became imperative. Furthermore, the clients’ appreciation and participation in the design process, specifically the sustainable considerations, lead to a thoughtful and responsive design process.
The Block House adheres to numerous sustainable design principles, including passive cooling and heating, external timber shutters, sub-floor ventilation, provision of cross ventilation, geothermal heating and cooling, rainwater harvesting, solar panels and thoughtfully placed skylights. The operable timber shutters and low-e double glazing provide protection from fluctuating external conditions, and work in unison with thermally massed materials to deal with high diurnal temperature ranges.
Having previously completed a house for the client in Pearl Beach, the client understood and was integral throughout the design process. An appreciation of a site-specific house meant that conceptual and strategic design took preference over budgetary constraints. The outcome is a thoughtful sequence of meticulously crafted spaces forming a house that celebrates the act of living on the beach.
澳大利亚方块住宅门口图
澳大利亚方块住宅外部局部图
澳大利亚方块住宅露天局部图
澳大利亚方块住宅
澳大利亚方块住宅总规划图
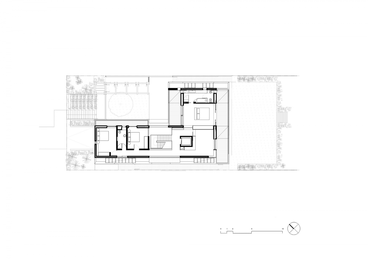
澳大利亚方块
住宅平面图
澳大利亚方块住宅平面图
澳大利亚方块住宅东南立面图
澳大利亚方块住宅截面图
澳大利亚方块住宅截面图西北立面图
客服
消息
收藏
下载
最近

























