查看完整案例


收藏

下载
House in Chalandri
设计方:MOB architects
位置:希腊
分类:居住建筑
内容:实景照片
项目规模:615平方米
图片:14张
摄影师:Nikos Daniilidis
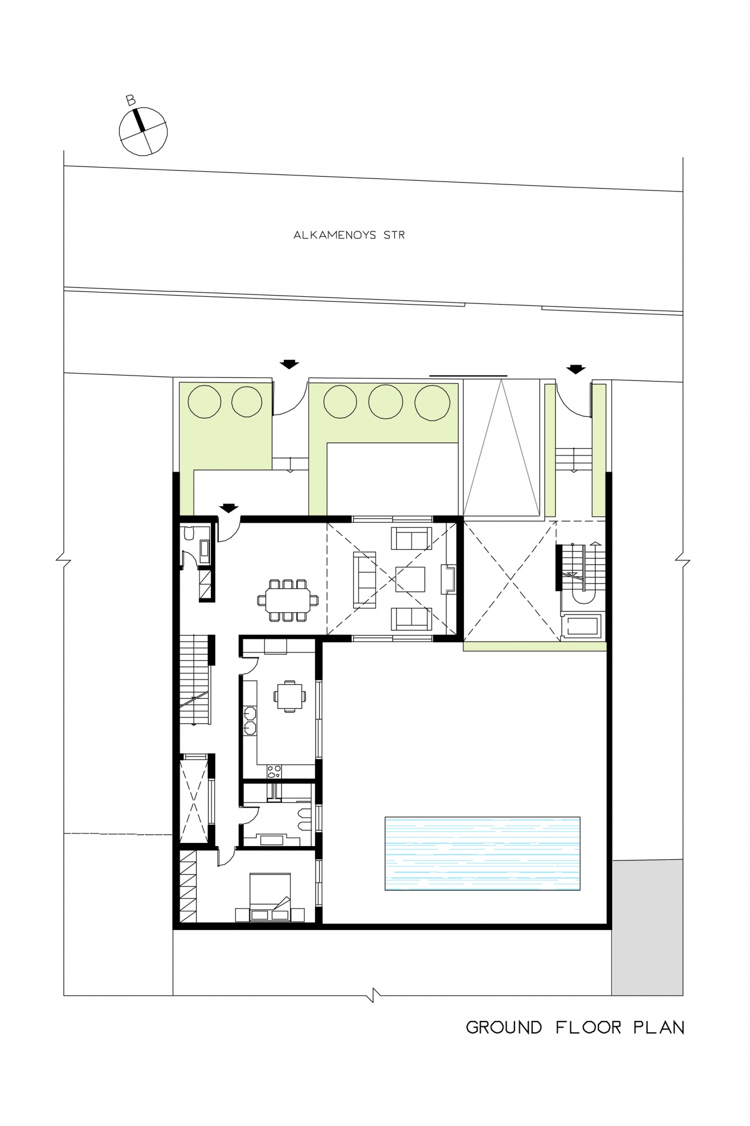
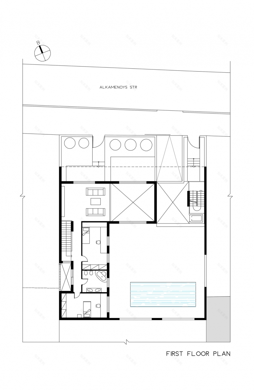
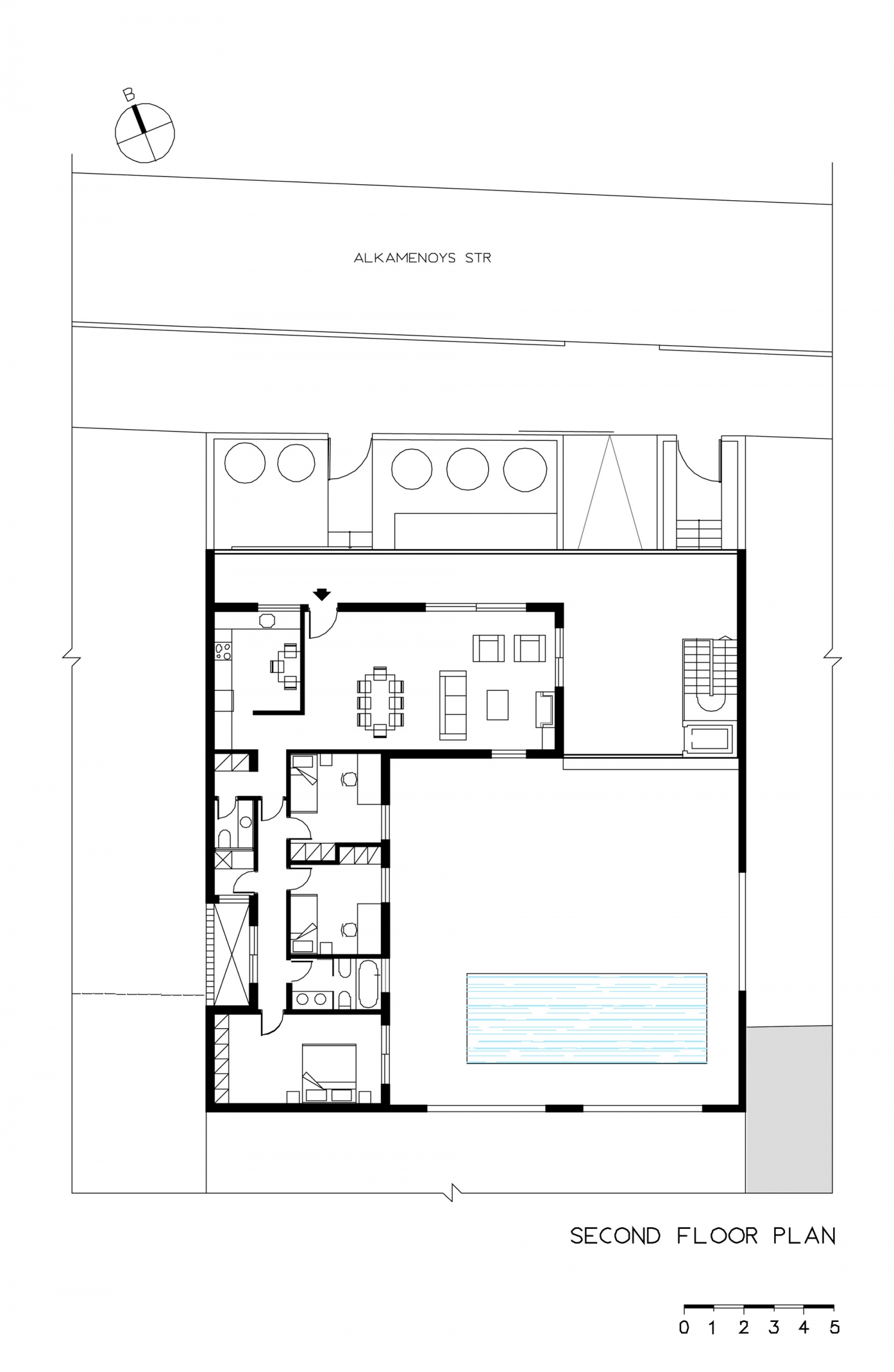
这是由MOB architects设计的Chalandri别墅。项目位于雅典北部郊区的Chalandri,用地面积为411平方米。该项目要求设计这个建筑建设为三层,内布置两个独立住宅。其中一个位于建筑一二层,另一个位于二三层。两个住宅各有独立的入口,其中第二个别墅是通过露天楼梯或电梯进入。公共设施及停车场布置在地下室。
由于雅典是地中海温和气候,一年中的许多个月都会在户外进行活动。因此设计中要充分考虑到户外生活空间的设计。因此,建筑师设计出裸露混凝土墙的L型建筑体与露天庭院。大部分室内空间都会看到这个露天庭院及泳池。
译者: 艾比
In an urban plot of 411m2 in Chalandri the brief called for two independent residences, arranged on three floors. One of the houses occupies the ground and the first floor, while the other the second floor of the building. The two houses have separate entrances and the second one is approached through an open air staircase or by an elevator. Utilities and a car parking are placed in the basement.
As the climate in Athens is Mediterranean – mild it is usual during many months of the year, for daily activities to be held outdoors. Therefore it is essential in the design process to incorporate agreeable outdoor living spaces. In this case a shell of in situ exposed concrete encloses the L shaped building volume and an open air courtyard. Most internal spaces face into the courtyard which includes a pool.
The notion of house around an enclosed open air space is very old and commonly used in many parts of the world, as it serves well urban habitation. In this case, the outdoor living space is clearly defined by full height walls that provide regulated climate conditions (sunshading – cooling – protection from strong winds) and privacy as well as a controlled visual relationship with the surroundings.
雅典Chalandri住宅外观图
雅典Chalandri住宅外部局部图
雅典Chalandri住宅内部局部图
雅典Chalandri住宅
雅典Chalandri住宅底层平面图
雅典Chalandri住宅二层平面图
雅典Chalandri住宅三层平面图
客服
消息
收藏
下载
最近
















