查看完整案例


收藏

下载
Poland GG House residence
设计方:Architekt.Lemanski
位置:波兰
分类:居住建筑
内容:实景照片
图片来源:Tomasz Zakrzewski
项目规模:369平方米
图片:19张
摄影师:Tomasz Zakrzewski
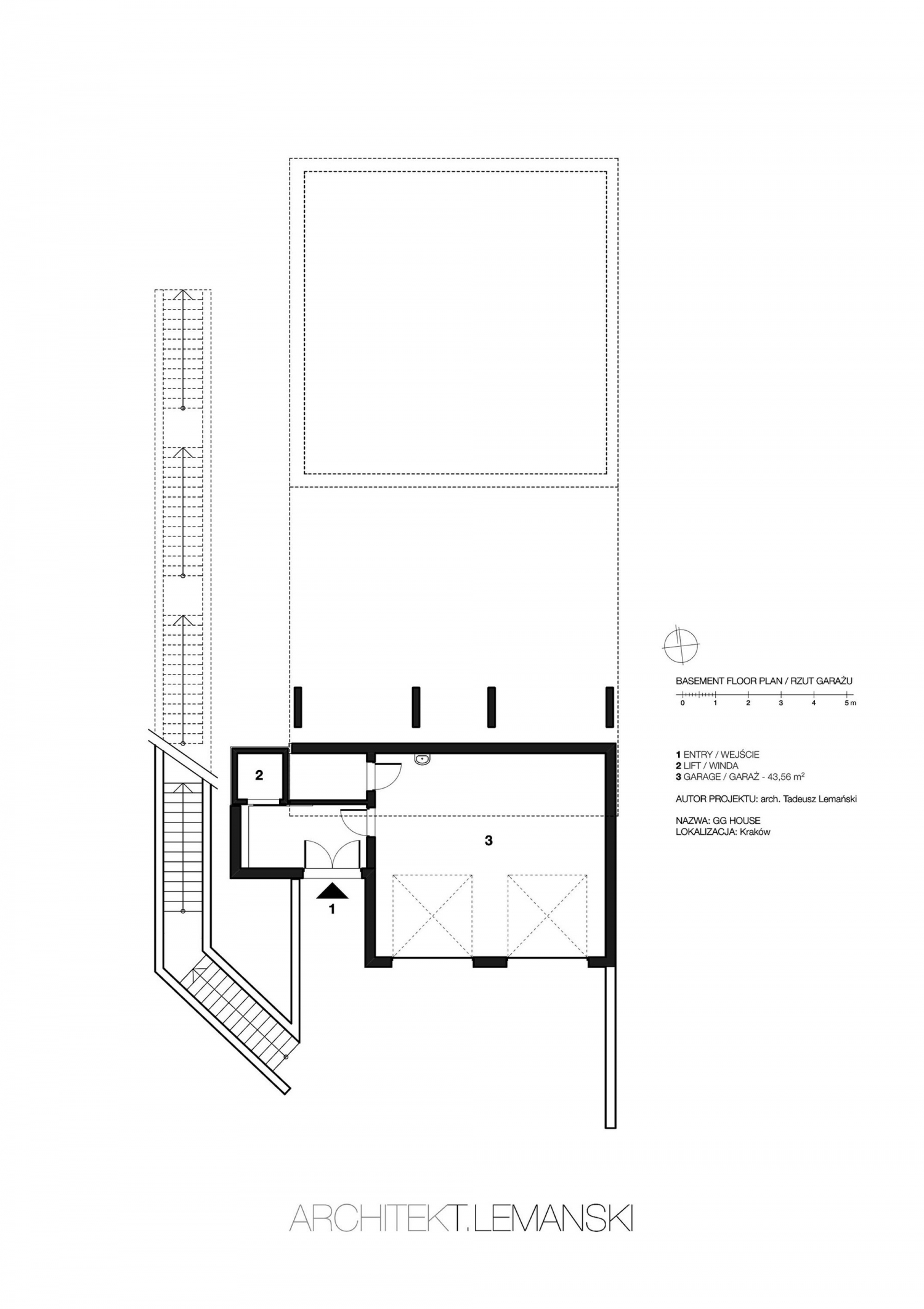
该项目位于克拉科夫绿化区Przegorzaky,地处南部陡峭的斜坡处。该建筑具有极其简单的建筑形式,窗户的位置除了可以让人们欣赏到优美的风景,同时还可以最大限度的接收到室外自然光线。建筑的南立面,安装有遮挡功能的阳台和门廊,在夏天的时候,可以提供非常漂亮的阴影区。同时,在冬天的时候,也可以将阳光引入室内。道路和房子之间的台阶高差是12米。在这个空间,足够设计停车场和车库。所以汽车在路面水平方向非常便于隐藏。房子的其他部分,也可以利用天然的白云石窗台,提高自己的高度。
译者: 蝈蝈
“GG House” was located on a south, steep slope in the green district of Cracow – Przegorza?y. The simple form of the building is divided among window placements on the fa?ade to let maximum amount of sunlight inside. The south fa?ade of the building, is covered with balconies and porches which provides nice shade in summer and allows the sun to fill the interior in winter.Elevation difference between road and ledge on which house is standing is 12 meters. In this space architect placed parking area and garage, so the cars can be easily hidden on the road level, while the rest of the house can take advantage of natural dolomite ledge strengthen with four ten meters-high columns.
波兰GG House住宅外部实景图
波兰GG House住宅外部背面实景图
波兰GG House住宅外部侧面实景图
波兰GG House住宅外部夜景实景图
波兰GG House住宅内部过道实景图
波兰GG House住宅内部客厅实景图
波兰GG House住宅底层平面图
波兰GG House住宅地下室平面图
波兰GG House住宅二层平面图
客服
消息
收藏
下载
最近





















