查看完整案例

收藏

下载
North of Japan
设计方:y+M
位置:日本
分类:居住建筑
内容:实景照片
图片来源:Nacasa & Partners
图片:18张
摄影师:Nacasa & Partners
该项目位于Noto河附近,夏天的时候,人们可以在这里享受萤火虫光芒的乐趣,秋天的时候,美丽的森林变化着颜色,在这里我们可以看见驯鹿到河流旁喝水。设计师们应客户的需求,力图打造一个充分享受大自然的住宅,同时一个开放式的花园位于河流附近。设计师们设计了阶梯式样的屋顶,朝向河流的方向。屋顶上的客户可以享受周围的大自然,萤火虫,驯鹿,树木等。在屋顶上还可以享受到Wakakusa山脉和Ikoma山脉,以便人们享受传统壮观的山脉景观,如“夏日Daimonjiyaki篝火节”和新年时的“烧山节”(Wakakusa-yama Yamayaki)。
译者: 蝈蝈
Noto River runs nearby the house. At there people can enjoy watching gleam of fireflies in summer, and beautiful color leaves in autumn, besides we sometimes see deer visits to the riverside. We suggested the house where our client can enjoy the abundant gift from nature by designing an open garden nearby the riverside.We designed stairs-shaped roof that is down to the riverside. On the roof our client can enjoy watching the fireflies, deer and color leaves. From the roof we can enjoy scenery of Mt. Wakakusa and Mt. Ikoma. So that people can watch some traditional spectacular events of the mountains such as “Daimonjiyaki” bonfire in summer and “Wakakusa-yama Yamayaki” (mountain burning) in new year’s days.
日本北面花房住宅外部实景图
日本北面花房住宅外部墙体局部实景图
日本北面花房住宅内部局部实景图
日本北面花房住宅内部厨房实景图
日本北面花房住宅外部局部实景图
日本北面花房住宅外部夜景实景图
日本北面花房住宅内部实景图
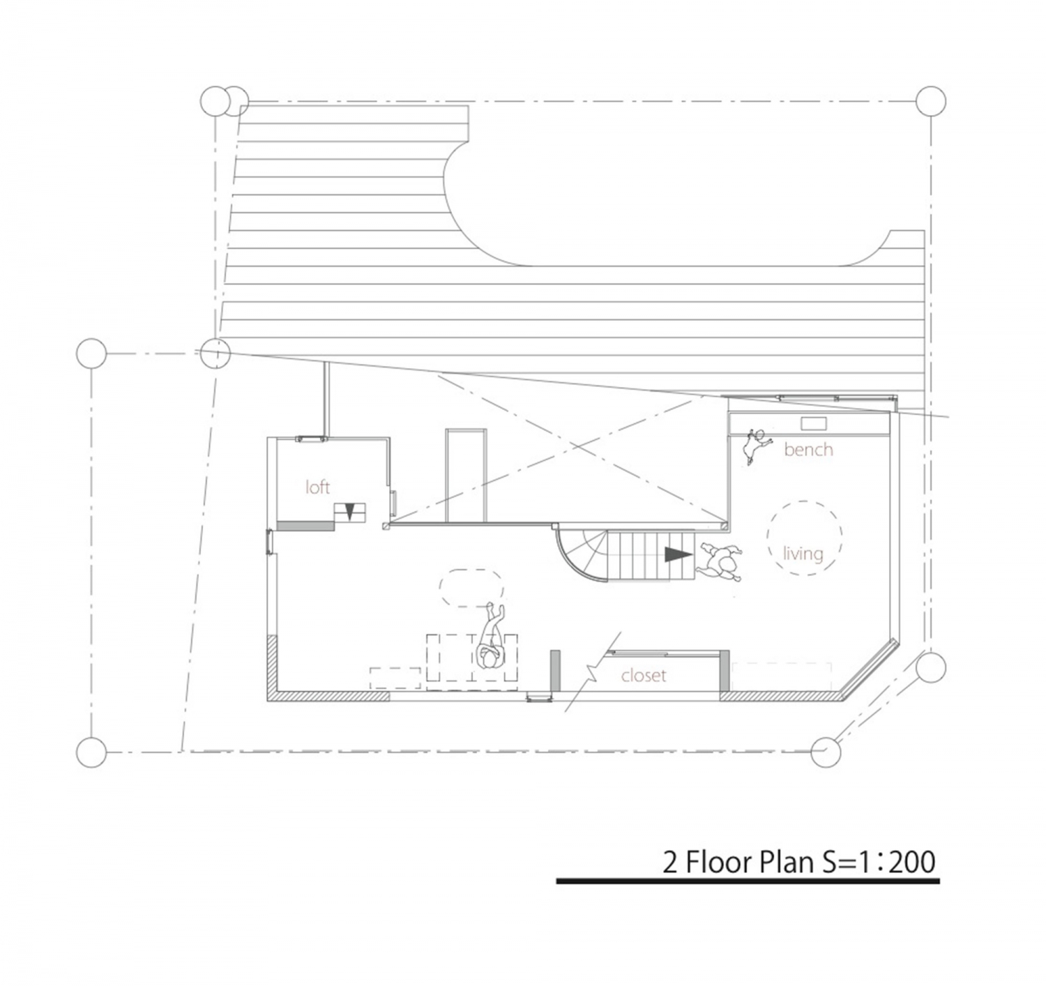
日本北面花房住宅总平面图
日本北面花房
住宅平面图
日本北面花房住宅平面图
日本北面花房住宅分析图
客服
消息
收藏
下载
最近




















