查看完整案例


收藏

下载
Canada plateau house
设计方:Atelier Pierre Thibault
位置:加拿大
分类:居住建筑
内容:实景照片
设计团队:Pierre Thibault & Jérôme Lapierre
图片来源:Alain Laforest
图片:17张
摄影师:Alain Laforest
这是由Atelier Pierre Thibault设计的加拿大高原上的景观住宅。设计师们在绘制草图的时候,就想到了利用地势,在这里创建一所高原住宅,这样就可以享受到宽阔的视图。在这个宽阔的平台上,可以享受太阳和湖波的视图。对于下层建筑,上层的平台就成为了屋顶结构,为下层遮阳庇荫。房子的供给都来自于较低的地区,非常薄的建筑体量,为人以漂浮的感觉。
构架由九个方块组成,每个方块都是4米长和4米宽。我们可以在街区的方向上看到住宅,我们还在街道的方向上回发现一个小的露台,从这里,我们可以进入到住宅的核心。整座房屋位于山坡之上,这样更有益于接收到更广阔的景观。建筑还配以大型的窗户,画面更加清晰,震撼。这座住宅的位置和简单的体量,可以让人们以一个新的视角欣赏湖光山色。
译者: 蝈蝈
From the lake, we could see the promontory that we had visited earlier on. As soon as the first sketches were drawn, the idea was to create a plateau where we could enjoy the view. This large terrace captures the sun as well as has a view on the lake. Unaware that the home is below, it is accessed from the top. This surface therefor serves as roofing. The needs of the house are based on a lower plane, placed on very thin columns to give the impression that the inhabited space floats, almost as if in levitation.
The structural frame consists of nine squares each of four meters large and wide. We access the house at street level. We then follow a walkway on the side to reach a small outdoor terrace. We can then enter the heart of the home. The rooms are located on the hillside while the other rooms benefit from the opening of the landscape that seems amplified by large windows. The location and the simple volume of the Grand Plateau make it a place where you can enjoy a new perspective on the lake.
加拿大高原上的景观住宅外部实景图
加拿大高原上的景观住宅外部局部实景图
加拿大高原上的景观住宅外部侧面实景图
加拿大高原上的景观住宅外部背面实景图
加拿大高原上的景观住宅外部夜景实景图
加拿大高原上的景观住宅内部实景图
加拿大高原上的景观住宅内部房间实景图
加拿大高原上的景观住宅内部门口实景图
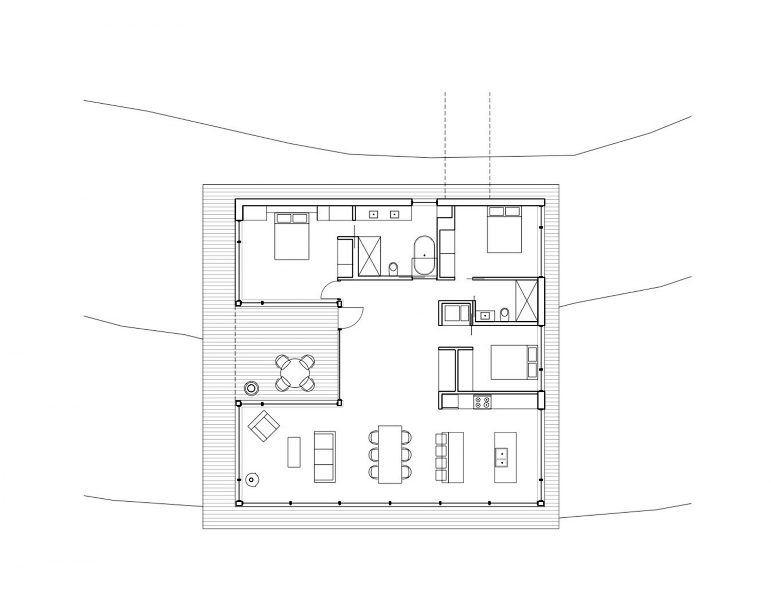
加拿大高原上的景观住宅略图
加拿大高原上的景观
住宅平面图
加拿大高原上的景观住宅平面图
加拿大高原上的景观住宅剖面图
加拿大高原上的景观住宅正面图
加拿大高原上的景观住宅轴测图
客服
消息
收藏
下载
最近



















