查看完整案例


收藏

下载
Argentina Anchorena house
设计方:Proyecto C建筑事务所
位置:阿根廷
分类:居住建筑
内容:实景照片
设计团队:Julia Méndez, Lucas Mc Lean, Mariano Luchetti
图片来源:Gustavo Sosa Pinilla
图片:19张
摄影师:Gustavo Sosa Pinilla
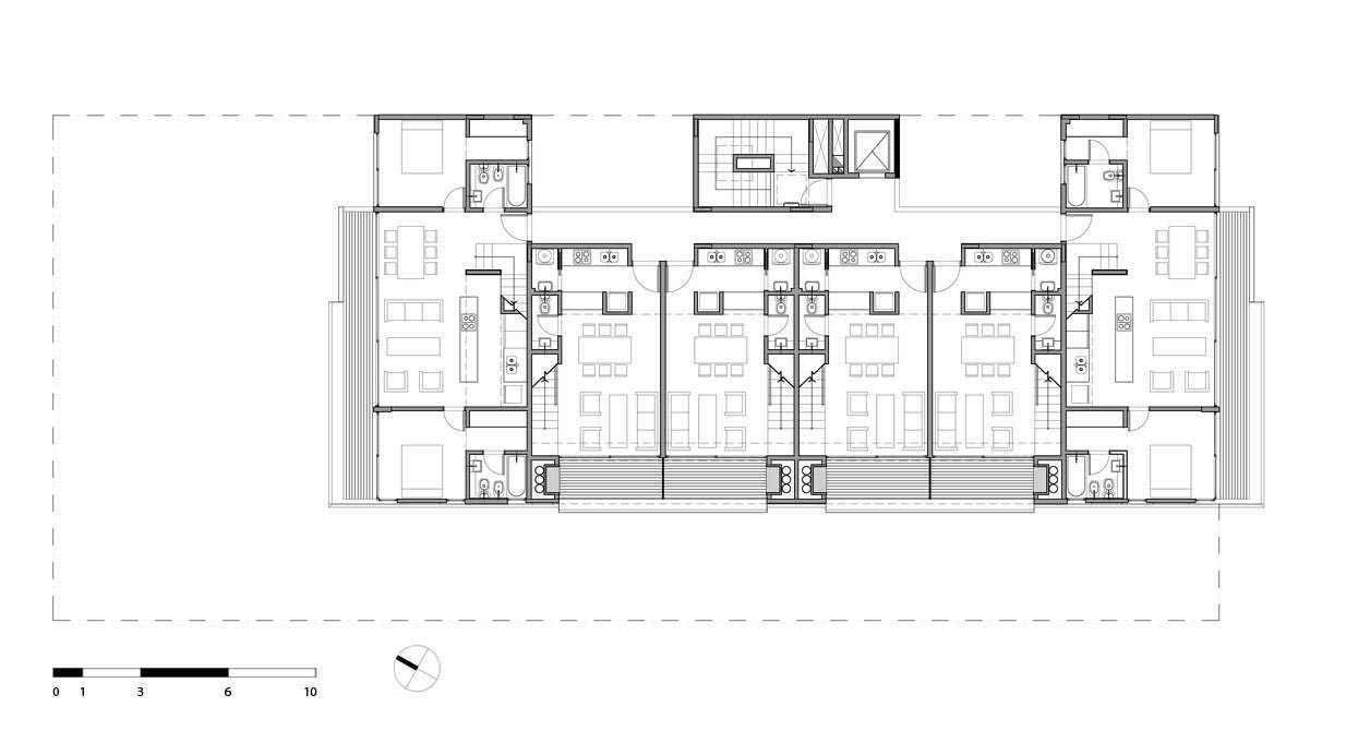
这是由Proyecto C建筑事务所设计的Anchorena住宅项目。该建筑位于La Lucila,是一个拥有双重外立面的住宅。混凝土体量是由四米高的侧向缩退型阶梯组成,使设计师们在每层上可建设4套公寓,从一层到三层,都采用每层建设4套公寓,而五层和六层,设计有6套复式公寓。前后单元均为长方形,并带有两个卧室,三个玻璃窗,三个通道使得建筑外部和公寓的社会区域互相融合。正对着缩进阶梯的单元的阳台延伸出来,可以进行家庭烧烤。
译者:蝈蝈
The project is in a site in La Lucila with a double facade. It is a concrete volume that through a four meter lateral setback, allows us to develop 4 units per floor on the first three floors and 6 duplex units on the fourth and fifth floors.In the front and back, the units are oblong and have two bedrooms, with three window panes and three rails that allow the integration of the exterior with the social area of the apartment. The units facing the side setback have terraced expansions with an individual barbecue.
阿根廷Anchorena住宅外部实景图
阿根廷Anchorena住宅外部侧面实景图
阿根廷Anchorena住宅外部背面实景图
阿根廷Anchorena住宅外部局部实景图
阿根廷Anchorena住宅外部阳台实景图
阿根廷Anchorena住宅外部停车处实景图
阿根廷Anchorena住宅内部房间实景图
阿根廷Anchorena住宅内部过道实景图
阿根廷Anchorena住宅内部实景图
阿根廷Anchorena住宅五层平面图
阿根廷Anchorena
住宅平面图
阿根廷Anchorena住宅底层平面图
阿根廷Anchorena住宅剖面图
阿根廷Anchorena住宅平面图
客服
消息
收藏
下载
最近





















