查看完整案例


收藏

下载
Czech Republic Karkonosze Chalet
设计方:Znameni Ctyr Architekti
位置:捷克
分类:居住建筑
内容:实景照片
图片来源:Tomas Soucek
图片:23张
作为这个项目的设计师,我们做出的最基本的努力和建筑设计理念是修建一栋新的山中小屋,以取代原始的、已荒废的小屋,原始的小屋已经被拆除了。我们的目标不仅是修建一栋从建筑学领域的观点上认为好的建筑物,同样要将这栋建筑物设计成自然环境的一部分,并以积极的方式帮助去形成一个地方的特色。除了客户对视觉、技术和当代类型上的要求,我们不可能忽视强烈的地方特色,和周围的质量建筑物一样,小屋极具克尔科诺谢山当地的典型建筑特色。
这个元素是当地的识别符号,它是在克尔科诺谢山的历史发展长河中形成的一种价值。它与Transcarpathian 和阿尔卑斯山小屋展现出的原则是相似的。同时,我们强烈的察觉到了本地的当代建筑物例证,这是由其他的设计师设计建造的,这位建筑师有意的忽视了这种审美价值,他的目标是设计一个清晰的现代外观建筑物。我们的最基本的努力受到了传统建筑的启发,尝试通过稍微的延期,并通过建筑学的语义来鉴定二十一世纪当代时期的经过设计的建筑物。
译者:蝈蝈
Our primary effort as designers of this project and architectural concept of this house was to design a new mountain chalet to replace existing dilapidated chalet which had been demolished. The aim was not only a creation of quality concept from an architectural point of view, but also for it to be a part of natural environment and help to shape genius loci in a positive way.Despite the primary impulse of the client to visually implement, technologically and typologically contemporary object, it was impossible to ignore strong vernacular element identical with the surrounding quality buildings forming typical character of local architecture of Krkonose mountains.
This element acts as a local identification symbol, which is a value created over the long historical development of Krkonose mountain.It is a similar principle which generally appears in Transcarpathian and Alpine mountain chalets.At the same time we strongly perceive examples of contemporary realizations in the local area by other architects who intentionally ignore this aesthetic value with the aim to clearly attain modern appearance.Our primary effort was to be inspired by traditional architecture ,and try by means of slight deferral of meaning and architectural semantics identify the designed house with the contemporary period of 21. century.
捷克克尔科诺谢山小屋外部实景图
捷克克尔科诺谢山小屋外部侧面实景图
捷克克尔科诺谢山小屋外部局部实景图
捷克克尔科诺谢山小屋内部实景图
捷克克尔科诺谢山小屋内部过道实景图
捷克克尔科诺谢山小屋内部局部实景图
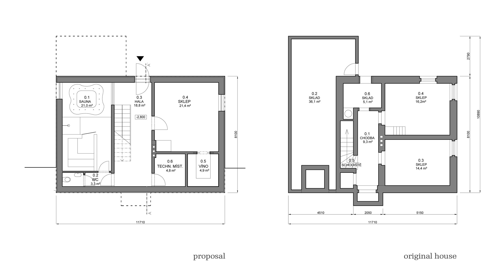
捷克克尔科诺谢山小屋平面图
捷克克尔科诺谢山小屋立面图
捷克克尔科诺谢山小屋剖面图
客服
消息
收藏
下载
最近

























