查看完整案例


收藏

下载
Korea Sosohun house
设计方:Sam-Young Choi
位置:韩国 京畿道
分类:居住建筑
内容:实景照片
设计团队:Woo-Jin Choi, Myung-Sik Choi
项目规模:124平方米
图片:31张
摄影师:Jeongmin Seok
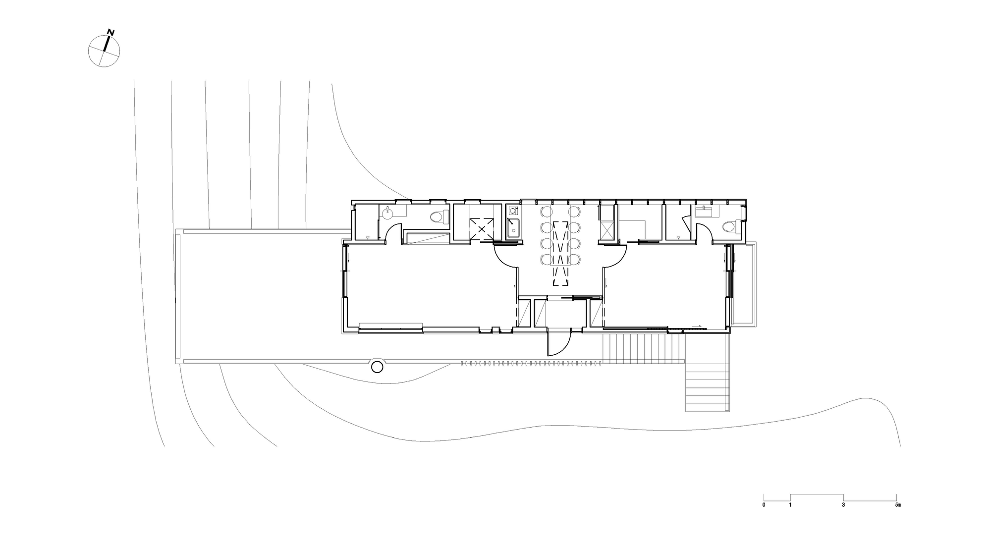
Sosohun住宅是一栋面积很小的房子。虽然住宅中的空间很小,但是它包括了我们的生活和自然。在时间的长河中,房屋并没有体现出它本身的角色,而是被当做了一种物质财富。然而,时间也恢复了房子本身所拥有的含义。Sosohun住宅坐落在Paju-si的Heyri村中,房子虽小,但是却拥有很大的话语权。这栋住宅试图在我们的传统中寻找智慧和答案。Sosohun住宅中不同的部分都展示了简单的生活。在房子长方形平面的中部是厨房,两边都有卧室。这三个空间是不同的部分,与一居室和两居室都不一样,并能适应家庭成员的改变。
Sosohun住宅是一栋环境友好型的建筑物,在建造的过程中没有用到水泥,住宅简单的位置就像一道古老的风景线,所以与周围的环境之间也很和谐。为了控制自然光线,我们使用了传统类型的窗户。我们使用的Hanji窗户被用来调停进入住宅空间中的光线。为了成为一栋环境友好型的建筑物,住宅被设计成理性利用能源的类型。南部屋顶的屋檐很长,这是为了不让墙壁受到烈日和暴风雨的袭击,东西部的户外百叶窗和户外门阻挡了进入住宅的直射光。
译者:蝈蝈
Sosohun is a small house in size. The space is small, but it contains our lives and nature. In the stream of time, the house did not play its role and has been treated as an object of material possession. However, that stream is restoring the house for its original meaning. Sosohun in Heyri Village, Paju-si, is the small house that makes big voice for that stream. This house sought wisdom and found answer from our traditions.The small house Sosohun has variable partitions to show simple life. On the plane, the middle of rectangle is the kitchen and there are rooms on both sides. 3 spaces are variable partitions that can be separated from one-room space to 2LDK and correspond to the changes in family make-up.
Sosohun is an environment-friendly house with no cement and harmonized with surrounding environment with its simple position like an old scenery.To control natural lighting, our traditional windows are used. Hanji windows apply as a lighting for mediating suitable light in the space.To be an environment-friendly house, the house was designed to rationally utilize energy. The eaves of southern roof was constructed long(1.35m) to protect walls from summer sunshine and storm, east-west outdoor blinds and outer doors block direct light. Also, the bathroom in the north and the plies in the warehouse prevent heat loss from winter cold wave.To reduce the overload of heating and cooling, various construction methods and materials are used. Important things for wooden houses are insulation and air tightness. Here, Low-E heat reflecting insulators, materials and tapes with air tightness and water vapor proofing. After completion, the house?ˉs air tightness was verified and the house?ˉs insulation performance will be evaluated. As the house is under use, its inner and outer temperature and humidity are constantly checked and the results will be contributed to energy rationalization for future high-insulation house designs.
韩国Sosohun住宅外部实景图
韩国Sosohun住宅外部局部实景图
韩国Sosohun住宅外部阳台实景图
韩国Sosohun住宅外部过道实景图
韩国Sosohun住宅外部夜景实景图
韩国Sosohun住宅内部实景图
韩国Sosohun住宅内部局部实景图
韩国Sosohun住宅内部细节实景图
韩国Sosohun
住宅平面图
韩国Sosohun住宅平面图
韩国Sosohun住宅立面图
韩国Sosohun住宅剖面图
客服
消息
收藏
下载
最近

































