查看完整案例


收藏

下载
Netherlands Utrecht Recreation House
设计方:Zecc Architecten
位置:荷兰 乌特勒支
分类:居住建筑
内容:实景照片
承包方:Casco: Bert Oostenbruggen.
图片:24张
摄影师:Stijn, Roel van Norel
这是由Zecc Architecten设计的乌特勒支休闲住宅,位于乌特勒支北部郊区。这是一座紧凑布局的休闲住宅,使用了木材建造,朝向绿色花园一侧的立面使用了百叶窗。该项目由Zecc与室内设计师Roel van Norel合作完成。该住宅重用原建筑的几座和建筑轮廓,新建筑的造型很简单,使用了石板制的人字形屋顶、烟囱和红雪松木表皮。该住宅使用的天然材料,与自然景观无缝连接。建筑制图、室内设计及建筑建造均是一手包办,因此达到前所未有的高水准工艺效果。该住宅一侧立面使用了石板,完全封闭,而另一侧则配置了可移动的百叶窗,可以直接引入阳光与户外风景。
译者: 艾比
From the architect. In the rural area north of Utrecht a compact recreation house has been realized. The house is constructed in wood and opens its façade with window shutters towards the green garden.The design has been realized by a special collaboration between Zecc and interior designer Roel van Norel. Zecc designed the basic concept of the house and then Roel van Norel has developed the plan all the way into the smallest detail and has built the house together with the contractor.
The house has replaced an existing garden house, which foundation is reused and its existing contours were the starting point of the new house. The archetypal cottage is simple: a gable roof of stone slate, a chimney and a wood cladding of Western Red Cedar. The cottage blends into the landscape seamlessly by the natural use of the materials. The architectural drafting, interior design and its realization were in one hand. This has resulted in an unprecedented high level of craftsmanship.
The refinement of this cottage is in the asymmetrical head design, detailing and interior. The house is completely closed on one side by putting the slates vertical on the façade. The other side opens up to the green and is equipped with movable window shutters. That way the sunlight and view can be directed.
The horizontal slats of the shutters continue into the cladding of the cottage so that when the shutters are closed the house gets a closed character. The front is completely transparent and has a sturdy/rough steel facade. This part focuses on the open part of the landscape.The structure consists of four girders with a rafter. The frame of the fully glazed west façade is detailed out of sight by placing it in the zone of the rafters.
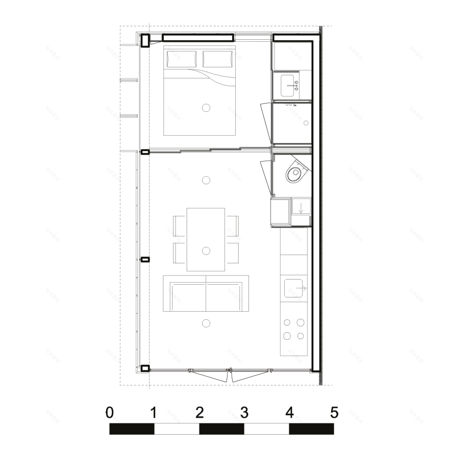
The front section is used as a kitchen / living / dining room and in the rear area the sleeping room is placed. The space can be separated by sliding panels. Above the sleeping area is a small entresol is made.On the ling side of the closed façade all facilities are integrated into a wall of oak: the kitchen, wood stove, a toilet, shower, sink and several cabinets. Even the plinth of the kitchen is designed as a drawer … every square inch of the house is used and thought out.
荷兰乌特勒支休闲住宅外部实景图
荷兰乌特勒支休闲住宅外部局部实景图
荷兰乌特勒支休闲住宅外部细节实景图
荷兰乌特勒支休闲住宅外部夜景实景图
荷兰乌特勒支休闲住宅内部实景图
荷兰乌特勒支休闲住宅内部卧室实景图
荷兰乌特勒支休闲住宅内部局部实景图
荷兰乌特勒支休闲
住宅平面图
荷兰乌特勒支休闲住宅平面图
客服
消息
收藏
下载
最近


























