查看完整案例

收藏

下载
新中式·属于城市精英的复式样板房
坐落于珠海的项目,从城市形象出发,将设计融入“天地、人文,海洋”的三个元素为核心。打造一套现代东方的文化筑底内核,让到访者感受独到的魅力。
设计中,硬装选用有肌理与层次丰富的主材,展现禅意和儒雅之气。软装提炼“海洋”的“海蓝”为辅调,营造出与城市文脉统一的空间。
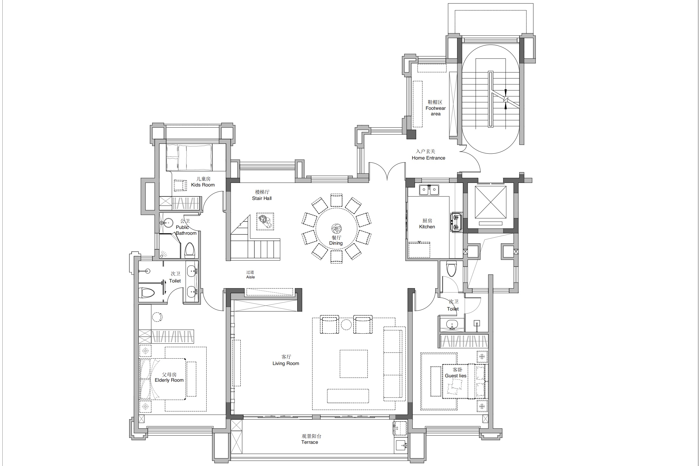
▲1F 平面布置图
入户玄关
简洁的黑白主色调是反衬窗外小区的园林绿化风景,将视觉向外延伸出去,将项目的每个优势都“强调出来”
厨房
敞亮典雅的厨房是为爱厨的人定制的。
餐厅
打破界限将开阔的客餐厅整理得更有空间功能性。而餐厅作为感受室内整体的第一空间,如何丰富空间成了第一要素。
徽派吊灯照亮的是新中式风韵,与空间呼应,海蓝色的餐椅背靠延续“海蓝”的调性。茶柜陈列的是主人的藏品和艺术品,每件珍藏都是文化底蕴的展现,给餐厅和楼梯空间勾勒出一道“风景线”。
客厅
流线跳动形态的现代水晶吊灯,是审美和生活的迭代,是现代和传统的继承。在整体搭配上布艺和皮质肌理点缀上海蓝色的色调,营造出柔和温馨的生活空间。
打破了原始封闭的室内格局,将原本属于卧室空间的归属到了客厅,酒柜的融入丰富了空间的功能性,将长度 7.7 米的客厅赋予了实用和会客交流的有趣空间。
客卧
整体简约却不单调的艺术体验感,让居住者得以在打造的空间中感受这个时代给予我们的馈赠。
父母房
年长双亲的卧室注重实用与功能性,色调低调沉稳,淡雅质朴。如同水墨画一般的场景打造出安宁的休息空间。
父母房卫生间
沉稳色调的卫生间符合新中式的调性,改造原有的卫生间格局,变成各自独立三分离的布局,提升了居住舒适性。
▲2F 平面布置图
书房
生活的最好节奏是“张弛有度”,书房的独立划分是主人的一个私享空间。
运用透景延伸的手法将二楼书房和一楼楼梯厅串连在一起。而古韵的书桌椅重显人文气韵的诗意空间。
主卧
延续新中式风格,选用独特的古风壁画,演绎古楼、竹林、山水间的清韵幽美。整体色调与中式吊灯相交辉映。形构出舒适雅致的空间。
以蓝为牵引,空间的留白烘托出软硬装的肌理层次。
主卫
暖灰色的墙地砖,材质质朴不张扬,渲染出清雅明媚的视觉感受。
空间上打通了与园林的隔阂,单向玻璃既能够欣赏园林的美景又保证了主卫的隐私性。沐浴在浴缸上手持美酒,欣赏美景,这是给主人尊享的小憩时光。
一体式的双台盆更显美观与实用性。四分离的功能空间让空间更独立和舒适,简约大方营造出自然、随性的空间效果,强调着主人的生活品味与态度。
园林
闲情逸致与禅意格局
空中庭院作为项目的最大特色,庭院将近 75 平米的私享户外空间。对居住者而言,户外与庭院是室内的延伸,是品味生活的专属归所。
有层次的动线布道,防腐木布置的围坐区增强庭院的社交互动的运用。有序布置的组合出一个怡然惬意的生活状态。
犹如简笔画的山石造型,把山水画的意境摆进园林之中。石柱矗立,光影流动,影子随着日照的变化在地面游走,也把影子映在室内。
从设计师的角度看,艺术源于生活,从人文情怀的传承提升生活品质,从城市形象元素融入设计,诠释“家”的存在。
95
后/独立设计师
项目类型 | 样板房
项目面积 | 236㎡+110㎡
项目地点 | 珠海海畔山复式样板房
空间设计 | 锋
视觉表达 | 陈越辉
客服
消息
收藏
下载
最近






















