查看完整案例


收藏

下载
项目名称:泰国清迈240㎡全开放式观景别墅
位置:泰国 清迈
设计公司:blank studio
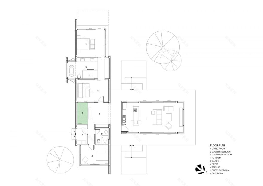
这栋全开放式观景别墅位于泰国清迈的一处花圃中,拥有独特观景视野。别墅面积为240平方米,分为三个部分:客厅,卧室和公共区。由blank studio团队设计。别墅中间位置的石头墙是用于分隔公共空间和私人区域的主要元素,自进入入口以来,石墙是一个引人注目的。建筑师希望在外部环境和房屋内部之间建立连接,因此它被认为是建筑物的延续,直到其他空间一直延伸到内部。石墙主要用作保护隐私。两个平行的石墙被设计为封闭私人空间,为两间卧室提供了开放空间。该空间通向两间卧室,远离公共空间,营造出一种私密的感觉。
泰国清迈240㎡全开放式观景别墅外部实景图
泰国清迈240㎡全开放式观景别墅室内实景图
泰国清迈240㎡全开放式观景别墅平面图
泰国清迈240㎡全开放式观景别墅立面图
泰国清迈240㎡全开放式观景别墅剖面图
客服
消息
收藏
下载
最近


























