查看完整案例


收藏

下载
项目名称:日本海边别墅改造
位置:日本
设计公司:nanometer architecture
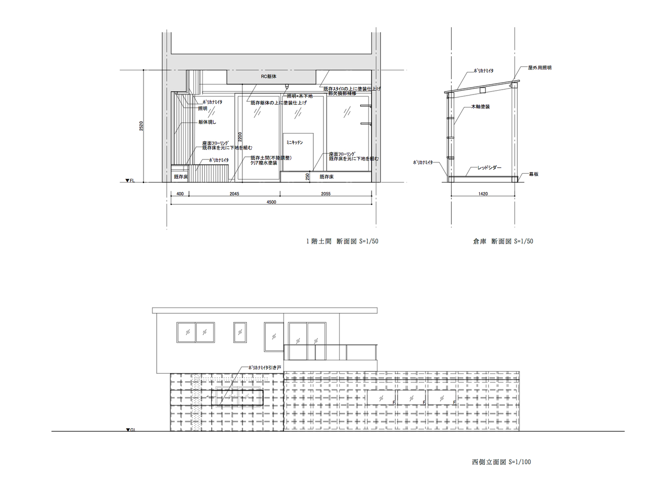
这是一个海滨别墅整修计划,根据有关法规,建造进行的首要前提是得到相关准许。现存的一个主要问题是,强烈的海风吹起沙尘,也将它们从窗户刮进了室内。面向大海的仓库成了花园的一道屏障,它又被重新修缮了一次以填补缺口,但它同时也挡住了通往大海的视野。我们想重新获得海景,对原来的土地(即起居室)进行改造,使之与花园融为一体。为了解决沙尘问题,我们在外墙,窗户,仓库周围制作了一个覆盖有防砂墙的防砂室,并获得了防冻型聚碳酸酯波纹板的视觉效果和功能,也不会带有明显的沙子划痕。起居室位于除砂室和房间其余部分之间。二楼的起居室用单线划分。我们通过一种称为“重建”的技术来重新设计结构和可用性,从而得到这些平面。
日本海边别墅改造外部实景图
日本海边别墅改造内部实景图
日本海边别墅改造平面图
日本海边别墅改造剖面图
客服
消息
收藏
下载
最近














