查看完整案例


收藏

下载
英文名称:Mexico Ancha villa
位置:澳大利亚 墨西哥
设计公司:Augusto Quijano Arquitectos
摄影师:Eduardo Calvo Santisbón
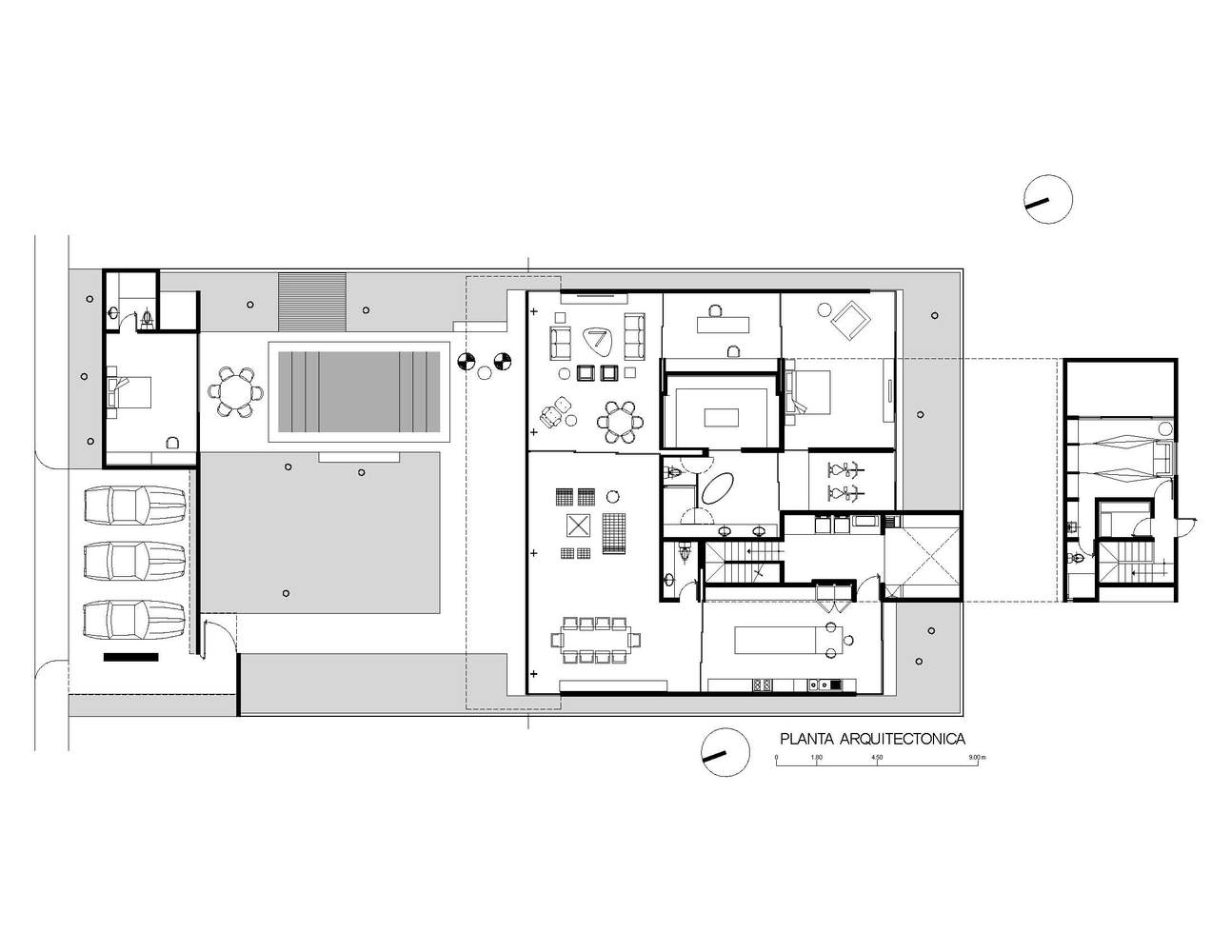
这是一座为独居夫妇打造的住宅,孩子们已经不再和他们同住。与大多数房子相反的是,建筑空间本身是最开放的。房子转向街道的一侧,向北,这也是为了更好地适应此地区严峻的气候。房子围绕着一个大庭院进行空间分布,一系列不同的空间功能通过核心服务互相串联起来,盛行风从东南和东北方向吹过贯穿了整个居住空间。这些生活空间是连通开放的,而木质移动墙能够让你重新以多种方式配置房子的空间,不管是稍作改变,还是部分调整,甚至完全改造空间,都可以实现;只是取决于移动墙的不同位置,看是将两个,三个甚至更多的连接在一起或是完全分离。大厅通往厨房,活动区;另一端,经过学习区,后方连着的为主卧。不管是楼上还是楼下,这些服务空间全都围绕着中心区。核心部分像瑞士军刀一样,不同的配件可单独使用亦或者以不同模式来重新定义空间。
墨西哥Ancha别墅外部实景图
墨西哥Ancha别墅内部实景图
墨西哥Ancha别墅平面图
墨西哥Ancha别墅剖面图
客服
消息
收藏
下载
最近



















