查看完整案例


收藏

下载
英文名称:Iran Brother villa
位置:伊朗
设计公司:NextOffice–Alireza Taghaboni
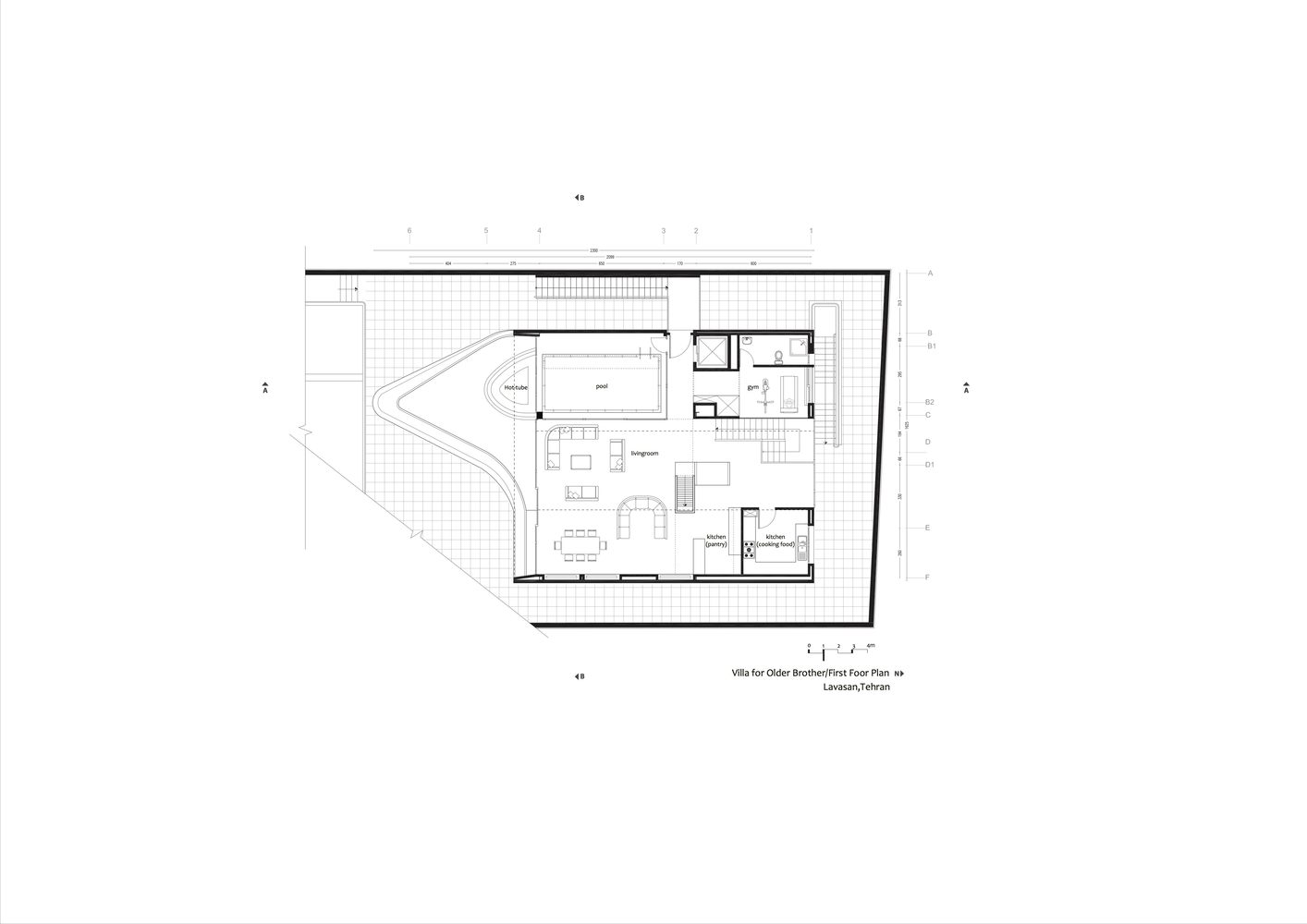
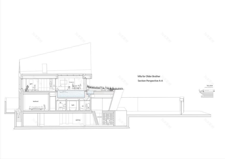
该项目特殊的结构基于将一个伞装的屋顶置于碗装的水池之上。两种元素贯穿平面和剖面。屋顶覆盖在被特别安排在上层的的公共区域上, 底层有一个类似甲板的平台,为居住者提供开放区域。换句话说,该项目从自身功能策略和项目规划出发,受自身影响而擦出火花,从类型学来说,该项目处于坡屋顶别墅和立方体别墅的边缘地带。别墅的地下部分包括车库,门卫室,储藏室和酒窖。地面层是主公寓,一个卧室和另外一个与之分隔的公寓,一层包括起居室,游泳池(可适应两个季节)和健身房。建筑的主入口是固体实心状的漂浮台阶,类似于雕像,与一座桥梁连接在一起 ,示意出上楼的主要通道。值得注意的是,一楼的地面也是与露天的空间相连的。从进入建筑的一刻开始,参观者会看到很多不同的视角;从一条开敞的小径,到两头封闭的小径,从通往主入口较低的天花开始,公共空间逐渐进入视野,参观者可以经历了多次空间的收缩和扩张。
伊朗兄长别墅外部实景图
伊朗兄长别墅局部实景图
伊朗兄长别墅内部实景图
伊朗兄长别墅示意图
伊朗兄长别墅平面图
伊朗兄长别墅剖面图
客服
消息
收藏
下载
最近

































