查看完整案例


收藏

下载
Mexico T02 Villa
设计方:ADI Arquitectura y Diseno Interior
位置:墨西哥
分类:别墅建筑
内容:实景照片
图片:36张
摄影师:Oscar Hernandez
这个项目是单层楼的设计,因为它是为一对残疾人夫妻、单身人士和老人小孩设计建造的。别墅的循环处在最理想的状态,有助于对空间的体验。项目的设计理念就是“开放的空间”,所以倒影池和花园是所有空间设计中的重中之重。
译者:蝈蝈
The project is designed in a single level because it is designed for disabled couples, single people, young or old.The circulation is optimized to benefit experiential spaces.It is a concept of "open space" where the reflecting pool and the garden are the focal point of all spaces.
墨西哥T02别墅外部实景图
墨西哥T02别墅之局部实景图
墨西哥T02别墅外部局部实景图
墨西哥T02别墅外部夜景实景图
墨西哥T02别墅内部实景图
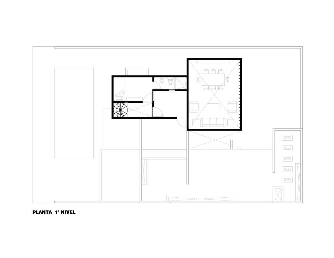
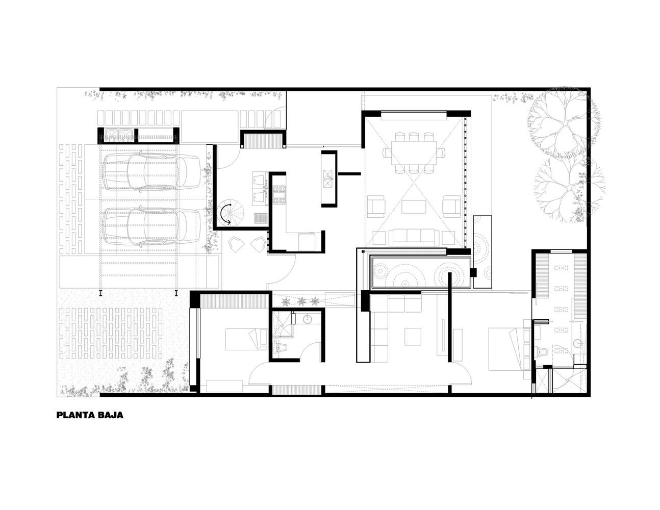
墨西哥T02别墅平面图
墨西哥T02别墅剖面图
墨西哥T02别墅立面图
客服
消息
收藏
下载
最近






































