查看完整案例


收藏

下载
Indonesia Bali WRK Villa
设计方:Parametr Architecture
位置:印度尼西亚
分类:别墅建筑
内容:实景照片
图片:23张
摄影师:Lindung Soemahardi
这是一栋漂亮的别墅,伫立在巴厘岛,乌鲁瓦图区域高耸的石灰岩山顶上,为度假别墅准备的场址占地637平方米,在这里可以远眺印尼海洋。我们的客户想要创造一栋拥有四间卧室、一间餐厅、一个家庭休息室、一个游泳池区域和观景台的度假别墅,观景台上装饰有适宜的、精心挑选的迷人装饰。这个设备齐全的项目是一件作品,作品中包括了几个私人建筑体量空间,这些私人建筑体量空间与一个别致的户外空间结合在了一起,户外空间朝向一个舒适的开放空间和青翠无比的印尼海洋。
建筑体量的空间经过了精心的设计,这个以海洋为主题的别墅的全体空间都沐浴在日光中,而且一整天都有良好的通风。项目设计的发展和建筑材料的选择都非常细致,这是为了展现这栋现代度假别墅的真实印象和建筑设计中的一点当地特色。
译者:蝈蝈
Beautifully standing on the soaring limestone hills of Uluwatu area of Bali, the land for the resort villa covering an area of 637 m2 blatantly overlooking the Ocean of Indonesia. The owner aims to create a resort villa with 4 bedrooms, dining room, family room, pool area and viewing deck aptly adorned with the captivatingly selected decorations.The well-appointed architectural design consists of a composition of several private building masses stylishly combined with a chic public outdoor space oriented to a cozy open space and an ultramarine view of matchless Indonesian ocean.
The architectural mass space is well-structured in such a way that the entire space of this ocean-themed villa is showered by sunlight and enjoys good ventilation throughout the day.Design development and material selection is done meticulously to offer the true impression of a modern resort with a touch of local identity.
印尼巴厘岛WRK别墅外部实景图
印尼巴厘岛WRK别墅外部夜景实景图
印尼巴厘岛WRK别墅内部客厅实景图
印尼巴厘岛WRK别墅内部卧室实景图
印尼巴厘岛WRK别墅夜景实景图
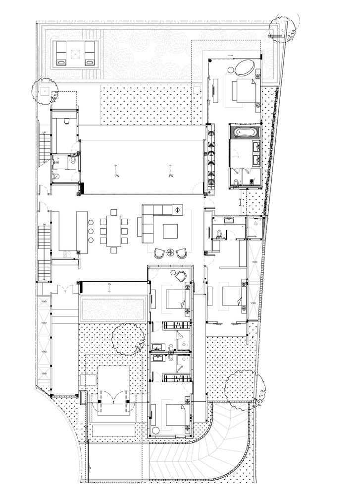
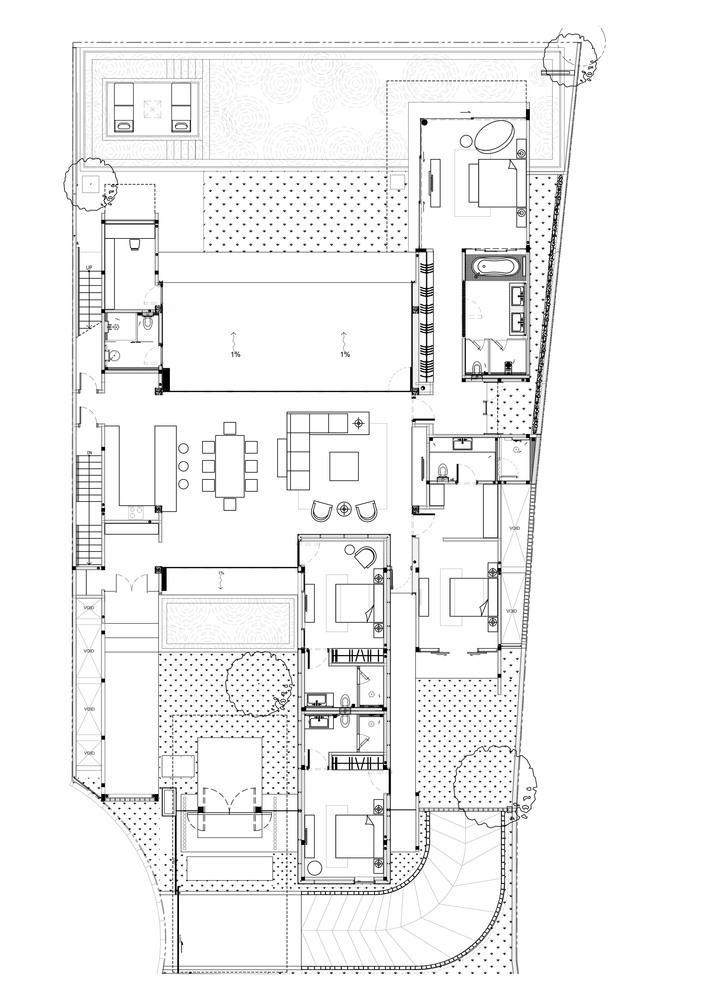
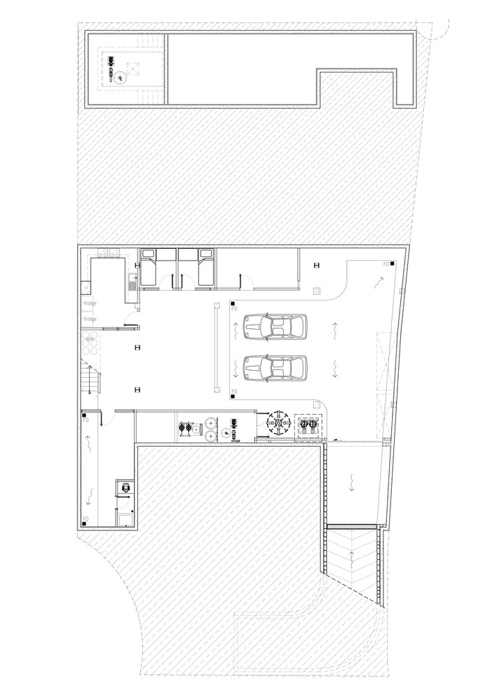
印尼巴厘岛WRK别墅平面图
印尼巴厘岛WRK别墅立面图
印尼巴厘岛WRK别墅剖面图
客服
消息
收藏
下载
最近















































