查看完整案例


收藏

下载
Brazil FMG Monte Alegre villa
设计方:Urbem Arquitetura
位置:巴西
分类:别墅建筑
内容:实景照片
图片:37张
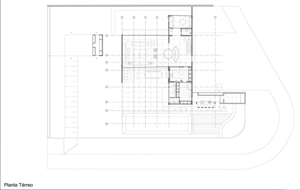
该设计项目是一座别墅,为一对中年夫妇提供足够的空间,使他们可以经常招待家人和朋友,大部分时间陪伴他们的孩子和孙子。该别墅位于郊区一个封闭社区,建在三个不同地块上,集中起来总面积达1740平方米。尽管地块是统一的,其中一个地块仍保持闲置,以免将来进行商业化开发。别墅周围能看到一个旧甘蔗厂,环绕着本地树木和美丽的皮拉西卡巴河,这条河是城市的主要特色。这个景色是在团队开始构思建筑方案时的其中一个立点依据。整个别墅的地形是抬高的,提供隐私而不需要更高的视觉障碍物,保证站在公共道路的人们还能看到周围的美景。
巴西FMG Monte Alegre别墅外部实景图
巴西FMG Monte Alegre别墅外部夜景实景图
巴西FMG Monte Alegre别墅局部实景图
巴西FMG Monte Alegre别墅内部实景图
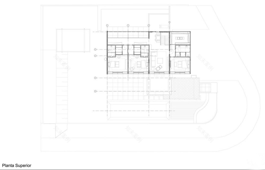
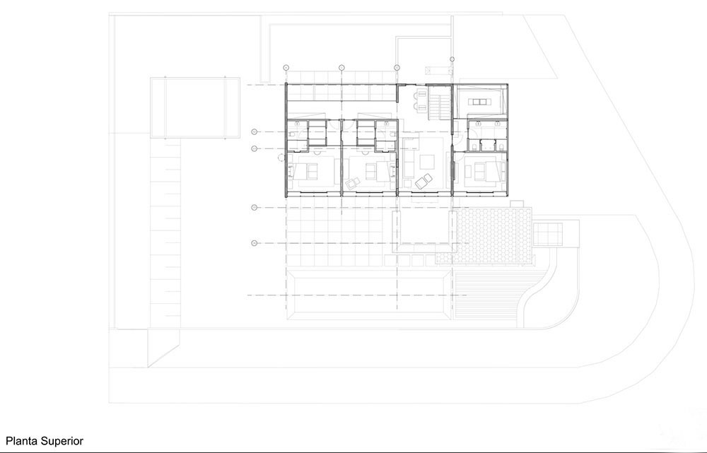
巴西FMG Monte Alegre别墅平面图
巴西FMG Monte Alegre别墅立面图
客服
消息
收藏
下载
最近







































