查看完整案例


收藏

下载
Mexico Eucaliptos villa
设计方:MO+G taller de arquitectura
位置:墨西哥
分类:别墅建筑
内容:实景照片
图片:20张
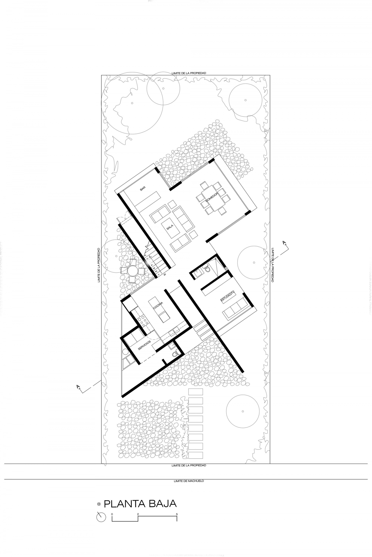
别墅有两个级,共220平方米,其中第一级195平方米,第二级25平方米。别墅场址占地390平方米,位于瓜达拉哈拉城市群南部的一块地皮内。别墅场址的正面和侧面对别墅的设计建造都有限制,使别墅朝阳是别墅建筑设计的一个重要指导方针。别墅的设计提议改进不用的线状的花园区,花园区一般位于这种别墅的侧面。这种设计理念来源于旋转轴。别墅的墙面都稍微的倾斜来阻挡夕阳的余晖,从而打破了城市网格带来的正交性。通过将轴旋转,产生了一系列的庭院和风景,这使得别墅任何内部区域都可以看到别墅的外部区域。
别墅的正面因为别墅朝向原因是完全不透明的。别墅的建筑体量就藏在主要入口后面,从而产生了一个邀请客人进入别墅的入口广场。这种设计使客人有一种开启发现之旅的感觉。别墅的主要入口位于日常生活区域、服务区域和立体循环区的接口处,这使居住者的日常使用变得实用和更方便,也使居住者能够从主要入口进入别墅。在别墅的后墙,旋转的轴创造了一个开口,这将花园融入了整个建筑工程当中。
译者:蝈蝈
The project is comprised of two stages, the first of 195m2, the second of 25m2 for a total of 220m2 on a plot of 390m2, which is located within a subdivision located in to the south of the metropolitan area of the city of Guadalajara.The site for this project has certain restrictions, both frontal and lateral, which along with the solar orientation mark an important guideline for the project. The proposal amends the unused linear garden area that usually appears on the sides of this type of housing.The idea arises from the rotation of the axes. The walls are tilted to protect the house from the setting sun, thus breaking the orthogonality produced by the rigidity of the urban grid. By rotating the axes, a series of courtyards and views are produced, so that the outside is perceived from any interior space.
The front facade is completely opaque due to its orientation. Its volume hides the main access and generates an entry plaza that invites the user to enter the house. This gesture causes the user to take a tour of discovery. The main entrance is located at the juncture of the day area, service area, and vertical circulation, this creates a practicality for everyday use, enabling the user to always enter through the main door. On the rear facade, the rotation of the axes creates an opening that generates the integration of the garden into the project.
墨西哥Eucaliptos别墅外部实景图
墨西哥Eucaliptos别墅内部实景图
墨西哥Eucaliptos别墅内部厨房实景图
墨西哥Eucaliptos别墅内部局部实景图
墨西哥Eucaliptos别墅内部过道实景图
墨西哥Eucaliptos别墅平面图
墨西哥Eucaliptos别墅剖面图
墨西哥Eucaliptos别墅正面图
客服
消息
收藏
下载
最近






















