查看完整案例


收藏

下载
Australia Orama Residence
设计方:smart design studio
位置:澳大利亚 悉尼
分类:别墅建筑
内容:实景照片
图片:29张
摄影师:Courtesy of smart design studio
奥莱姆别墅也是一栋改建别墅,别墅位于悉尼的Woollahra,这是一栋雅致的维多利亚式别墅。这个项目是Smart Design Studio与这个家庭的第二次合作,Smart Design Studio曾经为这个家庭改建了位于较低的北海岸处的Mandolong别墅。在这个项目中,我们的设计理念是增强和扩建这个历史性的别墅,以适应这个家庭不断变化的需求。别墅的修建分为两个阶段,原始的别墅是一个独特的实体,其中有卧室、正式的起居室和学习空间。原始别墅中的漂亮而精巧的元素,比如壁炉和早期的油漆都被保留了下来。别墅的其他部分则进行了更新,我们精心选择了配件和固定装置以展示原始背书最美好的一面。
我们的设计方法是将原始别墅变成整齐的、洁白的和讲究的体量。相比之下,新增加物的形式和细节都被设计成了最小的,特征显著的未加工混凝土设计从墙面一直延伸到了花园,这样的设计特色被游泳池、植被、草坪和鹅卵石突出着。一个突出的双高起居室是扩建部分的核心。北边墙壁上六米高的窗户使得房间中充满了光线,克服了面南场址带来的缺陷。很庆幸的是,别墅的业主拥有难以置信的收藏品数量。空置的混凝土墙、原始别墅雅致的房间为这些收藏品提供了极好的放置环境。
译者:蝈蝈
The transformation of ‘Orama’, a gracious Victorian villa in Sydney’s Woollahra was a welcome opportunity to work once again with the family for whom Smart Design Studio renovated ‘Mandolong House’ on the lower north shore. Our brief was to enhance and expand the historic house to suit the changed needs of the family.Built in two stages, the project addressed the original villa as a distinct entity, housing bedrooms, bathrooms, formal living and study spaces. Beautifully-crafted elements of the historic house, such as fireplaces and early paint schemes, were retained. Other parts of the villa were updated with sensitively-chosen fittings and fixtures to bring out the best of the old building.
The design approach was to make the old house feel trim, white, and tailored. By contrast, the new addition was designed to be minimal in form and detail, with textured raw concrete extending from the walls out into the garden, punctuated by swathes of water (the pool), vegetation, lawn, and pebbles.A striking double-height living room forms the nucleus of the extension. Six-metre tall windows on the northern side flood the room with light, overcoming the limitations of the south-facing site. We were fortunate in that the owners have an incredible art collection. The bare concrete walls, and gracious rooms of the old house provide a dramatic setting for this.The space of the living room flows into a well-appointed stainless steel kitchen, and into the garden and swimming pool beyond. Upstairs, a guest bedroom and chic bathroom occupy the glassy link between the old and new parts of the house.
澳大利亚奥莱姆别墅外部实景图
澳大利亚奥莱姆别墅内部实景图
澳大利亚奥莱姆别墅内部浴室实景图
澳大利亚奥莱姆别墅内部过道实景图
澳大利亚奥莱姆别墅内部卧室实景图
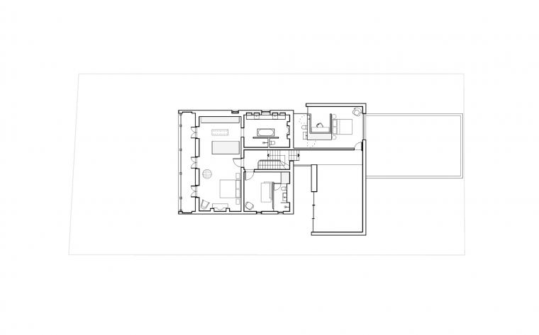
澳大利亚奥莱姆别墅平面图
澳大利亚奥莱姆别墅立面图
澳大利亚奥莱姆别墅剖面图
澳大利亚奥莱姆别墅模型图
客服
消息
收藏
下载
最近



























































