查看完整案例


收藏

下载
Mexico Montes Pirineos Villa
设计方:LEGORRETA & SEPULVEDA, BLANCASMORAN
位置:墨西哥
分类:别墅建筑
内容:实景照片
图片:23张
摄影师:Rafael Gamo
这栋
独栋别墅
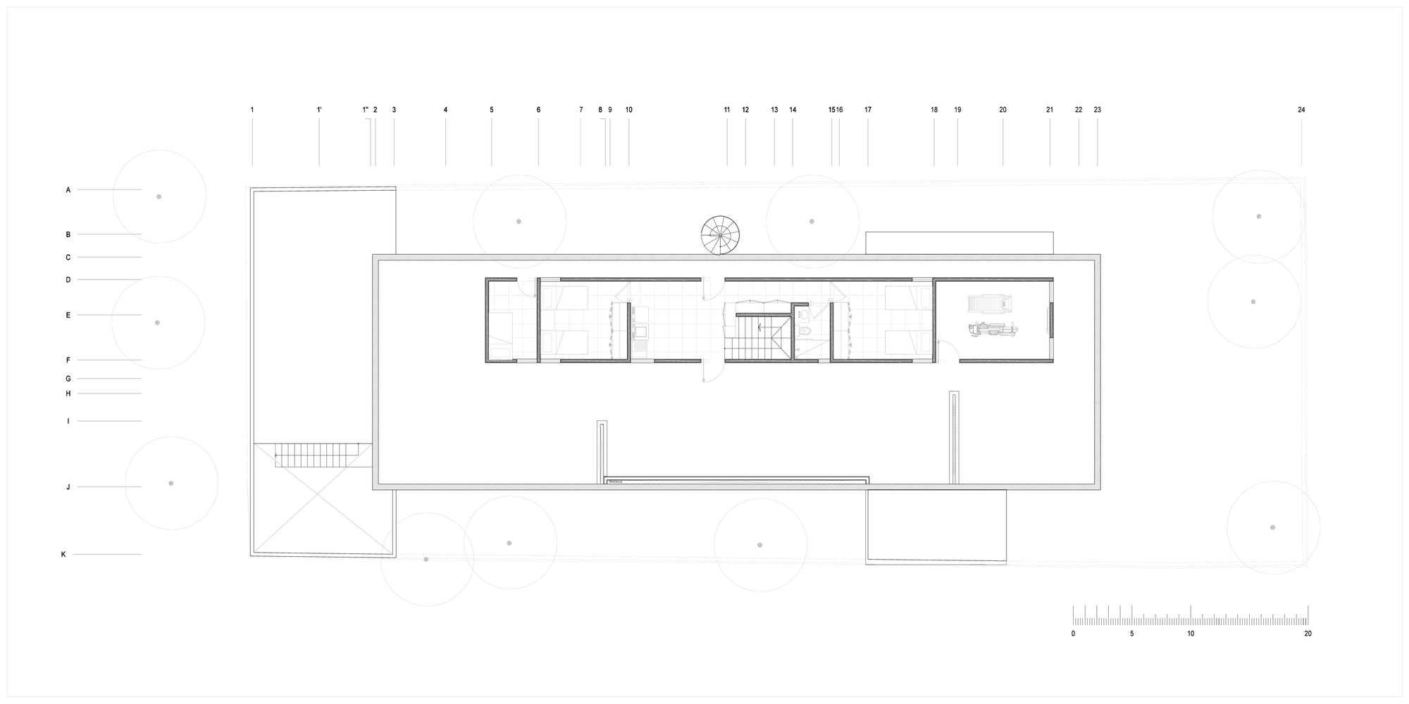
坐落在墨西哥的西部,别墅所在的住宅区创建于二十世纪三十年代,别墅是住宅区中的第三代建筑。别墅是为一对年轻的夫妇设计建造的,他们有三个孩子和一只狗。别墅中所有的公共区域都坐落在一楼中。一楼所在的建筑体量是由不同的材料组成的。厨房、食品贮藏室和餐具间使用的是橡木;起居室则是使用的石头;车库和储物区域使用的是喷涂的金属。我们选择在一楼使用体量而不是墙壁的原因是为了使别墅内外部区域之间的空间流动起来。
体量之间的负空间形成了别墅的循环和主要的门廊。别墅的主楼梯位于这栋两层楼别墅的中部,楼梯连接着别墅一楼的公共区域和二楼的隐私区域。融入横向墙壁的一扇白色百叶窗阻挡了照射进双高走廊的阳光。通过一天中光线的质量,这扇百叶窗能创造出不同的氛围。项目的布局是按照直角坐标点绘开始的,别墅是瘦长型的比例。上部楼层中的卧室和一楼的起居室及家庭休息室的视野都朝向场址的边缘。别墅的其他区域都俯瞰着环绕着别墅的花园:修建花园的意图是将别墅的外部空间融入内部空间中,它们的界限是保护别墅不受恶劣天气影响的透明玻璃墙壁。
译者:蝈蝈
The Montes Pirineos single family house is located in the west of Mexico City and is part of a third generation of architectural interventions in a residential neighbourhood created in the 1930s. The house was designed for a young couple with 3 kids and a dog. All social areas of the house are located at ground level. At this level, the architectural programme is contained in volumes of different materials. Oak is used to contain the kitchen, the pantry and the toilet; stone is used for the volumes containing the family and the living room and lacquered metal is used to contain the garage and storage areas.By using volumes instead of walls we intended to allow the space to flow between the interior and the exterior areas of the house.
The negative space generated in between these volumes creates the house circulations and the house main vestibule. The main stair is centrally located in this double height space and serves as a connection between the social and the private areas of the house. The double height hall is protected from the sun by a white concrete brise-soleil integrated in the lateral facade. This brise-soleil creates different atmosphere depending on the light quality of the day.The project's layout is set on a rectangular plot with elongated proportions. The main views for the bedrooms in the upper level and for the living and family room at the ground level are directed towards both extremes of the plot. The other areas of the house overlook a surrounding garden; this garden is intended to merge the exterior of the house with the interior, its limit is given by a transparent glass skin that protects the house from the elements。
墨西哥Montes Pirineos别墅外部实景图
墨西哥Montes Pirineos别墅内部实景图
墨西哥Montes Pirineos别墅内部厨房实景图
墨西哥Montes Pirineos别墅平面图
墨西哥Montes Pirineos别墅立面图
墨西哥Montes Pirineos别墅剖面图
客服
消息
收藏
下载
最近

























