查看完整案例


收藏

下载
Czech Republic Slavonin villa
设计方:JVArchitekt , Kabinet Architektury
位置:捷克
分类:别墅建筑
内容:实景照片
图片:27张
摄影师:Lukas Nemecek
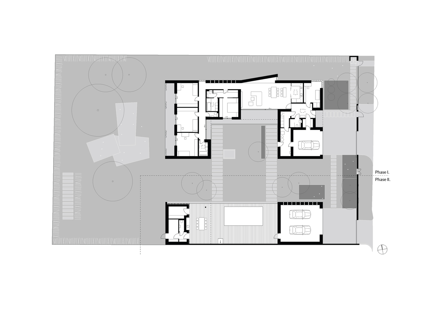
项目坐落在奥洛穆茨的Slavonin,它的场址很平坦。从东边可以接近场址,场址的东边连接着新的车道。场址周围的土地到最近也还是私人的花园。因为新建设的通道代替了原始的泥土路,这个区域中的住宅开发也随之开始了。别墅的设计要为居住者们创造隔绝周围视线的最大程度的隐私。这是通过别墅独特的平面图达到的。这个一层楼的建筑体量包含了三个翼和一个位于内部的中庭。
三个翼组成了一个面向场址南部的U字形。别墅的主要入口位于东边的那个翼中,这个翼也连接着进入的通道。入口位于东墙的中部,并通过以嵌入有顶走廊的形式加强了入口的可塑性。东边的翼主要包含了别墅的服务区域。偶尔用作客房的工作室的角落上有一扇窗户对着街道。从入口大厅可以直接通往更衣室、盥洗室、带着洗衣房的杂物间,入口大厅被来自中部天窗的光线照亮着。这里还有车库和一个机械室。
译者:蝈蝈
Flat land to build a house is located in Olomouc-Slavonin. Access to the site is from the east side, where it is also connected by new driveway. The surrounding lands were until recently used as private gardens. Due to construction of a new access road (including utilities) in place of the existing dirt road, housing development in the area started.House proposal is designed to create maximum privacy for its inhabitants from their surroundings. This is achieved by peculiar ground plan of the house. Ground floor volume consists of three wings and an inner atrium.
Composition of the wings creates a U-shaped plan facing the south side of the plot.The main entrance is situated in the east wing of the building where it is connected to the access road. It is located centrally in the east facade and is plastically reinforced by embedding into building substance in the form of covered porch. In this wing there is mainly service area for the house. The workroom (occasionally used as a guest room) with a corner window toward the street, dressing room, shower with toilet, and utility room with laundry are accessible directly from the entrance hall which is brightened by the central skylight. There are also garage and a mechanical room.
捷克Slavonin别墅外部实景图
捷克Slavonin别墅外部局部实景图
捷克Slavonin别墅外部夜景实景图
捷克Slavonin别墅内部实景图
捷克Slavonin别墅内部卫浴实景图
捷克Slavonin别墅内部局部实景图
捷克Slavonin别墅平面图
捷克Slavonin别墅剖面图
客服
消息
收藏
下载
最近





























