查看完整案例


收藏

下载
Israel LA villa
设计方:Eran Binderman + Rama Dotan
位置:以色列
分类:别墅建筑
内容:实景照片
图片:14张
摄影师:Oded Smadar
在为未来的住宅购买好宅基地之后,客户陷入了选择哪个建筑设计工作室的难题中。于是他们决定举办一个比赛。比赛的过程很直接。我们(建筑师们)提供了四个可能的方案,包括了住宅模型和程序。客户们直接选择了第一个计划,其余的则变成了历史。通过选择出来的第一个计划策略,别墅设计建造的所有过程都很清晰。客户们想要一栋充满自由感和空间感的别墅,别墅还要给人一种非常稳重和温暖的感觉。
创造一栋“地中海别墅”的想法来源于场址周围倾斜的地面。非正式的理念是整个项目设计的基石。别墅的创作过程包含了定期的会议,在每一场会议中,我们这些建筑师都会提出一个“试味套餐”,目的是实验修建别墅使用的材料、空间、形状和纹理。在每一“餐”的结尾就会有决定作出,也会提出下一次会议的摘要。我们就是使用这样的方法创造了别墅。为了创造出最符合客户要求的产品,我们用实际的建筑工作来改善建筑设计理念。
译者:蝈蝈
After purchasing the plot for the construction of their future home, the owners reached the difficult point of deciding who's gonna be the architect. They decided to initiate a competition. The chemistry was immediate. We (the architects) presented four possible alternatives, including home models and programs. The first program was selected immediately, and the rest was history.The process of working on the house was very clear throughout all its stages. The owners shared the desire to create a home that will give a sense of freedom and space with maximum modesty and warmth.
This created the idea of ??a "Mediterranean village" which is rooted strongly in the slanted ground surrounding it. The lack of formality was the foundation stone of the whole design. .The creative process involved regular meetings in which we, the architects, proposed a "tasting menu" per meeting for the purpose of experimenting materials, spaces, shapes and textures. At the end of each "meal", decisions were taken and digested for the next meeting ahead. Gradually, in this way, the "village" was created. The Architectural work was refining and cleaning the ideas, in order to create the most accurate product possible.
以色列LA别墅外部实景图
以色列LA别墅外部庭院实景图
以色列LA别墅外部夜景实景图
以色列LA别墅内部实景图
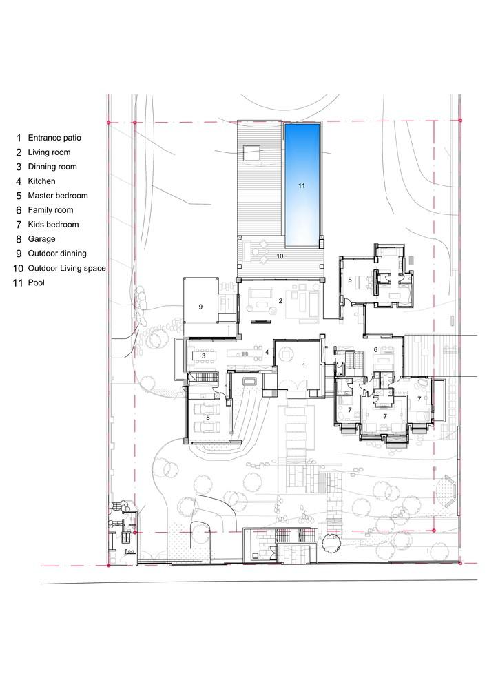
以色列LA别墅平面图
客服
消息
收藏
下载
最近





























